Bénéficiez des services de nos partenaires locaux soigneusement sélectionnés
pour vous accompagner dans votre parcours d'achat immobilier

Maison t8 de 162 m2 sur un terrain de 324 m2 - secteur lac mouriscot - biarritz.

— Biarritz 64200 —
595 000 €
162 m² / 324 m²
9 pièces
parkingbalcon/terrassejardin

Nos partenaires locaux
Isabelle Raynaud, Global Immobilier vous propose ce bien rare une grande maison érigée sur 2 niveaux dans le secteur Lac Mouriscot.
Cette maison est idéale pour une famille nombreuse, elle dispose de 7 chambres,
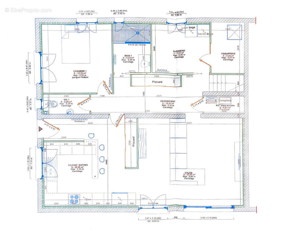
Au premier niveau : une entrée, une cuisine ouverte donnant sur un grand salon salle à manger ouvert sur une cuisine moderne totalement équipée et aménagée avec beaucoup de placards et d'un espace dinatoire. Vous trouverez également une chambre lumineuse, une salle de douche, un WC indépendant, un dégagement avec placards, une buanderie et une chaufferie.
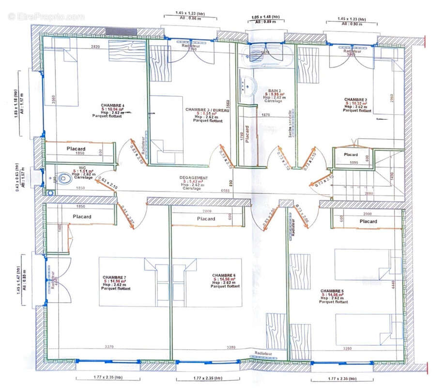
À l'étage un grand couloir dessert 6 chambres avec placards, dont une transformée en bureau, une salle de bain et un WC indépendant.
3 grandes chambres ont un accès direct sur une grande terrasse exposée Sud-Ouest, la terrasse est dotée d'un joli escalier en colimaçon avec vue sur la grande terrasse.
Dans les espaces extérieurs vous trouverez un coin plancha.
Ce bien est également idéal pour un investisseur, vous avez la possibilité de diviser ce bien en deux grands appartements.
Le bien est totalement clos sécurisé avec un portail et un grand garage fermé.
En résumé un bien rare proche de l'océan et des commerces de proximités ! Coup de coeur assuré !
Des travaux sont à prévoir pour révéler tout le potentiel de ce bien.
Nous organisons des visites tous les jours de la semaine, ainsi que les weekends et jours fériés en fonction de vos disponibilités.
Honoraires à la charge du vendeur.
Pour toute information, contacté Mme Isabelle Raynaud au [Coordonnées masquées].
Cette annonce vous est proposée par RAYNAUD ISABELLE - EI - NoRSAC: 513 808 857, Enregistré au Greffe du tribunal de commerce de Bayonne - Annonce rédigée et publiée par un Agent Mandataire -
Voir plus

Référence: 7580
Honoraires à la charge du vendeur.
Barème des honoraires
DPE
A
B
C
D
E
F
G
GES
A
B
C
D
E
F
G

Prêt immobilier

Vous souhaitez connaître votre capacité d’emprunt et trouver le meilleur crédit immobilier ?
Réaliser une simulation gratuite

Maison à BIARRITZ
Maison à BIARRITZ
Maison à BIARRITZ
Maison à BIARRITZ
Maison à BIARRITZ
Maison à BIARRITZ
Maison à BIARRITZ
Maison à BIARRITZ
Maison à BIARRITZ
Maison à BIARRITZ
Maison à BIARRITZ
Maison à BIARRITZ
Maison à BIARRITZ
Maison à BIARRITZ
Maison à BIARRITZ
Maison à BIARRITZ
Maison à BIARRITZ
Maison à BIARRITZ
Maison à BIARRITZ
Maison à BIARRITZ
Maison à BIARRITZ
Maison à BIARRITZ
Ce site est protégé par reCAPTCHA la Politique de confidentialité et les Conditions d’utilisation de Google s’appliquent.
Obtenir un prêt immobilier au meilleur taux ?

En poursuivant votre navigation sans modifier vos paramètres, vous acceptez l'utilisation de cookies susceptibles de réaliser des statistiques de visite. Cliquez ici pour plus d'informations