Bénéficiez des services de nos partenaires locaux soigneusement sélectionnés
pour vous accompagner dans votre parcours d'achat immobilier

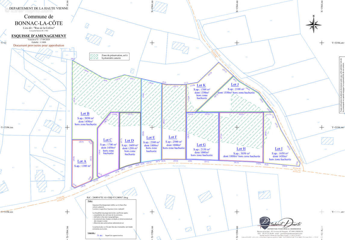
Terrain 2150m² à bonnac-la-cote

— Bonnac-La-Cote 87270 —
30 000 €
2 150 m²

Nos partenaires locaux
Iad France - David Doizon vous propose : Situé rue de la Colline, entre Bonnac-la-Côte et Chaptelat, ce terrain libre de constructeur, bénéficie d'un emplacement stratégique : à 4 min des commerces de Bonnac, 6 min de Chaptelat, 5 min de l'autoroute et 12 min de la zone nord de Limoges.

LOT G

Plusieurs lots sont disponibles, de 1300 à 5000 m², (une seule construction possible par terrain) dans un environnement résidentiel et verdoyant. Terrain en zone AUa. CU opérationnel et déclaration préalable validés.

Topographies variées : plat, pente douce ou adapté à une construction sur sous-sol. Assainissement individuel à prévoir. Viabilisation à réaliser. Études techniques déjà effectuées (eaux pluviales, ANC, zones humides). Zone non constructible en fond de parcelle, sans incidence sur les projets.

Contactez-moi pour choisir la parcelle qui correspond à votre projet.

Honoraires d'agence à la charge du vendeur.
Bien non soumis au DPE. Les informations sur les risques auxquels ce bien est exposé, y compris l'obligation légale de débroussaillement, sont disponibles sur le site Géorisques : http://www.georisques.gouv.fr.
La présente annonce immobilière a été rédigée sous la responsabilité éditoriale de M David Doizon mandataire indépendant en immobilier (sans détention de fonds), agent commercial de la SAS I@D France immatriculé au RSAC de LIMOGES sous le numéro 850239989, titulaire de la carte de démarchage immobilier pour le compte de la société I@D France SAS.
Informations LOI ALUR :
Honoraires charge vendeur. (gedeon_6727_31124304)
Voir plus

Référence: 1744025
Honoraires à la charge du vendeur.

Prêt immobilier

Vous souhaitez connaître votre capacité d’emprunt et trouver le meilleur crédit immobilier ?
Réaliser une simulation gratuite

Photo 1 - Terrain à BONNAC-LA-COTE
Photo 1
Photo 2 - Terrain à BONNAC-LA-COTE
Photo 2
Photo 3 - Terrain à BONNAC-LA-COTE
Photo 3
Ce site est protégé par reCAPTCHA la Politique de confidentialité et les Conditions d’utilisation de Google s’appliquent.
Obtenir un prêt immobilier au meilleur taux ?

En poursuivant votre navigation sans modifier vos paramètres, vous acceptez l'utilisation de cookies susceptibles de réaliser des statistiques de visite. Cliquez ici pour plus d'informations