Bénéficiez des services de nos partenaires locaux soigneusement sélectionnés
pour vous accompagner dans votre parcours d'achat immobilier

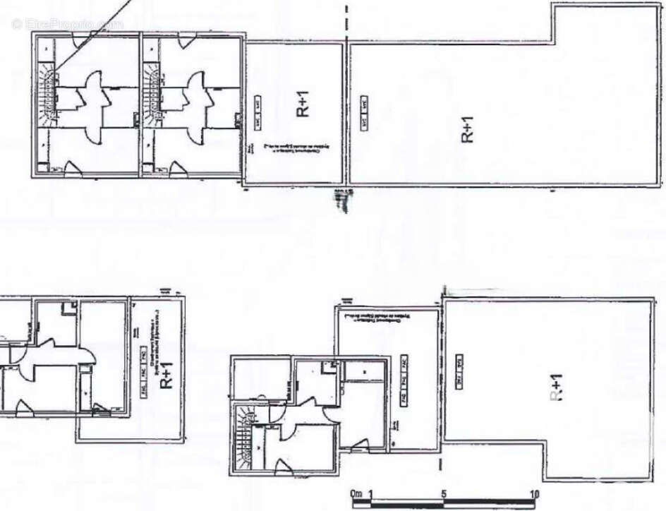
Appartement 65m² à serignan

— Serignan 34410 —
233 800 €
65 m²
3 pièces
parkingbalcon/terrasse

Nos partenaires locaux
Iad France - Elisabeth Ilic vous propose : * Magnifique Appartement Duplex de 3 Pièces avec Terrasse à Sérignan *

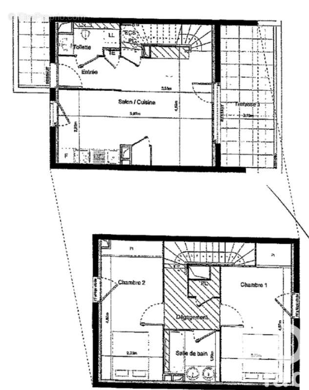
Appartement de standing situé à Sérignan, alliant modernité, confort et élégance. Construit en 2018, cet appartement de type T3 offre une surface de 65 m²,
Belles prestations et finitions de qualité. La pièce de vie lumineuse constitue un espace convivial. La cuisine équipée ouverte sur le séjour donnant sur une terrasse de 12 m²

L'appartement dispose de 2 chambres confortables et lumineuse. Vous trouverez également 2 toilettes et une salle d'eau, offrant praticité.
La résidence, sécurisée par un interphone, bénéficie d'un chauffage individuel par pompe à chaleur et d'un système de distribution de chaleur performant.
Pour faciliter votre quotidien, une place de parking privative est mise à votre disposition.
L'emplacement de ce bien est stratégique, proche des commodités, des transports en commun et des établissements scolaires.


La presente annonce immobiliere vise 2 lots situés dans une copropriété de 124 lots au total et ne faisant l'objet d'aucune procédure en cours citée à l'article L. 721-1 du code de la construction et de l'habitation. Montant moyen mensuel de charges déclaré par le vendeur : 70¤ par mois (soit 840 ¤ annuel). Honoraires d'agence à la charge du vendeur.
Information d'affichage énergétique sur ce bien : classe ENERGIE A indice 57 et classe CLIMAT A indice 1. Les informations sur les risques auxquels ce bien est exposé, y compris l'obligation légale de débroussaillement, sont disponibles sur le site Géorisques : http://www.georisques.gouv.fr.
La présente annonce immobilière a été rédigée sous la responsabilité éditoriale de Mme Elisabeth Ilic mandataire indépendant en immobilier (sans détention de fonds), agent commercial de la SAS I@D France immatriculé au RSAC de BORDEAUX sous le numéro 984813436, titulaire de la carte de démarchage immobilier pour le compte de la société I@D France SAS.
Informations LOI ALUR :
Soumis au régime de copropriété.
Nombre de lots : 124.
Quote part annuelle(moyenne) : 840 euros.
Honoraires charge vendeur. (gedeon_6727_31926989)
Voir plus

Référence: 1853110
Bien en copropriété. Nombre de lots : 124. Charges de copropriété : 840 €.
Honoraires à la charge du vendeur.
DPE
A
B
C
D
E
F
G
GES
A
B
C
D
E
F
G

Prêt immobilier

Vous souhaitez connaître votre capacité d’emprunt et trouver le meilleur crédit immobilier ?
Réaliser une simulation gratuite

Photo 1 - Appartement à SERIGNAN
Photo 1
Photo 2 - Appartement à SERIGNAN
Photo 2
Photo 3 - Appartement à SERIGNAN
Photo 3
Photo 4 - Appartement à SERIGNAN
Photo 4
Photo 5 - Appartement à SERIGNAN
Photo 5
Photo 6 - Appartement à SERIGNAN
Photo 6
Photo 7 - Appartement à SERIGNAN
Photo 7
Ce site est protégé par reCAPTCHA la Politique de confidentialité et les Conditions d’utilisation de Google s’appliquent.
Obtenir un prêt immobilier au meilleur taux ?

En poursuivant votre navigation sans modifier vos paramètres, vous acceptez l'utilisation de cookies susceptibles de réaliser des statistiques de visite. Cliquez ici pour plus d'informations