Bénéficiez des services de nos partenaires locaux soigneusement sélectionnés
pour vous accompagner dans votre parcours d'achat immobilier

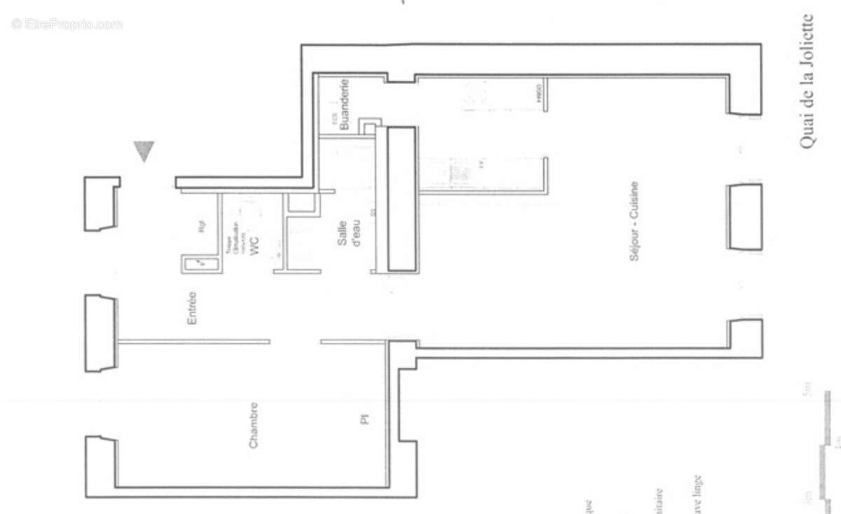
Appartement traversant avec vue mer quai de la joliette/ au pied de la major

— Marseille-2e 13002 —
269 000 €
57 m²
2 pièces
ascenseur

Nos partenaires locaux
Situé a deux pas du Mucem et des Terrasses du Port , ce bel appartement de 57 m², traversant et baigné de lumière, vous offre un cadre de vie rare avec vue imprenable sur la mer. Il se trouve au 2eme étage d'un immeuble haussmannien sécurisé avec ascenseur. Un agencement harmonieux et lumineux Séjour spacieux avec cuisine ouverte équipée Grande chambre avec placard intégré Salle d'eau moderne avec douche Toilettes séparées Fibre optique, chauffage électrique, double vitrage Matériaux de qualité, finitions soignés La traversée Est Ouest assure un ensoleillement optimal à toute heure de la journée. Résidence sécurisée et environnement privilégié L'immeuble dispose d'un accès sécurisé par digicode et vidéophone, dans un quartier dynamique et agréable, à proximité immédiate des commerces, transports et du Vieux-Port. Un véritable coup de coeur pour les amateurs de vue mer et de biens de caractère dans l'un des plus beaux secteurs de Marseille. Taxe foncière : 1447 euros Charge de copro trimestrielle : 672 euros
Voir plus

Référence: GSLAP10000140
Honoraires à la charge du vendeur.
Barème des honoraires
DPE
A
B
C
D
E
F
G
GES
A
B
C
D
E
F
G

Prêt immobilier

Vous souhaitez connaître votre capacité d’emprunt et trouver le meilleur crédit immobilier ?
Réaliser une simulation gratuite

Appartement à MARSEILLE-2E
Appartement à MARSEILLE-2E
Appartement à MARSEILLE-2E
Appartement à MARSEILLE-2E
Appartement à MARSEILLE-2E
Appartement à MARSEILLE-2E
Appartement à MARSEILLE-2E
Ce site est protégé par reCAPTCHA la Politique de confidentialité et les Conditions d’utilisation de Google s’appliquent.
Obtenir un prêt immobilier au meilleur taux ?

En poursuivant votre navigation sans modifier vos paramètres, vous acceptez l'utilisation de cookies susceptibles de réaliser des statistiques de visite. Cliquez ici pour plus d'informations