Dernier étage, lumineux t3 avec rooftop de plus de 80m2 et garage en sus - rue chantal sandrin, lyon

— Lyon-8e 69008 —
380 000 €
100 m²
3 pièces
parkingbalcon/terrasseascenseur

Coup de coeur
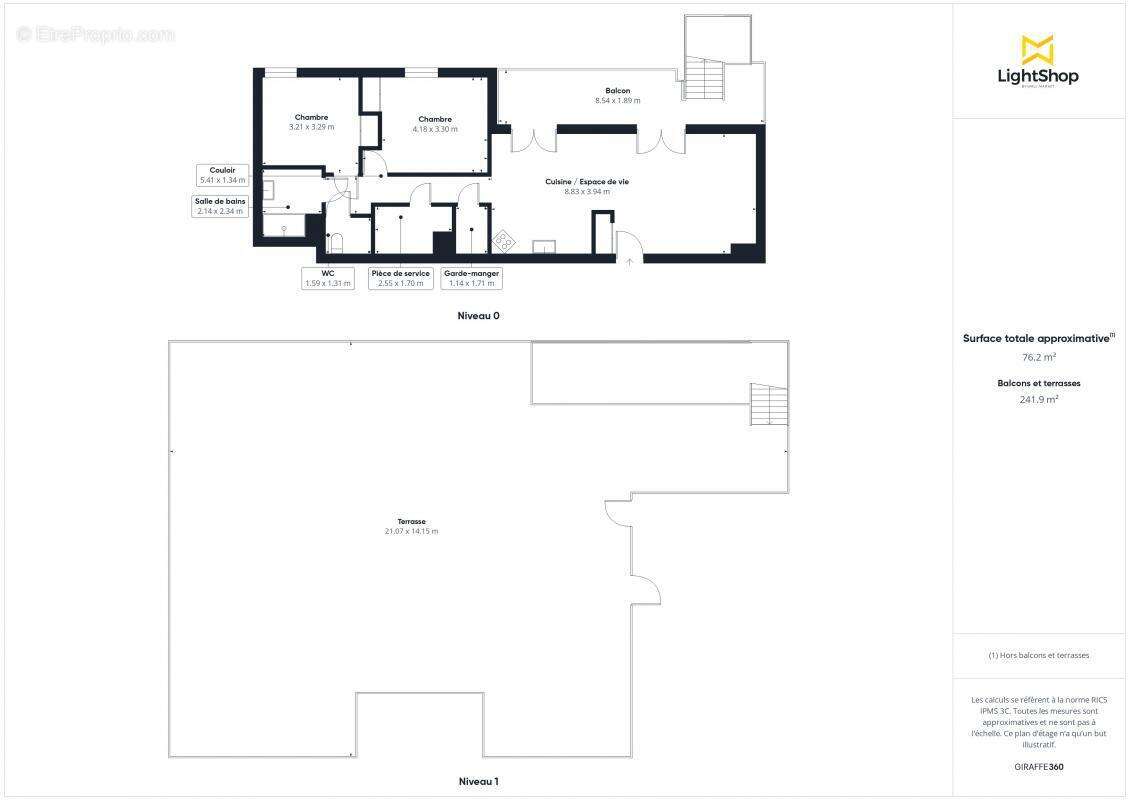
Hosman vous propose à la vente dans une copropriété récente 2020 fermée, sécurisée avec espace vert, parc privatif, serre ce bel appartement de type T3 situé au dernier étage sous garantie décanale, Rue Chantal Sandrin.

Profitez de ses 76 m² de surface Carrez, d'une exposition au sud, et d'un balcon ainsi que son rooftop d'environ 80m² dotée d'un aménagement pour jacuzzi.

Planifiez facilement votre visite en choisissant le créneau qui vous convient depuis le site d'Hosman.

L'appartement se compose d'une entrée accueillante donnant sur une lumineuse pièce de vie avec cuisine ouverte, entièrement aménagée et équipée.
Deux chambres avec placard confortables complètent l'espace de nuit, ainsi qu'une salle de bains moderne et des toilettes séparées.
Possibilité d'acquérir un garage fermé de 15 m² en sus à 20 000€

Bénéficiez du double vitrage en bois, de la domotique lumière et des stores électriques. Le chauffage et l'eau chaude sont individuels au gaz.

Les charges de copropriété s'élèvent à 146,66 € par mois
Taxe Foncière 1500€

Bien idéalement situé dans un quartier résidentiel proche de toutes commodités, parfaitement desservi par les transports (Bus 35, 12, Tramways T4, T2 et T6).

Le bien est soumis au statut de copropriété.

Hosman s'efforce de réinventer l'agence immobilière en offrant un service innovant et transparent aux acheteurs et aux vendeurs. Nos frais d'agence sont de 10900 euros fixes à la charge du vendeur.

Si vous êtes un professionnel de l'immobilier (agent, mandataire ou chasseur immobilier), sachez que toutes les annonces Hosman sont ouvertes à la collaboration. N'hésitez pas à nous contacter pour en discuter.
Voir plus

Référence: 455b3f
Bien en copropriété. Charges de copropriété : 146 €.
Honoraires à la charge du vendeur.
DPE
A
B
C
D
E
F
G
GES
A
B
C
D
E
F
G

Prêt immobilier

Vous souhaitez connaître votre capacité d’emprunt et trouver le meilleur crédit immobilier ?
Réaliser une simulation gratuite

Appartement à LYON-8E
Appartement à LYON-8E
Appartement à LYON-8E
Appartement à LYON-8E
Appartement à LYON-8E
Appartement à LYON-8E
Appartement à LYON-8E
Appartement à LYON-8E
Appartement à LYON-8E
Appartement à LYON-8E
Appartement à LYON-8E
Appartement à LYON-8E
Appartement à LYON-8E
Appartement à LYON-8E
Appartement à LYON-8E
Appartement à LYON-8E
Appartement à LYON-8E
Appartement à LYON-8E
Appartement à LYON-8E
Appartement à LYON-8E
Appartement à LYON-8E
Appartement à LYON-8E
Appartement à LYON-8E
Appartement à LYON-8E
Ce site est protégé par reCAPTCHA la Politique de confidentialité et les Conditions d’utilisation de Google s’appliquent.
Obtenir un prêt immobilier au meilleur taux ?

En poursuivant votre navigation sans modifier vos paramètres, vous acceptez l'utilisation de cookies susceptibles de réaliser des statistiques de visite. Cliquez ici pour plus d'informations