Bénéficiez des services de nos partenaires locaux soigneusement sélectionnés
pour vous accompagner dans votre parcours d'achat immobilier

Vente maison 7 pièces de 220m² - 33590 jau-dignac-et-loirac

— Jau-Dignac-Et-Loirac 33590 —
265 000 €
220 m² / 5 000 m²
7 pièces
jardin

Nos partenaires locaux
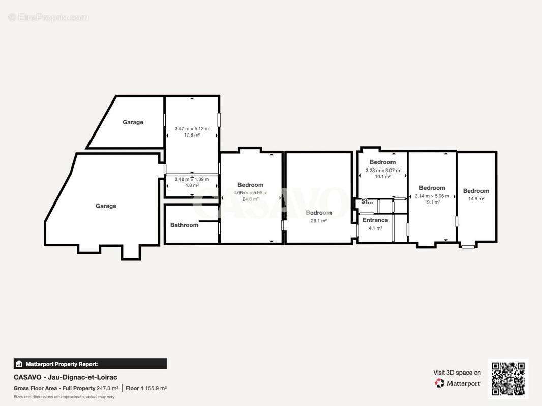
Casavo vous propose à la vente en exclusivité une maison en pierre au cœur des vignes — Jau-Dignac-et-Loirac

Située à quelques minutes de l'estuaire de la Gironde et à seulement quelques kilomètres de l'océan Atlantique, cette maison en pierre de caractère déploie tout le charme des demeures médocaines d'antan, dans un environnement calme et authentique.

Avec une surface totale d'environ 220 m², elle offre un potentiel de rénovation rare, idéal pour un projet familial, une résidence secondaire ou un gîte de charme.

Une belle base saine à réinventer

Rez-de-chaussée (139 m²) : plusieurs pièces à redistribuer, mettant en valeur les matériaux d'origine (carreaux de ciment, terrazzo, murs en pierre apparente).

Étage (57 m² + 27 m² aménageables) : une chambre existante et un grand espace à transformer selon vos besoins.

Atelier attenant (env. 60 m²) : idéal pour un agrandissement, un bureau indépendant, un gîte ou un atelier d'artiste.

État & travaux

La toiture a été révisée et ne nécessite aucune intervention.
Les travaux à prévoir concernent principalement l'isolation, l'électricité, la plomberie, les menuiseries et les aménagements intérieurs.

Un dossier complet de rénovation (avec devis estimatifs et pistes d'aménagements) est disponible sur simple demande.
Une visite virtuelle est également en ligne pour découvrir la maison dans son état actuel.

Un cadre de vie paisible au cœur du Médoc

Implantée sur un terrain arboré de 5 000 m², en zone non inondable, cette propriété séduira les amateurs de vieilles pierres, de grands espaces et de projets à valeur patrimoniale.

Un lieu où authenticité et potentiel se rencontrent — à personnaliser selon vos envies.

Prix de vente : 265 000 € FAI
Taxe foncière : 1 098 € / an
DPE : F

Ce bien est commercialisé par Casavo.

Intéressé par ce bien ? Plus d'informations sur le site de Casavo.
Voir plus

Référence: 45850
Honoraires à la charge du vendeur.
DPE
A
B
C
D
E
F
G
GES
A
B
C
D
E
F
G

Prêt immobilier

Vous souhaitez connaître votre capacité d’emprunt et trouver le meilleur crédit immobilier ?
Réaliser une simulation gratuite

Maison à JAU-DIGNAC-ET-LOIRAC
Maison à JAU-DIGNAC-ET-LOIRAC
Maison à JAU-DIGNAC-ET-LOIRAC
Maison à JAU-DIGNAC-ET-LOIRAC
Maison à JAU-DIGNAC-ET-LOIRAC
Maison à JAU-DIGNAC-ET-LOIRAC
Maison à JAU-DIGNAC-ET-LOIRAC
Maison à JAU-DIGNAC-ET-LOIRAC
Maison à JAU-DIGNAC-ET-LOIRAC
Maison à JAU-DIGNAC-ET-LOIRAC
Maison à JAU-DIGNAC-ET-LOIRAC
Maison à JAU-DIGNAC-ET-LOIRAC
Maison à JAU-DIGNAC-ET-LOIRAC
Ce site est protégé par reCAPTCHA la Politique de confidentialité et les Conditions d’utilisation de Google s’appliquent.
Obtenir un prêt immobilier au meilleur taux ?

En poursuivant votre navigation sans modifier vos paramètres, vous acceptez l'utilisation de cookies susceptibles de réaliser des statistiques de visite. Cliquez ici pour plus d'informations