Bénéficiez des services de nos partenaires locaux soigneusement sélectionnés
pour vous accompagner dans votre parcours d'achat immobilier

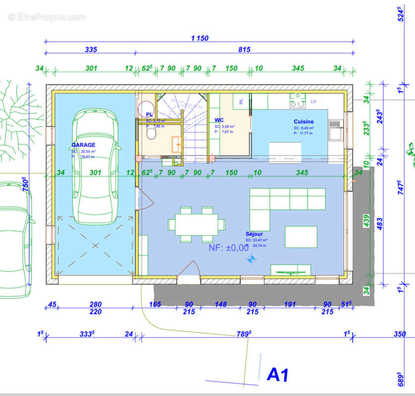
Terrain pegomas avec permis villa 135m2

— Pegomas 06580 —
265 000 €
673 m²
jardin

Nos partenaires locaux
A vendre terrain plat de 673m2 proche centre ville de Pégomas au calme, quartier résidentiel. Exposition sud.
Permis déposé pour une villa de type 5 pièces avec garage de 135m2 sur deux niveaux.
tout à l'egout

Référence: 259
Barème des honoraires

Prêt immobilier

Vous souhaitez connaître votre capacité d’emprunt et trouver le meilleur crédit immobilier ?
Réaliser une simulation gratuite

Terrain à PEGOMAS
Terrain à PEGOMAS
Terrain à PEGOMAS
Terrain à PEGOMAS
Ce site est protégé par reCAPTCHA la Politique de confidentialité et les Conditions d’utilisation de Google s’appliquent.
Obtenir un prêt immobilier au meilleur taux ?

En poursuivant votre navigation sans modifier vos paramètres, vous acceptez l'utilisation de cookies susceptibles de réaliser des statistiques de visite. Cliquez ici pour plus d'informations