Bénéficiez des services de nos partenaires locaux soigneusement sélectionnés
pour vous accompagner dans votre parcours d'achat immobilier

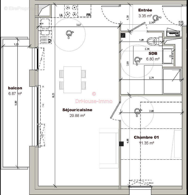
Appartement 51m² à tourcoing

— Tourcoing 59200 —
181 988 €
51 m² / 7 m²
2 pièces
parkingbalcon/terrasseascenseuraccès handicapé

Nos partenaires locaux
Idéalement située à proximité immédiate du centre-ville, cette nouvelle résidence profite d’un emplacement stratégique dans le quartier du Quadrilatère des Piscines, en plein renouveau. Les habitants bénéficient de la proximité immédiate des commerces, restaurants et services, mais aussi d’un large choix d’équipements scolaires et culturels comme le groupe scolaire Charles de Gaulle, la médiathèque André Malraux ou la salle de concerts Le Grand Mix. Les espaces verts et les 120 hectares de parcs tourquennois invitent à la détente, tandis que le centre nautique Tourcoing-les-Bains et le théâtre municipal participent à l’animation quotidienne. Côté mobilité, la présence du métro, du tramway, du réseau Ilévia et de la gare TER-TGV-Ouigo assure une connexion rapide vers Lille, Roubaix, Paris ou Bruxelles, facilitant autant les déplacements professionnels que les escapades de week-end.

Au fil de la promenade des Justes, l’architecture du projet s’intègre dans un environnement urbain apaisé et moderne. Les façades, aux teintes claires et raffinées, jouent sur les contrastes de matériaux et la légèreté des balcons métalliques pour composer une silhouette élégante et contemporaine. Les lignes sobres et les volumes équilibrés favorisent la lumière naturelle et l’ouverture vers les espaces extérieurs. Inscrite dans une démarche bioclimatique, la conception du bâtiment privilégie la performance énergétique, la végétalisation des toits et la création d’espaces paysagers pour renforcer le bien-être des résidents et le lien avec la nature en cœur de ville.

Du 2 au 4 pièces, les appartements se distinguent par des intérieurs lumineux et parfaitement agencés. Les séjours prolongés de balcons ou de terrasses offrent un prolongement naturel vers l’extérieur, tandis que les logements en attique bénéficient de spacieuses terrasses avec vues dégagées sur la ville. Le confort est renforcé par des prestations de qualité : pompe à chaleur, isolation performante, stationnement privatif et local vélos. Pensée pour répondre aux attentes d’aujourd’hui, cette résidence conjugue esthétisme, modernité et confort durable, dans un quartier emblématique du renouveau tourquennois. Ce bien vous est présenté par David Mahieux, votre conseiller indépendant Dr House Immo.
Voir plus

Référence: DMA35DHI2834
Bien en copropriété.
Honoraires à la charge du vendeur.
Barème des honoraires
DPE
A
B
C
D
E
F
G
GES
A
B
C
D
E
F
G

Prêt immobilier

Vous souhaitez connaître votre capacité d’emprunt et trouver le meilleur crédit immobilier ?
Réaliser une simulation gratuite

Appartement à TOURCOING
Appartement à TOURCOING
Appartement à TOURCOING
Appartement à TOURCOING
Appartement à TOURCOING
Appartement à TOURCOING
Appartement à TOURCOING
Appartement à TOURCOING
Appartement à TOURCOING
Appartement à TOURCOING
Ce site est protégé par reCAPTCHA la Politique de confidentialité et les Conditions d’utilisation de Google s’appliquent.
Obtenir un prêt immobilier au meilleur taux ?

En poursuivant votre navigation sans modifier vos paramètres, vous acceptez l'utilisation de cookies susceptibles de réaliser des statistiques de visite. Cliquez ici pour plus d'informations