Bénéficiez des services de nos partenaires locaux soigneusement sélectionnés
pour vous accompagner dans votre parcours d'achat immobilier

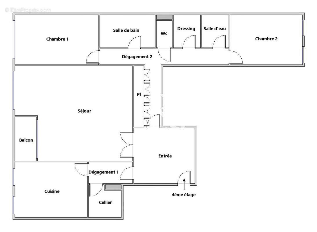
Appartement lyon 3 pièce(s) 115.32 m2

— Lyon-2e 69002 —
985 000 €
115 m²
3 pièces
ascenseur

Nos partenaires locaux
Dans l'un des secteurs les plus recherchés de Lyon, sur le prestigieux quai Saint-Antoine, cet appartement de 115 m² prend place au sein d'une résidence de standing PITANCE, reconnue pour la qualité de ses constructions. Sa situation privilégiée lui confère une vue dégagée sur la Saône et la Basilique de Fourvière, offrant un cadre de vie lumineux et rare. Il se compose d'un séjour spacieux, d'une cuisine indépendante et de deux grandes chambres, dans un agencement fonctionnel. Quelques rafraîchissements permettront de le personnaliser selon vos envies. La résidence dispose également d'un accès par la rue Mercière, au plus près des commerces, restaurants et transports de la Presqu'île, avec le métro à 4 minutes et le bus à 2 minutes. Copropriété de 36 lots - dont 22 lots habitation. (Pas de procédure en cours). Charges annuelles : 3686 euros.
Voir plus

Bien en copropriété. Nombre de lots : 36. Charges de copropriété : 3686 €.
Honoraires à la charge du vendeur.
Barème des honoraires
DPE
A
B
C
D
E
F
G
GES
A
B
C
D
E
F
G

Prêt immobilier

Vous souhaitez connaître votre capacité d’emprunt et trouver le meilleur crédit immobilier ?
Réaliser une simulation gratuite

Appartement à LYON-2E
Appartement à LYON-2E
Appartement à LYON-2E
Appartement à LYON-2E
Appartement à LYON-2E
Appartement à LYON-2E
Appartement à LYON-2E
Appartement à LYON-2E
Appartement à LYON-2E
Appartement à LYON-2E
Appartement à LYON-2E
Appartement à LYON-2E
Ce site est protégé par reCAPTCHA la Politique de confidentialité et les Conditions d’utilisation de Google s’appliquent.
Obtenir un prêt immobilier au meilleur taux ?

En poursuivant votre navigation sans modifier vos paramètres, vous acceptez l'utilisation de cookies susceptibles de réaliser des statistiques de visite. Cliquez ici pour plus d'informations