Pas de commerce à Villers-Semeuse pour le moment. Découvrez dès maintenant les commerces dans le département Ardennes.
Bénéficiez des services de nos partenaires locaux soigneusement sélectionnés
pour vous accompagner dans votre parcours d'achat immobilier

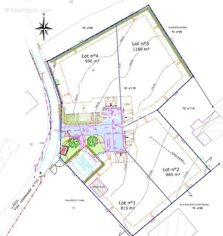
Terrain 1160m² à cahagnes

— Cahagnes 14240 —
85 040 €
1 160 m²

Nos partenaires locaux
À Cahagnes, dans un petit lotissement calme de 4 lots, découvrez ce terrain constructible de 1160 m², plat, borné et viabilisé (eau et électricité).
L'assainissement individuel reste à prévoir.

Emplacement idéal :
À 700 m des écoles
À 1 km des commerces
À proximité de l'axe Caen–Vire

Environnement résidentiel, agréable et en plein développement.
Parcelle orientée plein sud, sans vis-à-vis direct. Idéal pour maison individuelle ou projet familial.

N'esitez pas à me contacter, je serais ravie de vous accompagner dans votre projet de construction

Les informations sur les risques auxquels ce bien est exposé sont disponibles sur le site Géorisques : www.georisques.gouv.fr
Prix de vente : 85 040 ¤
Honoraires charge vendeur

Contactez votre conseiller SAFTI : Vanessa SERRET, Tél. : [Coordonnées masquées], E-mail : [Coordonnées masquées] - EI - Agent commercial immatriculé au RSAC de Caen sous le numéro 518 565 445.
Informations LOI ALUR :
Honoraires charge vendeur. (gedeon_26118_31925696)
Voir plus

Référence: 1535724
Honoraires à la charge du vendeur.
Barème des honoraires

Prêt immobilier

Vous souhaitez connaître votre capacité d’emprunt et trouver le meilleur crédit immobilier ?
Réaliser une simulation gratuite

Photo 1 - Terrain à CAHAGNES
Photo 1
Photo 2 - Terrain à CAHAGNES
Photo 2
Photo 3 - Terrain à CAHAGNES
Photo 3
Photo 4 - Terrain à CAHAGNES
Photo 4
Photo 5 - Terrain à CAHAGNES
Photo 5
Photo 6 - Terrain à CAHAGNES
Photo 6
Ce site est protégé par reCAPTCHA la Politique de confidentialité et les Conditions d’utilisation de Google s’appliquent.
Obtenir un prêt immobilier au meilleur taux ?

En poursuivant votre navigation sans modifier vos paramètres, vous acceptez l'utilisation de cookies susceptibles de réaliser des statistiques de visite. Cliquez ici pour plus d'informations