Pas de terrain à Roncherolles-Sur-Le-Vivier pour le moment. Découvrez dès maintenant les terrains dans le département Seine-Maritime.
Bénéficiez des services de nos partenaires locaux soigneusement sélectionnés
pour vous accompagner dans votre parcours d'achat immobilier

Terrain 815m² à cahagnes

— Cahagnes 14240 —
60 304 €
815 m²

Nos partenaires locaux
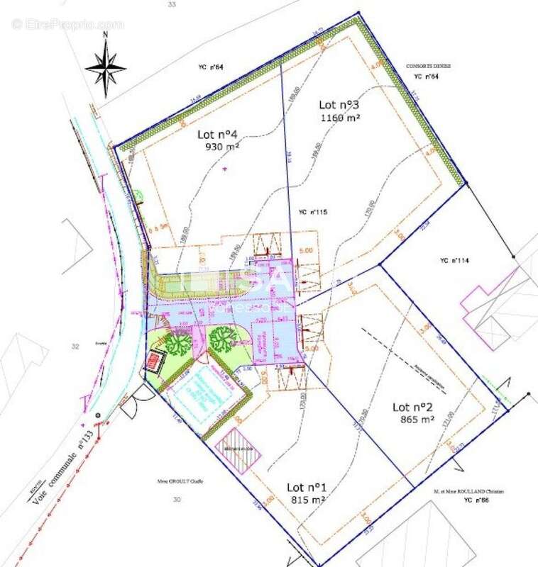
À Cahagnes, dans un petit lotissement calme de 4 lots, découvrez ce terrain constructible de 815 m², plat, borné et viabilisé (eau et électricité).
L'assainissement individuel reste à prévoir.

Emplacement idéal :
À 700 m des écoles
À 1 km des commerces
À proximité de l'axe Caen–Vire

Environnement résidentiel, agréable et en plein développement.
Parcelle orientée plein sud, sans vis-à-vis direct. Idéal pour maison individuelle ou projet familial.

N'esitez pas à me contacter, je serais ravie de vous accompagner dans votre projet de construction

Les informations sur les risques auxquels ce bien est exposé sont disponibles sur le site Géorisques : www.georisques.gouv.fr
Prix de vente : 60 304 ¤
Honoraires charge vendeur

Contactez votre conseiller SAFTI : Vanessa SERRET, Tél. : [Coordonnées masquées], E-mail : [Coordonnées masquées] - EI - Agent commercial immatriculé au RSAC de Caen sous le numéro 518 565 445.
Informations LOI ALUR :
Honoraires charge vendeur. (gedeon_26118_31925735)
Voir plus

Référence: 1535851
Honoraires à la charge du vendeur.
Barème des honoraires

Prêt immobilier

Vous souhaitez connaître votre capacité d’emprunt et trouver le meilleur crédit immobilier ?
Réaliser une simulation gratuite

Photo 1 - Terrain à CAHAGNES
Photo 1
Photo 2 - Terrain à CAHAGNES
Photo 2
Photo 3 - Terrain à CAHAGNES
Photo 3
Photo 4 - Terrain à CAHAGNES
Photo 4
Photo 5 - Terrain à CAHAGNES
Photo 5
Photo 6 - Terrain à CAHAGNES
Photo 6
Ce site est protégé par reCAPTCHA la Politique de confidentialité et les Conditions d’utilisation de Google s’appliquent.
Obtenir un prêt immobilier au meilleur taux ?

En poursuivant votre navigation sans modifier vos paramètres, vous acceptez l'utilisation de cookies susceptibles de réaliser des statistiques de visite. Cliquez ici pour plus d'informations