Appartement 45m² à nimes

— Nimes 30900 —
135 000 €
45 m²
2 pièces
balcon/terrasseascenseur

Iad France - Cyriane Riel vous propose : Exclusivité - Charmant appartement 2 pièces avec terrasse à Nîmes
Idéal premier achat ou investisseur!

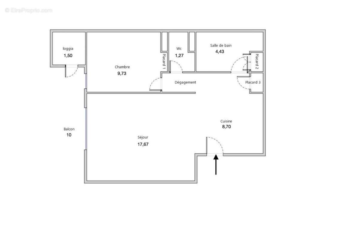
Découvrez ce magnifique appartement 2 pièces situé rue Fernand Pelloutier, à deux pas du Jean-Jaurès et de la maison Carrée, offrant un cadre de vie idéal pour les amateurs de confort et de tranquillité. Idéalement situé au 1er étage d'un immeuble de 4 niveaux construit en 1969, cet appartement a été bien entretenu et est en bon état général.

Dès l'entrée, vous trouvez une belle cuisine équipée ouverte sur un séjour lumineux donnant sur une belle terrasse exposé Sud Est agréable pour pouvoir y manger et passer du temps sans aucun vis-à-vis.
Coin nuit avec une chambre donnant également sur l'extérieur, un wc séparé et une salle de bain avec espace buanderie
Les équipements de confort et de sécurité tels que la fibre optique, l'interphone et la porte blindée vous garantissent un mode de vie moderne et sécurisé.
L'appartement bénéficie d'un chauffage collectif au gaz, assurant une chaleur agréable en toutes saisons grâce aux radiateurs et une cave vient compléter ce bien.
La résidence, disposant d'un ascenseur, vous offre un grand confort au quotidien. De plus, la localisation du bien permet un accès facile aux commerces, aux écoles, aux transports en commun et à toutes les commodités de la vie urbaine.
Stationnement facile dans le quartier grâce à l'abonnement résident à 180¤ / an
Actuellement loué 690¤ cc (bail meublé de 6 mois arrivant à échéance en mars 2026)
Taxe foncière de 971¤

Une belle opportunité à ne pas manquer pour les amoureux du centre ville.
Contactez-nous dès maintenant pour visiter cet appartement plein de charme à Nîmes.

La presente annonce immobiliere vise 2 lots situés dans une copropriété de 271 lots au total et ne faisant l'objet d'aucune procédure en cours citée à l'article L. 721-1 du code de la construction et de l'habitation. Montant moyen mensuel de charges déclaré par le vendeur : 158.67¤ par mois (soit 1904 ¤ annuel). Honoraires d'agence à la charge du vendeur.
Information d'affichage énergétique sur ce bien : classe ENERGIE D indice 205 et classe CLIMAT C indice 28. Les informations sur les risques auxquels ce bien est exposé, y compris l'obligation légale de débroussaillement, sont disponibles sur le site Géorisques : http://www.georisques.gouv.fr.
La présente annonce immobilière a été rédigée sous la responsabilité éditoriale de Mme Cyriane Riel mandataire indépendant en immobilier (sans détention de fonds), agent commercial de la SAS I@D France immatriculé au RSAC de NIMES sous le numéro 992447474, titulaire de la carte de démarchage immobilier pour le compte de la société I@D France SAS.
Informations LOI ALUR :
Soumis au régime de copropriété.
Nombre de lots : 271.
Quote part annuelle(moyenne) : 1904 euros.
Honoraires charge vendeur. (gedeon_6727_31932433)
Voir plus

Référence: 1851972
Bien en copropriété. Nombre de lots : 271. Charges de copropriété : 1904 €.
Honoraires à la charge du vendeur.
DPE
A
B
C
D
E
F
G
GES
A
B
C
D
E
F
G

Prêt immobilier

Vous souhaitez connaître votre capacité d’emprunt et trouver le meilleur crédit immobilier ?
Réaliser une simulation gratuite

Photo 1 - Appartement à NIMES
Photo 1
Photo 2 - Appartement à NIMES
Photo 2
Photo 3 - Appartement à NIMES
Photo 3
Photo 4 - Appartement à NIMES
Photo 4
Photo 5 - Appartement à NIMES
Photo 5
Photo 6 - Appartement à NIMES
Photo 6
Photo 7 - Appartement à NIMES
Photo 7
Photo 8 - Appartement à NIMES
Photo 8
Photo 9 - Appartement à NIMES
Photo 9
Ce site est protégé par reCAPTCHA la Politique de confidentialité et les Conditions d’utilisation de Google s’appliquent.
Obtenir un prêt immobilier au meilleur taux ?

En poursuivant votre navigation sans modifier vos paramètres, vous acceptez l'utilisation de cookies susceptibles de réaliser des statistiques de visite. Cliquez ici pour plus d'informations