Bénéficiez des services de nos partenaires locaux soigneusement sélectionnés
pour vous accompagner dans votre parcours d'achat immobilier

Appartements atypiques de style loft 69003 lyon 4 pièce(s) 121.90 m2

— Lyon-3e 69003 —
873 000 €
121 m²
4 pièces
parkingjardin

Nos partenaires locaux
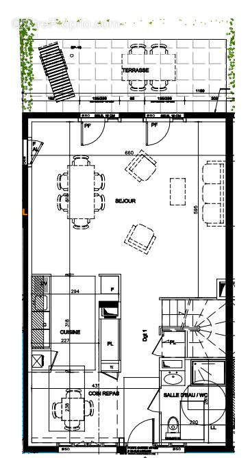
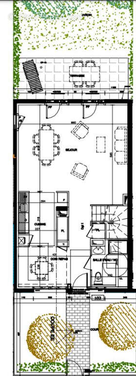
(69003) Je vous propose, dans le quartier de Grange-Blanche, quartier calme tout en étant proche du centre-ville et de la Part-Dieu, Appartements atypiques de style loft dans une résidence proche de nombreux restaurants, petits commerces et cafés qui peut vous garantir une vie de quartier agréable. Vous bénéficiez aussi d'un box simple PMR avec recharge électrique.

En arrivant devant cet Appartements atypiques , vous trouverez une cour de 36.65m². Cette appartement duplex de 121.90m² comprend, au rez-de-chaussée, une cuisine de 7.35 m² avec un coin repas de 8.90m² d'un côté et ouverte d'un autre côté sur un séjour de 36.97m² donnant une pièce aérée et conviviale et s'ouvrant sur une terrasse de 19.40m² et d'un jardin de 42.10m², ce qui apporte un maximum de luminosité à votre intérieur.

Vous trouverez, également, à cet étage, une salle d'eau avec WC de 6.35m².

A l'étage, il y a 3 belles chambres de 11.13m², 16.68m² et 14.30m² dont 2 chambres avec placard, une belle salle de bain de 4.30m² avec une baignoire et double vasque et un WC séparé de 1.40m².

Pour compléter ce bel espace, vous trouverez, également une mezzanine de 9.30m²au-dessus du coin repas.

Tout ceci dans un style contemporain où les matériaux et les équipements ont été choisis pour vous offrir un confort moderne et un chez-soi agréable à vivre.

Produit unique et très rare sur le secteur.
Livraison : Livraison 2ème trimestre 2023.
DPE non requis Lot 102
Prix de vente : 873 000 euros
Mandat réf: 390954
Informations, réservations auprès de votre conseiller commercialisateur Coll Thierry pour ineuf-com au [Coordonnées masquées].
Pour visiter et vous accompagner dans votre projet, contactez Thierry Coll, agissant sous le statut conseiller immobilier indépendant auprès de la SAS Propriétés Privées au
[Coordonnées masquées] ou par courriel à [Coordonnées masquées].
RCS 487 624 777 - Le professionnel vous conseille, garantit et sécurise votre projet immobilier.
Cette présente annonce a été rédigée sous la responsabilité éditoriale de Coll Thierry agissant sous le statut d'agent commercial immatriculé au RSAC BREST 878921915 auprès de la SAS PROPRIETES PRIVEES, Réseau national immobilier, au capital de 40000 euros, 44 ALLÉE DES CINQ CONTINENTS - ZAC LE CHÊNE FERRÉ, 44120 VERTOU, RCS Nantes n° 487 624 777 00040,
*voir conditions auprès de votre conseiller.
Copropriété de 20 lots ().

Charges annuelles : 1000 euros.
Voir plus

Référence: 2609TC390954TCL
Bien en copropriété. Nombre de lots : 20. Charges de copropriété : 83 €.
Honoraires à la charge du vendeur.

Prêt immobilier

Vous souhaitez connaître votre capacité d’emprunt et trouver le meilleur crédit immobilier ?
Réaliser une simulation gratuite

Appartement à LYON-3E
Appartement à LYON-3E
Appartement à LYON-3E
Appartement à LYON-3E
Appartement à LYON-3E
Appartement à LYON-3E
Ce site est protégé par reCAPTCHA la Politique de confidentialité et les Conditions d’utilisation de Google s’appliquent.
Obtenir un prêt immobilier au meilleur taux ?

En poursuivant votre navigation sans modifier vos paramètres, vous acceptez l'utilisation de cookies susceptibles de réaliser des statistiques de visite. Cliquez ici pour plus d'informations