Bénéficiez des services de nos partenaires locaux soigneusement sélectionnés
pour vous accompagner dans votre parcours d'achat immobilier

Maison 112m² à albigny-sur-saone

— Albigny-Sur-Saone 69250 —
200 000 €
112 m²
4 pièces

Nos partenaires locaux
Iad France - Magali Koppe vous propose : Place de Verdun, plein centre du village
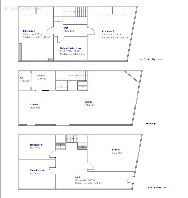
Maison de ville de caractère sur 3 niveaux, alliant charme et praticité.

Description
Rez-de-chaussée : entrée, chambre, cellier / cave, buanderie avec meuble vasque + WC (possibilité salle d'eau).

1er étage : grande pièce de vie de 33 m² lumineuse avec cuisine ouverte, salon-séjour, salle à manger, cellier et WC indépendant.

2ème étage : deux chambres sous Velux + salle de bains.

Points forts:
Diagnostics irréprochables (pas de plomb, pas d'amiante, aucune anomalie gaz / électricité)
Taxe foncière : 952 ¤
Emplacement idéal : commerces de proximité (boulangeries, pharmacie, marché, restaurants) et écoles accessibles à pied
Gare SNCF Albigny à quelques minutes (10 min de Lyon Part-Dieu), lignes de bus TCL et accès rapide aux axes routiers

Vente interactive : le prix affiché correspond au prix de première offre possible.

Honoraires d'agence à la charge du vendeur.
Information d'affichage énergétique sur ce bien : classe ENERGIE D indice 226 et classe CLIMAT D indice 46. Les informations sur les risques auxquels ce bien est exposé, y compris l'obligation légale de débroussaillement, sont disponibles sur le site Géorisques : http://www.georisques.gouv.fr.
La présente annonce immobilière a été rédigée sous la responsabilité éditoriale de Mme Magali Koppe mandataire indépendant en immobilier (sans détention de fonds), agent commercial de la SAS I@D France immatriculé au RSAC de LYON sous le numéro 831817747, titulaire de la carte de démarchage immobilier pour le compte de la société I@D France SAS.
Informations LOI ALUR :
Honoraires charge vendeur. (gedeon_6727_31937019)
Voir plus

Référence: 1845003
Honoraires à la charge du vendeur.
DPE
A
B
C
D
E
F
G
GES
A
B
C
D
E
F
G

Prêt immobilier

Vous souhaitez connaître votre capacité d’emprunt et trouver le meilleur crédit immobilier ?
Réaliser une simulation gratuite

Photo 1 - Maison à ALBIGNY-SUR-SAONE
Photo 1
Photo 2 - Maison à ALBIGNY-SUR-SAONE
Photo 2
Photo 3 - Maison à ALBIGNY-SUR-SAONE
Photo 3
Photo 4 - Maison à ALBIGNY-SUR-SAONE
Photo 4
Photo 5 - Maison à ALBIGNY-SUR-SAONE
Photo 5
Photo 6 - Maison à ALBIGNY-SUR-SAONE
Photo 6
Photo 7 - Maison à ALBIGNY-SUR-SAONE
Photo 7
Photo 8 - Maison à ALBIGNY-SUR-SAONE
Photo 8
Photo 9 - Maison à ALBIGNY-SUR-SAONE
Photo 9
Ce site est protégé par reCAPTCHA la Politique de confidentialité et les Conditions d’utilisation de Google s’appliquent.
Obtenir un prêt immobilier au meilleur taux ?

En poursuivant votre navigation sans modifier vos paramètres, vous acceptez l'utilisation de cookies susceptibles de réaliser des statistiques de visite. Cliquez ici pour plus d'informations