Bénéficiez des services de nos partenaires locaux soigneusement sélectionnés
pour vous accompagner dans votre parcours d'achat immobilier

Appartement neuf quartier bastide proche darwin

— Bordeaux 33100 —
499 000 €
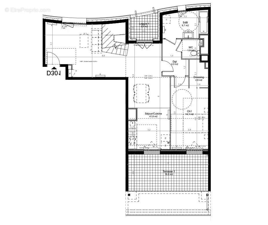
98 m²
4 pièces
parkingbalcon/terrasseascenseur

Nos partenaires locaux
Découvrez cet élégant appartement de 98 m², situé dans le quartier prisé de La Bastide à Bordeaux. Ce bien dispose de trois chambres de 9 à 14 m2 et d'un spacieux séjour-cuisine de 42 m2. Chaque pièce est équipée de fenêtres en PVC avec double vitrage pour un isolation optimale agrémentés de volets roulants électriques.

Bénéficiant de la norme RT 2012, l'ensemble est sécurisé et le chauffage est assuré par un réseau de chaleur urbain. L'accès au logement est facilité par un ascenseur et la fibre optique garantit une connexion internet rapide.
Pour votre commodité, vous disposez d'un local à vélo et une place de stationnement en parking sécurisé est comprise dans le prix.
La livraison du programme est prévue au printemps 2026.
Pourquoi choisir ce bien ?
- frais de notaire réduits
- aucun frais d’agence
- éligible PTZ (selon profil)
- charges maîtrisées
- dernières normes RT2012 / RE2020 / HQE
- basse consommation, DPE A/B

N'attendez pas pour me contacter.
Il reste d'autres logements dans cette résidence du T2 au T5.
Je peux aussi vous proposer bien d'autres projets dans toute la région bordelaise.
N'hésitez pas à me solliciter.
Natacha VINCENT
Spécialiste de l'immobilier neuf
Agent YouLive
Voir plus

Référence: 625-24-33-D301-NV
Barème des honoraires

Prêt immobilier

Vous souhaitez connaître votre capacité d’emprunt et trouver le meilleur crédit immobilier ?
Réaliser une simulation gratuite

Appartement à BORDEAUX
Appartement à BORDEAUX
Appartement à BORDEAUX
Appartement à BORDEAUX
Appartement à BORDEAUX
Appartement à BORDEAUX
Ce site est protégé par reCAPTCHA la Politique de confidentialité et les Conditions d’utilisation de Google s’appliquent.
Obtenir un prêt immobilier au meilleur taux ?

En poursuivant votre navigation sans modifier vos paramètres, vous acceptez l'utilisation de cookies susceptibles de réaliser des statistiques de visite. Cliquez ici pour plus d'informations