Bénéficiez des services de nos partenaires locaux soigneusement sélectionnés
pour vous accompagner dans votre parcours d'achat immobilier

Appartement 70m² à paris-15e

— Paris-15e 75015 —
799 000 €
70 m²
5 pièces
ascenseur

Nos partenaires locaux
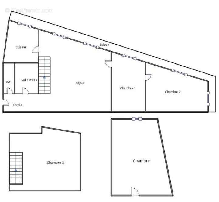
Au pied de la rue du Commerce, à deux pas du métro Commerce, ce 5 pièces en duplex se situe au 5e étage avec ascenseur d’un bel immeuble ancien en pierre et brique de 1900. Il comprend un séjour lumineux de 21 m² ouvrant sur un balcon filant de 11 m², une cuisine séparée, deux chambres, une salle d’eau et des WC indépendants. Un escalier intérieur mène à une troisième chambre de 10 m² attenante à une chambre de service de 8,42 m², située au 6e étage. Le bien bénéficie d’une belle exposition plein sud, d’une vue dégagée sans vis-à-vis et d’un bon potentiel d’aménagement, notamment la possibilité de créer un grand séjour de 30 m² avec trois chambres. Une cave complète ce bien.
Informations complémentaires : Chauffage et eau chaude individuels électriques. Charges : 193€/mois. Copropriété de 65 lots. Prix de vente : 799.000 € (780.000 € hors honoraires) Honoraires de 2,43 % TTC à la charge des acquéreurs. Les informations sur les risques auxquels ce bien est exposé sont disponibles sur le site Géorisques : www.georisques.gouv.fr
Voir plus
DPE
A
B
C
D
E
F
G
GES
A
B
C
D
E
F
G

Prêt immobilier

Vous souhaitez connaître votre capacité d’emprunt et trouver le meilleur crédit immobilier ?
Réaliser une simulation gratuite

Appartement à PARIS-15E
Appartement à PARIS-15E
Appartement à PARIS-15E
Appartement à PARIS-15E
Appartement à PARIS-15E
Appartement à PARIS-15E
Appartement à PARIS-15E
Appartement à PARIS-15E
Appartement à PARIS-15E
Appartement à PARIS-15E
Ce site est protégé par reCAPTCHA la Politique de confidentialité et les Conditions d’utilisation de Google s’appliquent.
Obtenir un prêt immobilier au meilleur taux ?

En poursuivant votre navigation sans modifier vos paramètres, vous acceptez l'utilisation de cookies susceptibles de réaliser des statistiques de visite. Cliquez ici pour plus d'informations