Bénéficiez des services de nos partenaires locaux soigneusement sélectionnés
pour vous accompagner dans votre parcours d'achat immobilier

Appartement t5 pornichet - 152.59 m2 1 885 000 euros

— Pornichet 44380 —
1 885 000 €
152 m²
5 pièces
parkingbalcon/terrasseascenseur

Nos partenaires locaux
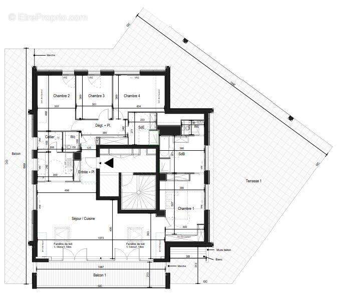
À l'entrée de Pornichet, Carré Petit Prince, votre résidence de standing récente (avec frais de notaire réduits à 2,5%).

Rare et exceptionnel, ce loft au 4ème et dernier étage vous offre l'opportunité de vivre comme dans une maison sur le toit d'une résidence intimiste idéalement située en plein centre de Pornichet.

Cet appartement développe plus de 150 m² carrez aux volumes généreux.

Un espace atypique et baigné de lumière

Vous y découvrirez :
Une pièce de vie de 82 m² comprenant séjour, salle à manger et cuisine ouverte,
Une hauteur sous plafond impressionnante de 4,50 m dans le salon, accentuant encore la sensation d'espace,
Une triple exposition, majoritairement Sud-Ouest, qui inonde l'appartement de lumière naturelle.

Un espace nuit bien pensé
Le coin nuit, séparé, propose :
Deux chambres confortables,
Une suite parentale avec salle d'eau privative et WC,
Une salle de bains indépendante.

L'ensemble s'adapte à vos envies et vos besoins.

Une terrasse panoramique à couper le souffle :
Le vrai luxe de ce bien ? Une terrasse exceptionnelle de 270 m², entourant l'appartement et offrant des vues dégagées et dominantes sur le centre-ville de Pornichet. Lieu idéal pour créer plusieurs ambiances : coin repas, espace détente, jardin suspendu

Des prestations complémentaires haut de gamme :
Garage double
Deux grands locaux vélos privatifs
Appartement personnalisable selon vos envies

Un potentiel d'agrandissement exceptionnel :
Vous rêvez d'un espace encore plus grand ?
Une extension jusqu'à 80m² supplémentaires est possible (en CPI), permettant par exemple de créer :
Une salon ou une quatrième chambre avec dressing et salle de bain.

Personnalisation selon votre projet :
Frais de notaire réduits à 2.5%
Visites sur rendez-vous au [Coordonnées masquées] : version brute visible dès maintenant
Voir plus

Référence: AVE1515_B401
Barème des honoraires

Prêt immobilier

Vous souhaitez connaître votre capacité d’emprunt et trouver le meilleur crédit immobilier ?
Réaliser une simulation gratuite

Appartement à PORNICHET
Appartement à PORNICHET
Appartement à PORNICHET
Appartement à PORNICHET
Appartement à PORNICHET
Appartement à PORNICHET
Appartement à PORNICHET
Appartement à PORNICHET
Appartement à PORNICHET
Appartement à PORNICHET
Ce site est protégé par reCAPTCHA la Politique de confidentialité et les Conditions d’utilisation de Google s’appliquent.
Obtenir un prêt immobilier au meilleur taux ?

En poursuivant votre navigation sans modifier vos paramètres, vous acceptez l'utilisation de cookies susceptibles de réaliser des statistiques de visite. Cliquez ici pour plus d'informations