Bénéficiez des services de nos partenaires locaux soigneusement sélectionnés
pour vous accompagner dans votre parcours d'achat immobilier

Appartement 2 pièces avec affectation hôtelière

— Saint-Ouen 93400 —
269 999 €
46 m²
2 pièces

Nos partenaires locaux
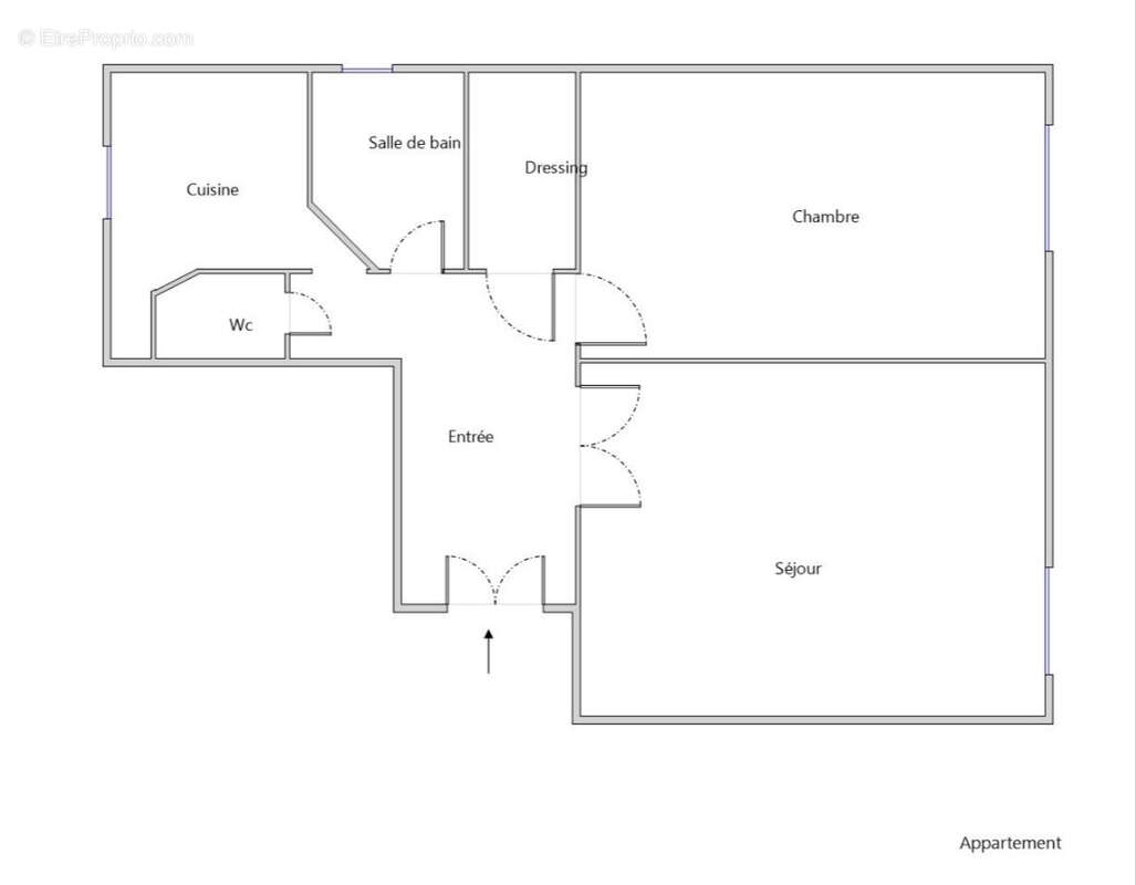
À Saint-Ouen-sur-seine, dans un bel immeuble ancien des années 1930 en pierres de taille et briques, Triomphe Immobilier vous propose ce charmant appartement 2 pièces de 46 m2 situé en rez-de-chaussée, bénéficiant d’une belle hauteur sous plafond et d’un cadre calme avec l'affectation hôtelière vous permettant une location saisionnière tout au long de l'année.

Il se compose d’une grande entrée, d’un séjour lumineux de 13,5 m2, d’une chambre spacieuse de 13,5 m2, d’une cuisine séparée et équipée (plaques vitrocéramiques, four), d’une salle de bain avec baignoire, d’un WC indépendant, d’une buanderie avec rangements ainsi que d’une cave en sous-sol.
L’appartement bénéficie d’une double orientation sud-ouest sur rue calme et nord-est sur cour intérieure commune, assurant à la fois luminosité et tranquillité.
Idéalement situé, à seulement 6 minutes à pied de la station Mairie de Saint-Ouen (L14 et L13), il est proche de tous commerces, écoles, crèches, équipements sportifs et du Grand Parc de Saint-Ouen.
Un bien rare alliant charme de l’ancien et confort moderne, parfait pour un premier achat ou un investissement.
Voir plus

Barème des honoraires
DPE
A
B
C
D
E
F
G
GES
A
B
C
D
E
F
G

Prêt immobilier

Vous souhaitez connaître votre capacité d’emprunt et trouver le meilleur crédit immobilier ?
Réaliser une simulation gratuite

Appartement à SAINT-OUEN
Appartement à SAINT-OUEN
Appartement à SAINT-OUEN
Appartement à SAINT-OUEN
Appartement à SAINT-OUEN
Appartement à SAINT-OUEN
Appartement à SAINT-OUEN
Appartement à SAINT-OUEN
Ce site est protégé par reCAPTCHA la Politique de confidentialité et les Conditions d’utilisation de Google s’appliquent.
Obtenir un prêt immobilier au meilleur taux ?

En poursuivant votre navigation sans modifier vos paramètres, vous acceptez l'utilisation de cookies susceptibles de réaliser des statistiques de visite. Cliquez ici pour plus d'informations