Bénéficiez des services de nos partenaires locaux soigneusement sélectionnés
pour vous accompagner dans votre parcours d'achat immobilier

Voir tous les partenaires locaux

Commerce 54m² à paris-16e

— Paris-16e 75016 —
420 000 €
54 m²
3 pièces

Nos partenaires locaux
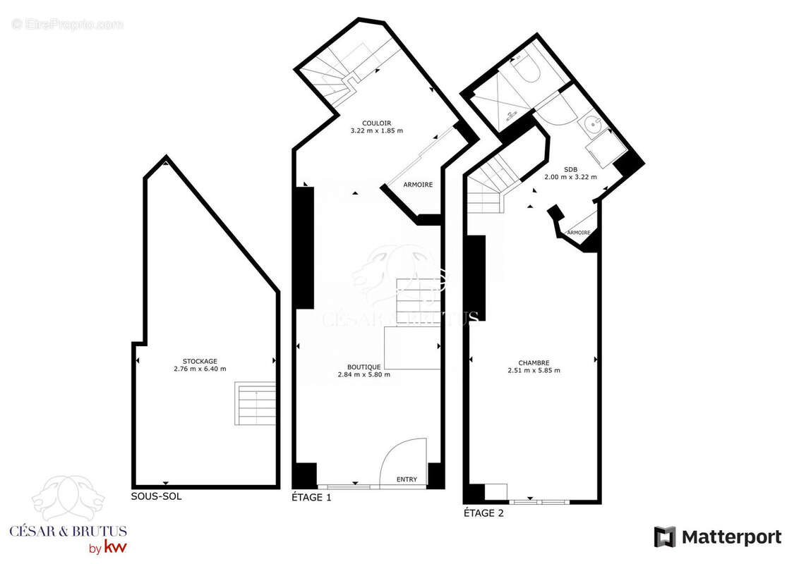
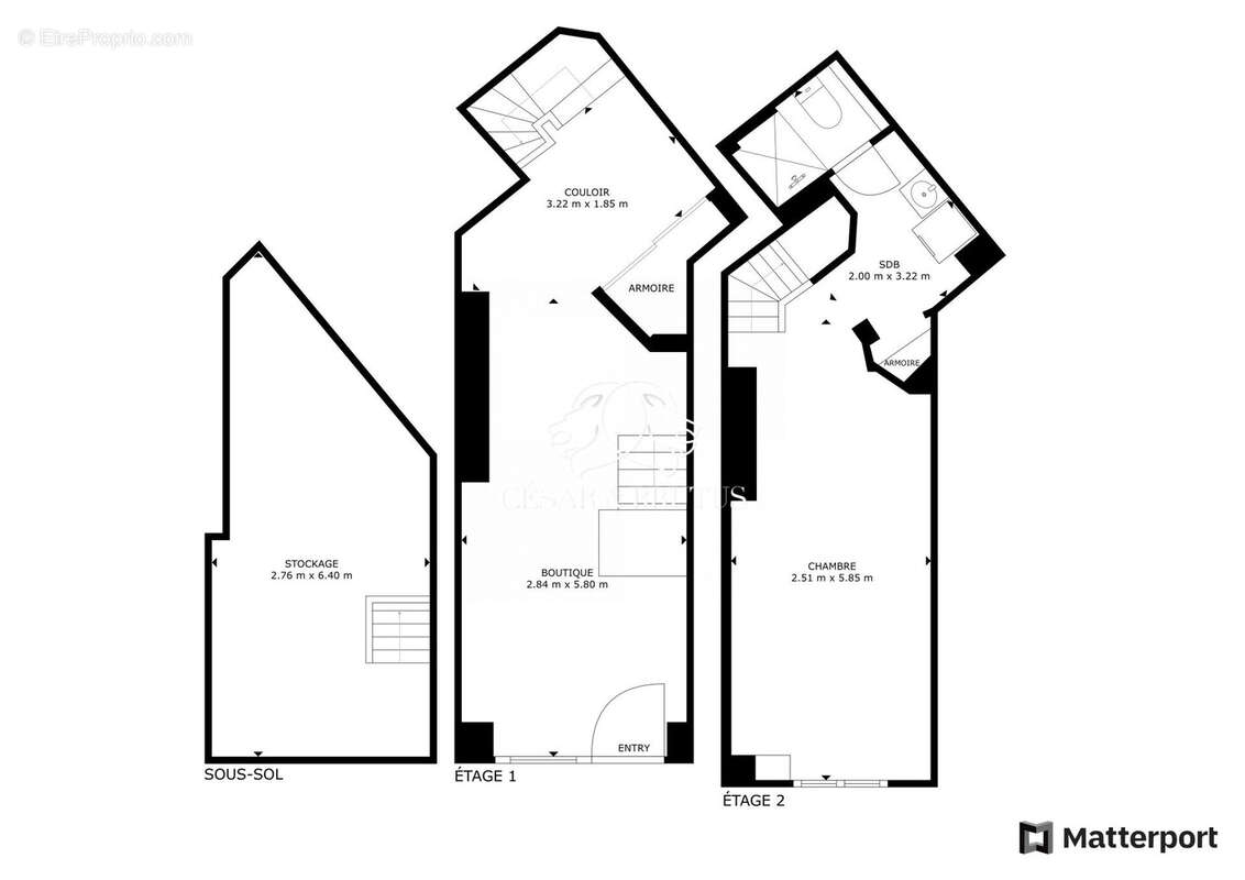
Idéalement situé dans le 16eme arrondissement de Paris, ce local commercial bénéficie d'un environnement recherché, caractérisé par son calme, son élégance et son architecture remarquable. Ce secteur prisé, bien desservi par les transports en commun, offre un cadre de vie agréable et dynamique, parfait pour une activité commerciale. Caractéristiques du bien : - Surface commerciale en rez-de-chaussée avec une belle vitrine offrant une visibilité optimale (18,44 m2). - Studio et/ou bureau au 1er étage, idéal pour un usage privé ou un bureau (18,69 m2). - Zone de stockage en sous-sol, chauffée et parfaitement exploitable (13,7 m2). Deux escaliers desservent les trois niveaux, facilitant la circulation et l'aménagement des espaces. Ce bien rare sur le marché combine une localisation stratégique et un agencement fonctionnel, parfait pour toute activité nécessitant un espace de vente, un bureau indépendant et une zone de stockage efficace. Les honoraires sont à la charge de l'acquéreur. DPE C - GES B. Bien soumis au régime de la copropriété. Charges annuelles de 1228€. Pas de procédure en cours. Contactez Maxime Ramond Bluzet pour plus d'informations ou organiser une visite : [Coordonnées masquées] / [Coordonnées masquées] REF MR-6892

Honoraires inclus de 3.99% à la charge de l'acquéreur. Prix hors honoraires 403 900 €. Dans une copropriété de 65 lots. Quote-part moyenne du budget prévisionnel 1 228 €/an. Procédure en cours : 39/2173. Classe énergie C, Classe climat A. Les informations sur les risques auxquels ce bien est exposé sont disponibles sur le site Géorisques : georisques.gouv.fr.
Voir plus

Référence: MR-6892-CESARETBRUTUS69
Bien en copropriété. Nombre de lots : 65. Charges de copropriété : 1228 €.
Honoraires d'agence de 3.99% à la charge de l'acquéreur
Barème des honoraires
DPE
A
B
C
D
E
F
G
GES
A
B
C
D
E
F
G

Prêt immobilier

Vous souhaitez connaître votre capacité d’emprunt et trouver le meilleur crédit immobilier ?
Réaliser une simulation gratuite

Commerce à PARIS-16E
Commerce à PARIS-16E
Commerce à PARIS-16E
Commerce à PARIS-16E
Ce site est protégé par reCAPTCHA la Politique de confidentialité et les Conditions d’utilisation de Google s’appliquent.
Obtenir un prêt immobilier au meilleur taux ?

En poursuivant votre navigation sans modifier vos paramètres, vous acceptez l'utilisation de cookies susceptibles de réaliser des statistiques de visite. Cliquez ici pour plus d'informations