Maison i dinan i 4 chambres i 102 m2 i dpe c

— Dinan 22100 —
375 000 €
102 m²
5 pièces
balcon/terrassejardin

Vous êtes à la recherche d'un cadre de vie paisible et familial sans renoncer à la proximité des commodités ? Ne cherchez plus ! Liberkeys a le plaisir de vous proposer en exclusivité cette charmante maison récente de 102 m² habitables, nichée sur un beau terrain de 635 m², au cœur d'un environnement calme et verdoyant à Dinan, dans le secteur prisé de Léhon.

Description Détaillée :
Idéale pour une famille, cette maison lumineuse et bien agencée se compose comme suit :

Au rez-de-chaussée :
- Une belle pièce de vie (salon-séjour) lumineuse avec accès direct au jardin.
- Une cuisine ouverte et fonctionnelle, prolongée par une arrière-cuisine pratique.
- Une chambre (possibilité de vie de plain-pied).
- Une salle d'eau avec WC.

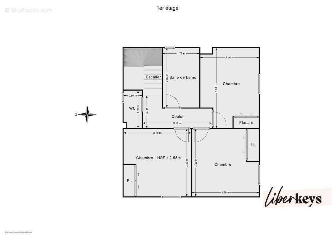
À l'étage :
- Trois chambres supplémentaires.
- Une salle de bain.
- Un WC indépendant.

Les Atouts de la Maison :
Performance énergétique optimale : Bénéficiez d'un excellent DPE classé C, synonyme de confort et d'économies d'énergie grâce à un chauffage performant au gaz.

Extérieurs privilégiés : Profitez d'une terrasse exposée Sud-Ouest, parfaite pour vos déjeuners et dîners en extérieur, ainsi que de moments de détente au soleil.

Commodités : Un garage pratique avec des rangements en mezzanine.

Faible charge : Une taxe foncière attractive de seulement 1097 €.

Situation Idéale :
Localisation exceptionnelle : Quartier calme et verdoyant de Léhon.

Proximité : Accès immédiat aux commodités et aux écoles.

Accessibilité : Accès facile et rapide vers le centre-ville de Dinan.

Cette maison est une véritable opportunité pour s'installer durablement dans un environnement de qualité.

Une visite s'impose ! Contactez-nous pour organiser votre découverte de ce bien coup de cœur.

Informations financières :
Estimation des dépenses annuelles d'énergie : entre 1 115€ et 1 509€ (prix moyens des énergies indexés sur 2023, abonnements compris).
Ce bien vous séduit ?
Visitez-le dès maintenant en 3D sur le site de Liberkeys ou contactez directement votre conseiller :
Hugues Le Gall, agent commercial (RSAC Saint-Malo n° 502 019 771).
Voir plus

Référence: DOM16860
Honoraires d'agence de 3.5% à la charge de l'acquéreur
DPE
A
B
C
D
E
F
G
GES
A
B
C
D
E
F
G

Prêt immobilier

Vous souhaitez connaître votre capacité d’emprunt et trouver le meilleur crédit immobilier ?
Réaliser une simulation gratuite

Maison à DINAN
Maison à DINAN
Maison à DINAN
Maison à DINAN
Maison à DINAN
Maison à DINAN
Maison à DINAN
Maison à DINAN
Maison à DINAN
Maison à DINAN
Maison à DINAN
Maison à DINAN
Maison à DINAN
Maison à DINAN
Maison à DINAN
Maison à DINAN
Maison à DINAN
Maison à DINAN
Maison à DINAN
Maison à DINAN
Maison à DINAN
Ce site est protégé par reCAPTCHA la Politique de confidentialité et les Conditions d’utilisation de Google s’appliquent.
Obtenir un prêt immobilier au meilleur taux ?

En poursuivant votre navigation sans modifier vos paramètres, vous acceptez l'utilisation de cookies susceptibles de réaliser des statistiques de visite. Cliquez ici pour plus d'informations