Epinay-sur-seine - terrain viabilisé avec permis de construire accordé - projet clé en main - accès t8 & n14

— Epinay-Sur-Seine 93800 —
299 000 €
324 m²

DESCRIPTION DU BIEN

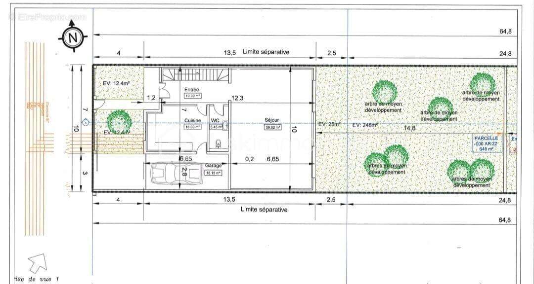
Nous vous proposons exclusivement ce terrain parfaitement viabilisé (eau, électricité, gaz, égouts) d'une surface de 324 m², situé dans un secteur tranquille et recherché du nord-est d'Epinay-sur-Seine. La grande force de ce bien : un Permis de Construire déjà accordé pour une maison individuelle moderne, conçue par un architecte.

Ce projet représente une opportunité unique pour vos clients investisseurs ou particuliers de se lancer dans une construction sans les aléas et délais d'une demande de permis. Le projet est ficelé, réaliste et prêt à démarrer.

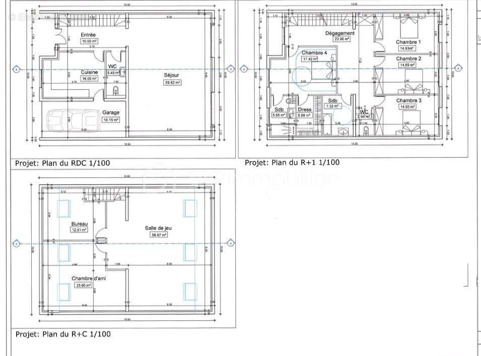
CARACTÉRISTIQUES DU PROJET LAURÉAT
Type : Maison individuelle contemporaine en R+1 avec sous-sol complet (R+1+C)

- Surface Habitable : Environ 300 m²
- Compléments : Garage intégré d'environ 18 m²
- Emprise au sol : 135 m²
- Hauteur : Respect des règlements : 11m au faîtage / 7m à la gouttière
- Extérieur : Jardin d'agrément d'environ 189 m²
- État : Permis de Construire délivré - Plans d'architecte disponibles

SITUATION & ACCÈS (ATOUTS MAJEURS)
La localisation de ce terrain est son atout stratégique pour une clientèle d'actifs. Il allie la tranquillité d'un quartier pavillonnaire à une desserte multimodale exceptionnelle :

- Transports en commun : À seulement 400 mètres de l'arrêt 'Les Mobiles' du Tramway T8 (liaison directe avec Saint-Denis, Stains, etc.).

- Accès routier : Accès direct à la Nationale 14 en 6 minutes environ, offrant une liaison rapide vers Paris, La Défense (environ 20 min) et la Francilienne.

- Commodités : Proximité des commerces de proximité, écoles et services.

NOTRE CONSEIL EXPERT

Ce bien s'adresse principalement à :
- Familles recherchant un projet clé en main pour leur résidence principale.

- Investisseurs avisés identifiant la valeur ajoutée d'un terrain avec permis accordé, permettant une mise en location ou une revente rapide après construction.

La viabilisation complète et le permis obtenu sécurisent le projet et le calendrier, un argument commercial de poids.

Contactez-moi dès maintenant pour une visite du terrain et pour découvrir l'intégralité des plans. Votre future maison n'attend plus que vous !

Cette annonce référence 301438 vous est présentée par votre agent commercial BSK Immobilier DALILA MALIK (EI) immatriculé au RSAC de BOBIGNY (93000) sous le numéro 89[Coordonnées masquées]18.

Prix du bien : 299 000,00 €
Les honoraires d'agence sont à la charge du vendeur.

Les informations sur les risques auxquels ce bien est exposé sont disponibles sur le site Géorisques : www.georisques.gouv.fr
Voir plus

Référence: 301438
Honoraires à la charge du vendeur.

Prêt immobilier

Vous souhaitez connaître votre capacité d’emprunt et trouver le meilleur crédit immobilier ?
Réaliser une simulation gratuite

Terrain à EPINAY-SUR-SEINE
Terrain à EPINAY-SUR-SEINE
Terrain à EPINAY-SUR-SEINE
Terrain à EPINAY-SUR-SEINE
Terrain à EPINAY-SUR-SEINE
Ce site est protégé par reCAPTCHA la Politique de confidentialité et les Conditions d’utilisation de Google s’appliquent.
Obtenir un prêt immobilier au meilleur taux ?

En poursuivant votre navigation sans modifier vos paramètres, vous acceptez l'utilisation de cookies susceptibles de réaliser des statistiques de visite. Cliquez ici pour plus d'informations