Appartement 226m² à gueugnon

— Gueugnon 71130 —
260 000 €
226 m²
9 pièces
parking

71130 - GUEUGNON ENSEMBLE IMMOBILIER DE RAPPORT-3 LOGEMENTS - 226.0 M² - IDÉAL INVESTISSEUR OU PROJET DE RÉSIDENCE PRINCIPALE ET LOCATIVE

efficity, l'agence qui estime votre bien en ligne, vous propose cette superbe opportunité d'acquérir un immeuble à 5 mn du centre ville à pied à Gueugnon.
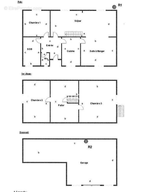
Il se compose de 3 logements en "L" avec 2 T2 de plain-pied avec cour privative individuelle et d'une maison T5 élevée sur sous-sol avec garage et jardin.
Un grand parking à l'entrée est disponible et des garages.

L'ensemble a été rénové en 2023 ; factures à l'appui. Assainissement connecté au réseau collectif d'eaux usées.

T2 n°1 : 40,97 m2 - Loué MEUBLÉ :

- Loyer : 452 €/mois
- chauffage électrique
- courette privée
- DPE : E mais deviendra D en Janvier 2026

T2 n°2 : 52,47 m2 - Loué MEUBLÉ :

- Loyer : 550 €/mois
- Chauffage électrique
- Cour privée
- DPE : E mais deviendra D en Janvier 2026

T5 : 133,05 m2 - maison élevée sur sous-sol avec grand garage 58 m2 - Louée NON MEUBLÉE :

- chaudière gaz de ville neuve + insert bois
- RDC : avec double entrée par le jardin ou la rue : entrée, WC, cuisine séparée, salon / salle à manger, chambre
- ÉTAGE : grande mezzanine (bureau), 2 chambres dont une avec escalier extérieur
- DPE : D, reste stable en D en Janvier 2026

Taxe foncière : 1972 €/an
RENDEMENT BRUT DES LOYERS : 1762 €/MOIS, SOIT 21144 €/AN

Tous les logements sont loués, en gestion locative actuellement, entièrement rénovés et rafraîchis.

Les + : - Immeuble clé en main pour investisseur, avec rentabilité immédiate.
- Pas de travaux à prévoir pour louer.
- Passage des T2 en "D" en 2026
Les informations sur les risques auxquels ce bien est exposé sont disponibles sur le site Georisque : georisques. gouv. fr
Anne Laure Loiseau - EI - est Agent Commercial mandataire en immobilier, immatriculé au Registre Spécial des Agents Commerciaux du Tribunal de Commerce de Macon sous le n°818464638.
Siège social du mandant : effiCity, 48 avenue de Villiers - 75017 PARIS - Société par Actions Simplifiée, société au capital de 132 373,05 euros, immatriculée au RCS Paris 497 617 746 et titulaire de la Carte professionnelle CPI 75[Coordonnées masquées]02 025 - CCI Paris IDF - Caisse de Garantie : GALIAN Assurances 89 rue de la Boétie 75008 Paris
Voir plus

Référence: 195289
Honoraires d'agence de 7% à la charge de l'acquéreur
Barème des honoraires
DPE
A
B
C
D
E
F
G
GES
A
B
C
D
E
F
G

Prêt immobilier

Vous souhaitez connaître votre capacité d’emprunt et trouver le meilleur crédit immobilier ?
Réaliser une simulation gratuite

Appartement à GUEUGNON
Appartement à GUEUGNON
Appartement à GUEUGNON
Appartement à GUEUGNON
Appartement à GUEUGNON
Appartement à GUEUGNON
Appartement à GUEUGNON
Appartement à GUEUGNON
Appartement à GUEUGNON
Appartement à GUEUGNON
Appartement à GUEUGNON
Appartement à GUEUGNON
Appartement à GUEUGNON
Appartement à GUEUGNON
Appartement à GUEUGNON
Appartement à GUEUGNON
Appartement à GUEUGNON
Appartement à GUEUGNON
Appartement à GUEUGNON
Appartement à GUEUGNON
Appartement à GUEUGNON
Appartement à GUEUGNON
Appartement à GUEUGNON
Ce site est protégé par reCAPTCHA la Politique de confidentialité et les Conditions d’utilisation de Google s’appliquent.
Obtenir un prêt immobilier au meilleur taux ?

En poursuivant votre navigation sans modifier vos paramètres, vous acceptez l'utilisation de cookies susceptibles de réaliser des statistiques de visite. Cliquez ici pour plus d'informations