Appartement

— Bonnefamille 38090 —
199 000 €
50 m²
2 pièces
parkingbalcon/terrassejardinascenseur

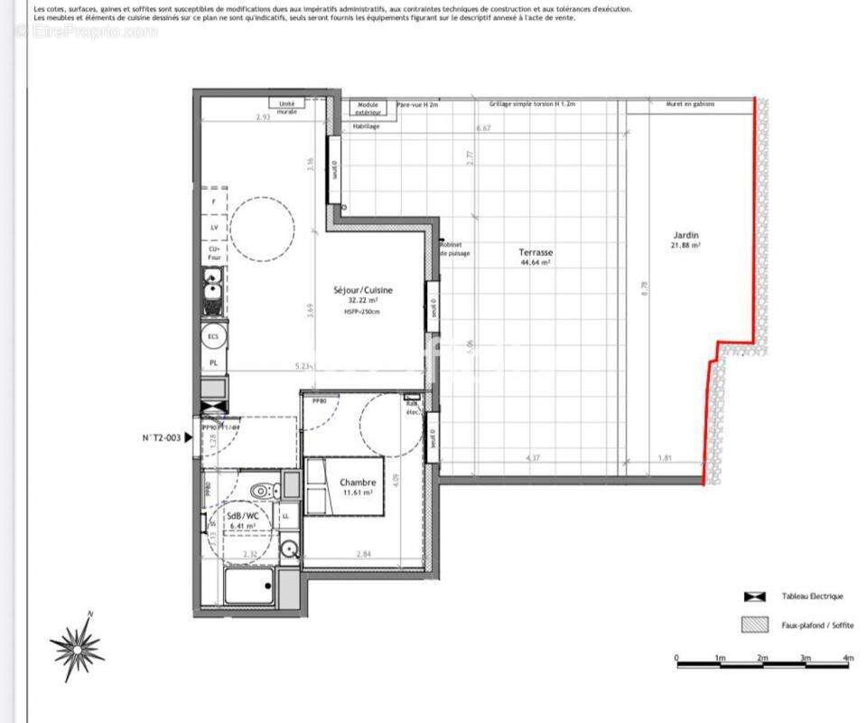
BONNEFAMILLE - APPARTEMENT T2 de 50m2 avec terrasse et jardin privatif de 66m2

Corinne BIDOT et Efficity vous font découvrir ce superbe appartement , situé dans une résidence en cours de construction

Idéal pour un investissement locatif ou un premier achat, il offre calme, confort et espace extérieur généreux.

Caractéristiques principales :

Surface habitable : 50 m²

Pièce de vie : 34 m², Séjour lumineux donnant directement sur le jardin

Chambre : 11.62 m² confortable et grande salle de bain fonctionnelle de 6.5m²

Rez-de-jardin avec un jardin exceptionnel de 66 m², carrelé et engazonné

Pompe à Chaleur
Carrelage grand format
PMR - RE2020

Atouts :

Résidence intimiste et sécurisée (11 logements)

Quartier calme, idéal pour se détendre

Parfait pour investissement locatif ou primo-accédant

Opportunité rare sur le marché avec espace extérieur généreux

Pour plus d'informations ou organiser une visite, contactez-nous dès maintenant !
Les informations sur les risques auxquels ce bien est exposé sont disponibles sur le site Georisque : georisques. gouv. fr
Corinne Bidot - EI - est Agent Commercial mandataire en immobilier, immatriculé au Registre Spécial des Agents Commerciaux du Tribunal de Commerce de Lyon sous le n°895229227.
Siège social du mandant : effiCity, 48 avenue de Villiers - 75017 PARIS - Société par Actions Simplifiée, société au capital de 132 373,05 euros, immatriculée au RCS Paris 497 617 746 et titulaire de la Carte professionnelle CPI 75[Coordonnées masquées]02 025 - CCI Paris IDF - Caisse de Garantie : GALIAN Assurances 89 rue de la Boétie 75008 Paris
Voir plus

Référence: 195179003
Bien en copropriété. Nombre de lots : 11. Charges de copropriété : 16 €.
Honoraires à la charge du vendeur.
Barème des honoraires
DPE
A
B
C
D
E
F
G
GES
A
B
C
D
E
F
G

Prêt immobilier

Vous souhaitez connaître votre capacité d’emprunt et trouver le meilleur crédit immobilier ?
Réaliser une simulation gratuite

Appartement à BONNEFAMILLE
Appartement à BONNEFAMILLE
Appartement à BONNEFAMILLE
Appartement à BONNEFAMILLE
Appartement à BONNEFAMILLE
Ce site est protégé par reCAPTCHA la Politique de confidentialité et les Conditions d’utilisation de Google s’appliquent.
Obtenir un prêt immobilier au meilleur taux ?

En poursuivant votre navigation sans modifier vos paramètres, vous acceptez l'utilisation de cookies susceptibles de réaliser des statistiques de visite. Cliquez ici pour plus d'informations