Appartement

— Bonnefamille 38090 —
299 000 €
81 m²
3 pièces
parkingbalcon/terrasseascenseur

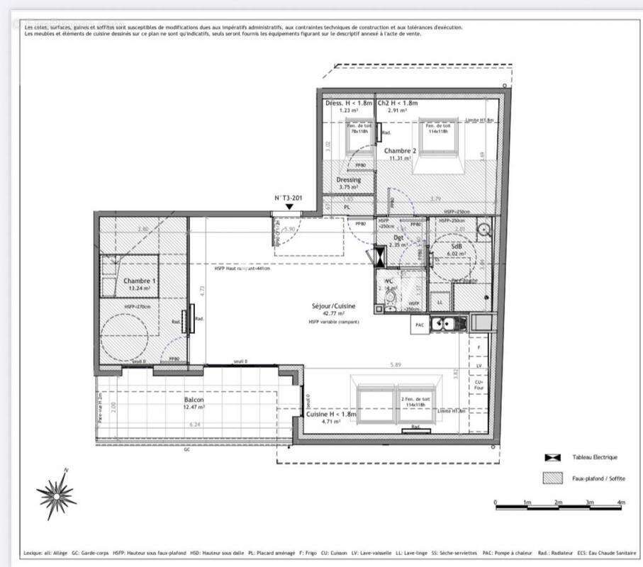
BONNEFAMILLE 38090 - Appartement d'exception sous charpente - 3 pièces – 82 m² – Dernier étage – terrasse 13 m² – exposition Sud

Corinne BIDOT et Efficity vous présentent un appartement rare à Bonnefamille, au 2ᵉ et dernier étage d'une résidence neuve répondant aux normes RE 2020.

Un bien qui se démarque :

- Une pièce de vie hors du commun : séjour-cuisine de 43 m² baigné de lumière, sublimé par de superbes volumes sous charpente, pour une atmosphère unique et chaleureuse.

- Une suite parentale avec dressing intégré, pour allier confort et praticité.

- Une deuxième chambre qui s'ouvre sur la terrasse

- Une terrasse de 13 m², exposé plein sud, idéal pour profiter du calme et du soleil.

- Une conception atypique qui donne à cet appartement une véritable identité, loin des logements standardisés.

Je vous propose en avant première une visite sur le chantier afin de vous projeter dans ce futur lieu de vie, dont la livraison est prévue pour mars 2026.

Points forts : dernier étage, volumes exceptionnels, luminosité, calme, modernité, appartement neuf avec toutes les garanties décennales et FRAIS DE NOTAIRES REDUITS

Ne manquez pas cette opportunité de devenir propriétaire d'un appartement qui ne ressemble à aucun autre sur le marché.

Contactez-moi dès maintenant pour organiser une visite sur site !
Les informations sur les risques auxquels ce bien est exposé sont disponibles sur le site Georisque : georisques. gouv. fr
Corinne Bidot - EI - est Agent Commercial mandataire en immobilier, immatriculé au Registre Spécial des Agents Commerciaux du Tribunal de Commerce de Lyon sous le n°895229227.
Siège social du mandant : effiCity, 48 avenue de Villiers - 75017 PARIS - Société par Actions Simplifiée, société au capital de 132 373,05 euros, immatriculée au RCS Paris 497 617 746 et titulaire de la Carte professionnelle CPI 75[Coordonnées masquées]02 025 - CCI Paris IDF - Caisse de Garantie : GALIAN Assurances 89 rue de la Boétie 75008 Paris
Voir plus

Référence: 195179201
Bien en copropriété. Nombre de lots : 11. Charges de copropriété : 16 €.
Honoraires à la charge du vendeur.
Barème des honoraires
DPE
A
B
C
D
E
F
G
GES
A
B
C
D
E
F
G

Prêt immobilier

Vous souhaitez connaître votre capacité d’emprunt et trouver le meilleur crédit immobilier ?
Réaliser une simulation gratuite

Appartement à BONNEFAMILLE
Appartement à BONNEFAMILLE
Appartement à BONNEFAMILLE
Appartement à BONNEFAMILLE
Appartement à BONNEFAMILLE
Ce site est protégé par reCAPTCHA la Politique de confidentialité et les Conditions d’utilisation de Google s’appliquent.
Obtenir un prêt immobilier au meilleur taux ?

En poursuivant votre navigation sans modifier vos paramètres, vous acceptez l'utilisation de cookies susceptibles de réaliser des statistiques de visite. Cliquez ici pour plus d'informations