Bénéficiez des services de nos partenaires locaux soigneusement sélectionnés
pour vous accompagner dans votre parcours d'achat immobilier

Appartement 69m² à chartres

— Chartres 28000 —
169 900 €
70 m²
3 pièces
parkingbalcon/terrasseascenseur

Nos partenaires locaux
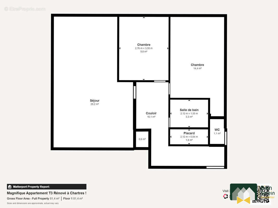
Magnifique Appartement T3 Rénové à Chartres !

Appartement T3 entièrement rénové en 2021 situé à Chartres. Cet appartement est très lumineux et moderne. Avec une surface habitable de 70 m², il offre un espace de vie idéal pour une famille ou un couple souhaitant profiter du calme et de la commodité de la ville.


Découvrez un appartement décomposé comme suit :

- 1 entrée avec des rangements,
- 1 WC indépendant,
- 1 Salle d'eau,
- 2 Chambres,
- 1 Cuisine ouverte aménagée et équipée,
- 1 Séjour spacieux et lumineux,


Côté confort :

- 1 cave,
- Appartement refait en 2021 - Cuisine, mur, sol, fenêtres, salle d'eau, électricité, plomberie, volets roulants,
- Ascenseur,
- Espaces arborés pour les résidents,
- Un box.


L'emplacement :

En termes de commodités, vous trouverez plusieurs commerces, restaurants, écoles et services de santé à proximité. À 5 minutes à pied, vous pourrez profiter d'un restaurant et de plusieurs arrêts de bus. À 10 minutes à pied, vous accéderez à un collège, un parc et plusieurs médecins généralistes. À 15 minutes à pied, vous trouverez une crèche, une école maternelle, une école élémentaire, une école primaire et deux commerces d'alimentation générale.
Ne manquez pas cette opportunité unique de vivre dans un appartement qui allie confort et modernité. Contactez-nous dès aujourd'hui pour organiser une visite et découvrir tout le potentiel de ce magnifique bien.

Honoraires à la charge du vendeur. Dans une copropriété de 115 lots. Aucune procédure n'est en cours. Classe énergie D, Classe climat D Montant estimé des dépenses annuelles d'énergie pour un usage standard : entre 860.00 € et 1210.00 € sur les années 2021, 2022 et 2023 (abonnements compris). Les informations sur les risques auxquels ce bien est exposé sont disponibles sur le site Géorisques : georisques.gouv.fr.

Votre conseiller Bien Serein immobilier : Margot NYS
Agent commercial (Entreprise individuelle)
RSAC 883679029
Voir plus

Référence: 735-BIENSEREIN28
Bien en copropriété. Nombre de lots : 115.
Honoraires à la charge du vendeur.
Barème des honoraires
DPE
A
B
C
D
E
F
G
GES
A
B
C
D
E
F
G

Prêt immobilier

Vous souhaitez connaître votre capacité d’emprunt et trouver le meilleur crédit immobilier ?
Réaliser une simulation gratuite

Appartement à CHARTRES
Appartement à CHARTRES
Appartement à CHARTRES
Appartement à CHARTRES
Appartement à CHARTRES
Appartement à CHARTRES
Appartement à CHARTRES
Ce site est protégé par reCAPTCHA la Politique de confidentialité et les Conditions d’utilisation de Google s’appliquent.
Obtenir un prêt immobilier au meilleur taux ?

En poursuivant votre navigation sans modifier vos paramètres, vous acceptez l'utilisation de cookies susceptibles de réaliser des statistiques de visite. Cliquez ici pour plus d'informations