Bénéficiez des services de nos partenaires locaux soigneusement sélectionnés
pour vous accompagner dans votre parcours d'achat immobilier

Exclusivite - deauville - loft

— Deauville 14800 —
950 000 €
92 m²
5 pièces

Nos partenaires locaux
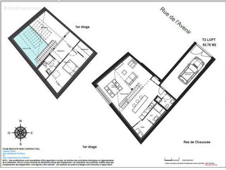
Nous avons le plaisir de vous proposer un superbe loft à seulement 2 mn à pied de la place Morny, de ses commerces et de la gare. Vous serez séduit par son style industriel et ses briques rouges, un espace spacieux de plus de 50 m² pour le séjour et la cuisine. A l' étage (mezzanine) , deux chambres et une salle d'eau . Place de parking intérieur Appartement en cours de réhabilitation, mélangeant confort, élégance , subtilité et modernisme. Pour plus de renseignement et éventuellement une visite, n'hésitez pas à contacter FLO au [Coordonnées masquées] ou Nicolas [Coordonnées masquées]. Conformément à la réglementation Tracfin une pièce d'identité sera demandée pour toute visite. Les informations sur les risques auxquels ce bien est exposé sont disponibles sur le site Géorisques : www.georisques.gouv.fr Flo Guesnon (EI) - Agente commerciale - Numéro Rsac 883 456 394 - Caen Nicolas Drouet (EI) - Agent commercial - Numéro Rsac 899 623 904 - Lisieux (2.44 % honoraires TTC à la charge de l'acquéreur.) Nicolas DROUET (EI) Agent Commercial - Numéro RSAC : 899 623 904 - LISIEUX.
Voir plus

Référence: 1121
Honoraires d'agence de 2.44% à la charge de l'acquéreur
Barème des honoraires
DPE
A
B
C
D
E
F
G
GES
A
B
C
D
E
F
G

Prêt immobilier

Vous souhaitez connaître votre capacité d’emprunt et trouver le meilleur crédit immobilier ?
Réaliser une simulation gratuite

Appartement à DEAUVILLE
Appartement à DEAUVILLE
Appartement à DEAUVILLE
Ce site est protégé par reCAPTCHA la Politique de confidentialité et les Conditions d’utilisation de Google s’appliquent.
Obtenir un prêt immobilier au meilleur taux ?

En poursuivant votre navigation sans modifier vos paramètres, vous acceptez l'utilisation de cookies susceptibles de réaliser des statistiques de visite. Cliquez ici pour plus d'informations