T3bis - 4 pièce(s) 110 m2 carrez

— Lyon-1e 69001 —
460 000 €
110 m²
4 pièces

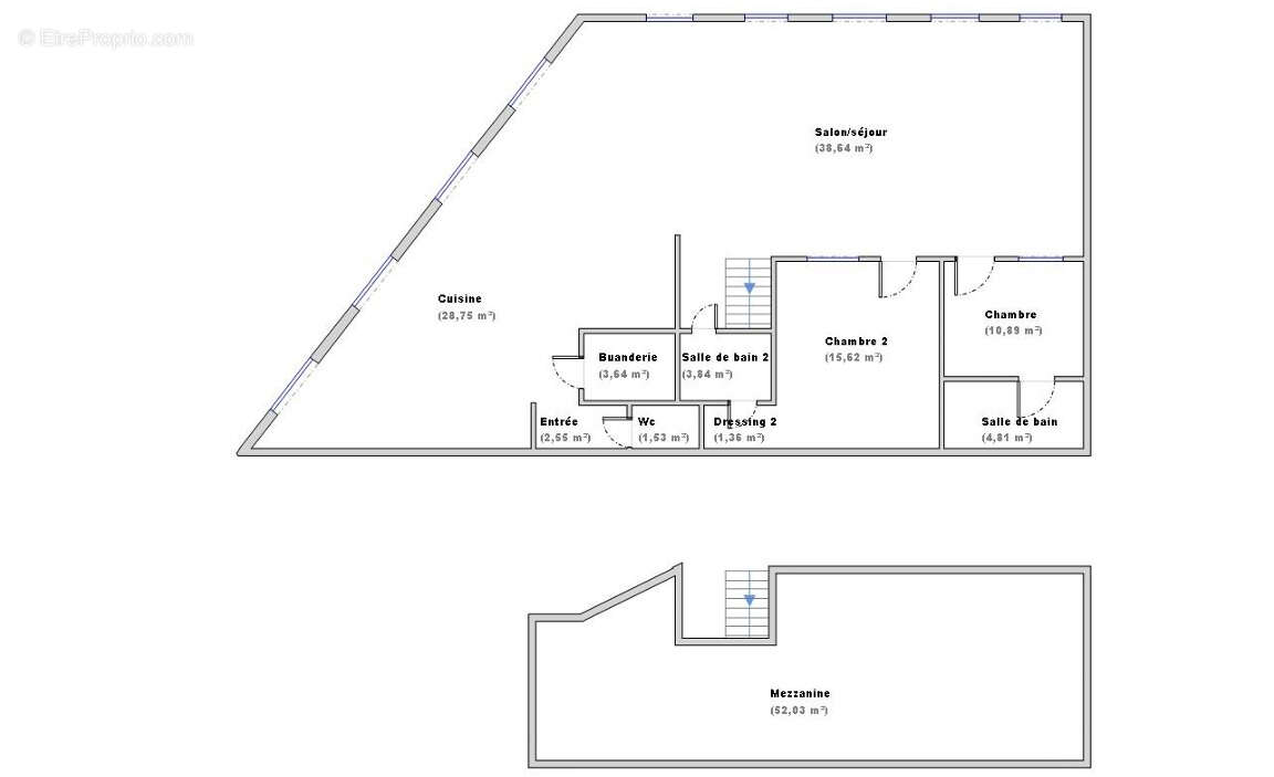
Situé à proximité immédiate de la très prisée place Rouville, au coeur d'une copropriété de type canut, ce vaste appartement de caractère développe 110m² carrez. Au 4ème étage (sans ascenseur), il se compose d'une entrée menant à une grande cuisine indépendante de 30 m², baignée de lumière grâce à ses 4 fenêtres. La pièce de vie, spacieuse et lumineuse, offre 40 m² avec 5 fenêtres orientées ouest. Deux chambres en second jour, deux salles de bains, un WC séparé, ainsi qu'une mezzanine de 50 m² (surface non Carrez, inférieure à 1,80 m) complètent l'agencement. Anciennement composé de deux lots distincts, il peut également représenter une opportunité intéressante pour des investisseurs souhaitant envisager une division en plusieurs appartements. Un bail de location de garage peut également être proposé, au tarif de 120 euros par mois. Cet appartement séduira des acquéreurs sensibles au charme et à la luminosité, tout en attachant une importance particulière à la localisation. 2 caves complètent le bien.. Copropriété de 35 lots - dont 35 lots habitation. (Pas de procédure en cours). Charges annuelles : 1037.72 euros.
Voir plus

Référence: CR2509
Bien en copropriété. Nombre de lots : 35. Charges de copropriété : 1037 €.
Honoraires à la charge du vendeur.
Barème des honoraires
DPE
A
B
C
D
E
F
G
GES
A
B
C
D
E
F
G

Prêt immobilier

Vous souhaitez connaître votre capacité d’emprunt et trouver le meilleur crédit immobilier ?
Réaliser une simulation gratuite

Appartement à LYON-1E
Appartement à LYON-1E
Appartement à LYON-1E
Appartement à LYON-1E
Appartement à LYON-1E
Appartement à LYON-1E
Appartement à LYON-1E
Appartement à LYON-1E
Appartement à LYON-1E
Appartement à LYON-1E
Appartement à LYON-1E
Appartement à LYON-1E
Ce site est protégé par reCAPTCHA la Politique de confidentialité et les Conditions d’utilisation de Google s’appliquent.
Obtenir un prêt immobilier au meilleur taux ?

En poursuivant votre navigation sans modifier vos paramètres, vous acceptez l'utilisation de cookies susceptibles de réaliser des statistiques de visite. Cliquez ici pour plus d'informations