Terrain 650m² à cugnaux

— Cugnaux 31270 —
153 000 €
650 m²

Sur la commune de Cugnaux, à proximité de la base de loisirs de la Ramée et du centre-ville, venez découvrir ce beau terrain plat au coeur d'un parc arboré.
D'une superficie de 650 m², le terrain est non viabilisé.
Raccordements tous réseaux à proximité.
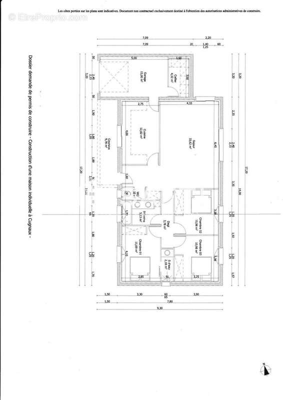
Un certificat d'urbanisme a été déposé. Un permis de construire a été déposé et accordé pour une maison individuelle T4 de 98 m².
Maison de plain-pied uniquement.
Environnement bien végétalisé.

À 1,2 km de La Ramée,
A moins de 5 minutes du centre-ville de Cugnaux,
A 15 minutes du métro Basso Cambo,
A moins de 20 minutes de l'aéroport Toulouse-Blagnac.

À découvrir sans tarder !

Les informations sur les risques auxquels ce bien est exposé sont disponibles sur le site Géorisques : www.georisques.gouv.fr
Prix de vente : 153 000 ¤
Honoraires charge vendeur

Contactez votre conseiller SAFTI : Alexandra MONTERO, Tél. : [Coordonnées masquées], E-mail : [Coordonnées masquées] - EI - Agent commercial immatriculé au RSAC de Toulouse sous le numéro 883 535 619.
Informations LOI ALUR :
Honoraires charge vendeur. (gedeon_26118_31949567)
Voir plus

Référence: 1537204
Honoraires à la charge du vendeur.
Barème des honoraires

Prêt immobilier

Vous souhaitez connaître votre capacité d’emprunt et trouver le meilleur crédit immobilier ?
Réaliser une simulation gratuite

Photo 1 - Terrain à CUGNAUX
Photo 1
Photo 2 - Terrain à CUGNAUX
Photo 2
Photo 3 - Terrain à CUGNAUX
Photo 3
Photo 4 - Terrain à CUGNAUX
Photo 4
Photo 5 - Terrain à CUGNAUX
Photo 5
Ce site est protégé par reCAPTCHA la Politique de confidentialité et les Conditions d’utilisation de Google s’appliquent.
Obtenir un prêt immobilier au meilleur taux ?

En poursuivant votre navigation sans modifier vos paramètres, vous acceptez l'utilisation de cookies susceptibles de réaliser des statistiques de visite. Cliquez ici pour plus d'informations