Bénéficiez des services de nos partenaires locaux soigneusement sélectionnés
pour vous accompagner dans votre parcours d'achat immobilier

Appartement 1 pièce 34m² avec stationnement à cognin !

— Cognin 73160 —
180 000 €
34 m²
1 pièce
parkingbalcon/terrasseascenseur

Nos partenaires locaux
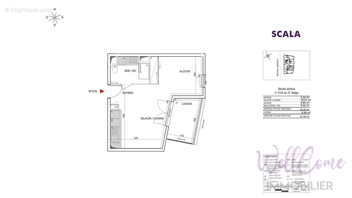
À Cognin, à 7 min du centre-ville de Chambéry, dans un secteur résidentiel aux vues dégagées sur les reliefs montagneux et proche des commodités - Découvrez la nouvelle résidence 'SCALA' à l'architecture élégante qui sintègre harmonieusement dans un environnement verdoyant avec cur dîlot paysager et vues sur les montagnes. Livraison prévue pour le 3ème trimestre 2027 et actable dès maintenant ! La résidence se compose de 5 bâtiments abritant des appartements du studio au 4 pièces sur 6 étages maximum, tous avec un extérieur (balcon, loggia, terrasse ou jardin privatif) conçus pour offrir de généreux volumes et une belle luminosité naturelle. Parmi les lots disponibles, découvrez le lot n°C34 : un appartement 1 pièce de 34,40 m² au 3ème étage comprenant une entrée, un séjour-cuisine, alcôve, salle deau avec WC. Vendu avec un parking au sous-sol, la résidence met également à disposition un local à vélos. Idéal pour habiter ou investir dans cette ville dynamique et attractive des Alpes ! Contactez-nous dès maintenant pour en savoir plus et réserver votre futur appartement parmi les premiers lots disponibles ! Frais de notaire REDUITS Programme certifié NF Habitat et conforme RT 2012. Éligible Pinel (zone B1), PTZ, LLI, LMNP et LMP Bien soumis au statut juridique de la Copropriété. Nb de lots : 140 (hors annexes) Pas de procédure en cours. Prix TTC et Honoraires à charge vendeur TTC Surface CARREZ : 34.4 m²
Voir plus

Référence: 73028687
Barème des honoraires

Prêt immobilier

Vous souhaitez connaître votre capacité d’emprunt et trouver le meilleur crédit immobilier ?
Réaliser une simulation gratuite

Appartement à COGNIN
Appartement à COGNIN
Appartement à COGNIN
Appartement à COGNIN
Appartement à COGNIN
Ce site est protégé par reCAPTCHA la Politique de confidentialité et les Conditions d’utilisation de Google s’appliquent.
Obtenir un prêt immobilier au meilleur taux ?

En poursuivant votre navigation sans modifier vos paramètres, vous acceptez l'utilisation de cookies susceptibles de réaliser des statistiques de visite. Cliquez ici pour plus d'informations