Bénéficiez des services de nos partenaires locaux soigneusement sélectionnés
pour vous accompagner dans votre parcours d'achat immobilier

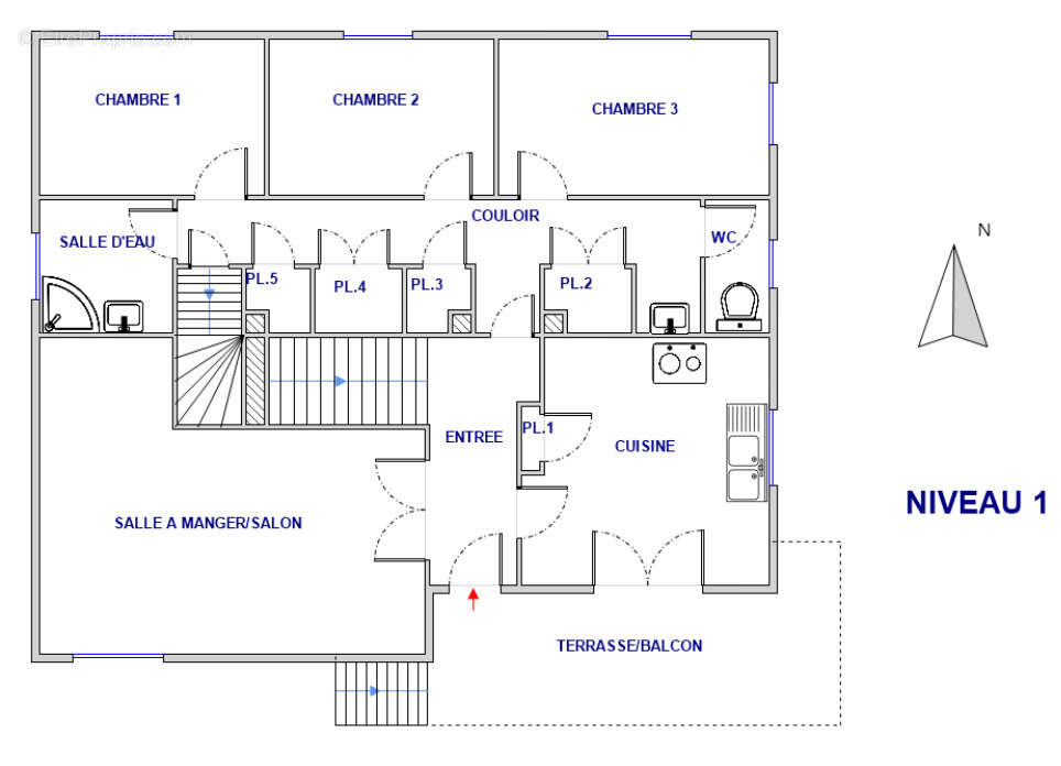
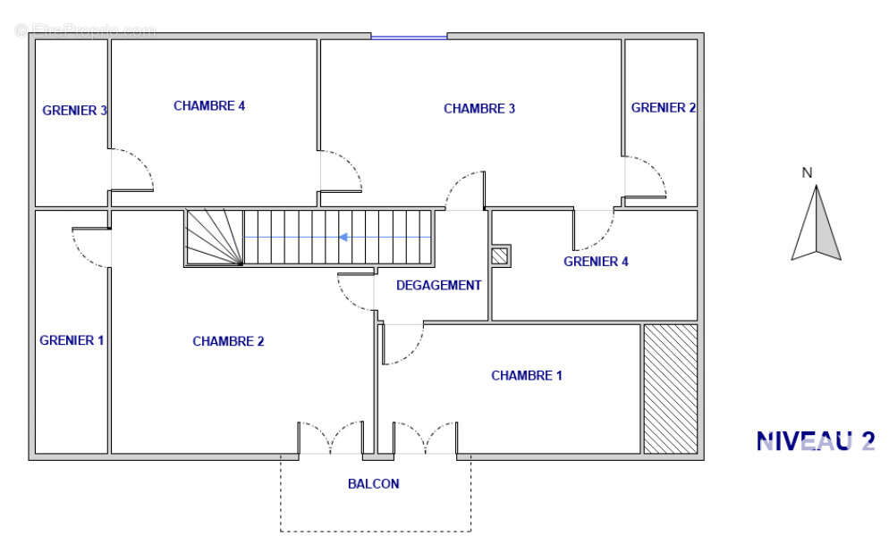
Maison 331m² à villargondran

— Villargondran 73300 —
255 000 €
331 m² / 804 m²
9 pièces
parkingjardin

Nos partenaires locaux
Iad France - Ariane Campanelli-Marguet vous propose : Idéal INVESTISSEUR ! Maison spacieuse à fort potentiel située en Maurienne à Villargondran Saint Jean de Maurienne, avec un large potentiel d'aménagement !

+ Possibilité de plusieurs lots
+ Secteur recherché avec forte demande locative

En position dominante, cette maison T9 d'une superficie 331 m² avec son sous-sol complet et est positionnée sur une parcelle de terrain clôturée de 804 m².

La maison est accessible par 2 entrés distinctes, c'est pour cela que cette maison peut convenir pour un investisseur !

Construit en 1969, ce bien rare à la vente et très bien entretenu, offre de nombreuses possibilités d'aménagement et de personnalisation.

Il vous propose 2 garages de 42 m² et 17 m² avec des entrées séparées, une cave de 25 m² et de nombreuses places de stationnement pour accueillir vos véhicules et vos visiteurs.

En matière de confort, cette propriété est reliée au tout-à-l'égout et est équipée d'un système de chauffage individuel au fioul avec radiateurs, d'un chauffeau thermodynamique et de menuiseries en PVC avec FENETRES TRIPLE VITRAGE. Le toit est d'origine en ardoise naturelle.

Des travaux de rénovation énergétiques et de modernisation sont à prévoir pour remettre cette maison au goût du jour. Cela vous offre l'opportunité de personnaliser cette maison selon vos besoins et vos envies.

Je vous propose de me contacter de préférence par téléphone, je vous accompagnerai dans votre projet avec Professionnalisme Bienveillance.

Ariane


Honoraires d'agence à la charge du vendeur.
Information d'affichage énergétique sur ce bien : classe ENERGIE G indice 372 et classe CLIMAT G indice 108. Les informations sur les risques auxquels ce bien est exposé, y compris l'obligation légale de débroussaillement, sont disponibles sur le site Géorisques : http://www.georisques.gouv.fr.
La présente annonce immobilière a été rédigée sous la responsabilité éditoriale de Mme Ariane Campanelli-Marguet mandataire indépendant en immobilier (sans détention de fonds), agent commercial de la SAS I@D France immatriculé au RSAC de CHAMBERY sous le numéro 848656732, titulaire de la carte de démarchage immobilier pour le compte de la société I@D France SAS.
Informations LOI ALUR :
Honoraires charge vendeur. (gedeon_6727_31950904)
Voir plus

Référence: 1855545
Honoraires à la charge du vendeur.
DPE
A
B
C
D
E
F
G
GES
A
B
C
D
E
F
G

Prêt immobilier

Vous souhaitez connaître votre capacité d’emprunt et trouver le meilleur crédit immobilier ?
Réaliser une simulation gratuite

Photo 1 - Maison à VILLARGONDRAN
Photo 1
Photo 2 - Maison à VILLARGONDRAN
Photo 2
Photo 3 - Maison à VILLARGONDRAN
Photo 3
Photo 4 - Maison à VILLARGONDRAN
Photo 4
Photo 5 - Maison à VILLARGONDRAN
Photo 5
Photo 6 - Maison à VILLARGONDRAN
Photo 6
Photo 7 - Maison à VILLARGONDRAN
Photo 7
Photo 8 - Maison à VILLARGONDRAN
Photo 8
Photo 9 - Maison à VILLARGONDRAN
Photo 9
Ce site est protégé par reCAPTCHA la Politique de confidentialité et les Conditions d’utilisation de Google s’appliquent.
Obtenir un prêt immobilier au meilleur taux ?

En poursuivant votre navigation sans modifier vos paramètres, vous acceptez l'utilisation de cookies susceptibles de réaliser des statistiques de visite. Cliquez ici pour plus d'informations