Bénéficiez des services de nos partenaires locaux soigneusement sélectionnés
pour vous accompagner dans votre parcours d'achat immobilier

Appartement 40m² à caen

— Caen 14000 —
139 990 €
40 m²
2 pièces
balcon/terrasseascenseur

Nos partenaires locaux
?Découvrir la vidéo ?? de ce bien ? sur votre réseau préféré :

Instagram : https://urls.fr/fZIOak

Facebook : https://urls.fr/L9Mh-I

Tiktok : https://urls.fr/vHB7LY

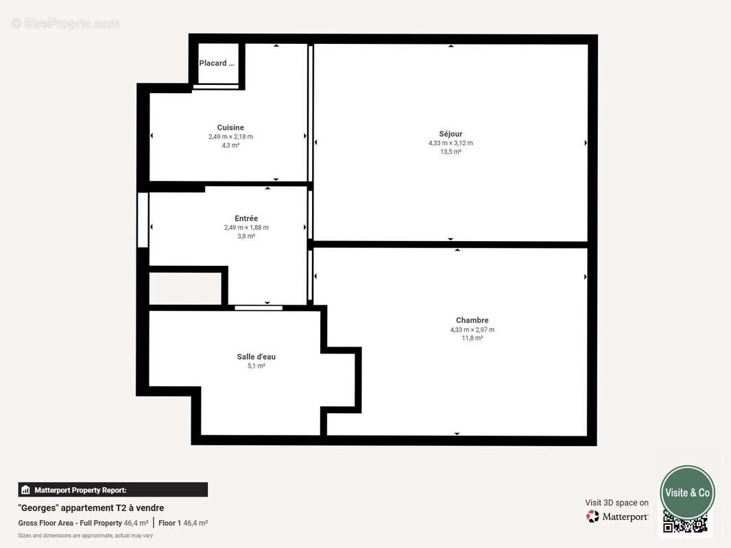
L'agence Visite & Co vous présente 'Georges ' : Un appartement T2 de 2016 au 3ème étage sur 3 avec ascenseur, vendu avec une place de parking en sous-sol.

Pourquoi 'Georges ' ? Chez Visite & Co pas de références impersonnelles pour nos biens, chacun a une histoire et donc son 'petit nom'.

Cerise sur le gâteau : Visite & Co met à votre disposition un service de recherche personnalisé et gratuit : il suffit de remplir ce formulaire en 2 minutes pour qu'un agent attitré s'occupe de votre projet : https://bit.ly/3yv1VkO

L'appartement 'Georges' bénéficie d'un emplacement privilégié, à seulement 5 minutes du centre-ville de Caen (en voiture), au 57 avenue Capitaine Georges Guynemer. Vous profiterez d'un environnement pratique, à 2 minutes à pied des commerces, des transports en commun et du marché du samedi matin (marché du Boulevard Leroy).

En entrant dans l'appartement 'Georges', vous découvrirez un séjour lumineux ouvert sur un coin cuisine, une chambre, une salle d'eau, un WC séparé et un balcon de 4,70 m², parfait pour profiter des beaux jours.

Pour votre confort, une place de parking en sous-sol est incluse, ainsi qu'un local à vélos au sein de la copropriété.

Autre atout : le diagnostic de performance énergétique (DPE) est classé C, ce qui représente une très bonne performance énergétique.

L'appartement était loué 520€ CC mais pourrait se louer un peu plus (ancien dispositif PINEL).

Copropriété :
Charges courante pour l'année selon dernier décompte de charges : 657.92€ dont 431.12€ de récupérables sur le locataire pour nos amis investisseurs.
Charges selon le budget prévisionnel : 660.80€/an soit 55.06€ / mois.
Nombre de lots : 144 dont 64 lots principaux.
Pas de procédures en cours sur déclaration du vendeur.

Les informations sur les risques susceptibles ce bien est exposé sont disponibles sur le site Géorisques : https://georisques.gouv.fr/
Mais conformément à ses habitudes, Visite & Co va plus loin : fichier PDF sur les risques détaillés et localisés disponibles en document téléchargeable sur notre site internet.

Mentions obligatoires :
Les honoraires sont à la charge du vendeur
DPE : effectué. Conso énergétique C à 174 / GES : A à 5
Consommation annoncée entre 610€ et 870€ par an.
Chauffage individuel électrique.
Retrouvez en bas de l'annonce les documents téléchargeables de l'appartement ainsi que les diagnostics.
Ce bien est soumis au statut de la copropriété.
Taxes foncières : 1020€ dont 166€ de TEOM sur l'avis de 2025.
Pas de diagnostic électrique, appartement de moins de 15 ans.
Loi Carrez en document téléchargeables.

Mandat présenté par Anthony Cointo
Agent commercial RSAC CAEN 891 589 236
Attestation de collaborateur n° ADC 14[Coordonnées masquées]00 068 délivrée le 17/01/2025 par la CCI de Caen, valable jusqu'au 16/01/2028
RCP MMA contrat 127 100 479
Cette annonce est rédigée par et sous la responsabilité de l'agent commercial Anthony Cointo

Pourquoi choisir Visite & Co ?

Nous avons un réseau de 5 agences sur le Calvados. Nous offrons des services innovants comme la pré estimation de votre bien en ligne ( cliquez ici : https://bit.ly/3SIajsv ).
Nous sommes spécialisés dans l'ac...
Voir plus

Référence: 'GEORGES'-VISITEANDCO
Bien en copropriété. Nombre de lots : 144. Charges de copropriété : 661 €.
Honoraires à la charge du vendeur.
Barème des honoraires
DPE
A
B
C
D
E
F
G
GES
A
B
C
D
E
F
G

Prêt immobilier

Vous souhaitez connaître votre capacité d’emprunt et trouver le meilleur crédit immobilier ?
Réaliser une simulation gratuite

Appartement à CAEN
Appartement à CAEN
Appartement à CAEN
Appartement à CAEN
Appartement à CAEN
Appartement à CAEN
Appartement à CAEN
Appartement à CAEN
Appartement à CAEN
Ce site est protégé par reCAPTCHA la Politique de confidentialité et les Conditions d’utilisation de Google s’appliquent.
Obtenir un prêt immobilier au meilleur taux ?

En poursuivant votre navigation sans modifier vos paramètres, vous acceptez l'utilisation de cookies susceptibles de réaliser des statistiques de visite. Cliquez ici pour plus d'informations