Vaujany - appartement de standing personnalisable de type t3

— Vaujany 38114 —
505 000 €
70 m²
4 pièces

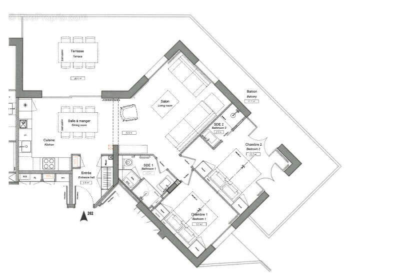
VAUJANY - Le chalet SASKIA situé dans la belle station village de Vaujany, se métamorphose pour donner naissance à 5 appartements exceptionnels dans un cadre intimiste et calme, dont l’appartement 202 d’une surface de 70 m2 de type T3  qui sera vous séduire par sa luminosité, sa vue, sa terrasse et son rez de jardin face à la cascade et la mythique piste noire de la Fare. L’appartement dispose également d’une place de stationnement extérieur et un box. Livré en plateau brut, à votre guise de créer sur mesure votre intérieur. Offrez-vous un espace à aménager selon vos envies, en toute sérénité !
Vous pouvez être accompagné à chaque étape de votre projet. Des plans personnalisables aux devis estimatifs, tout est pensé pour vous faciliter la vie. Mode de chauffage, choix des matériaux, finitions… Chaque détail est modulable selon vos goûts et votre budget. Nous construisons ensemble un intérieur qui vous ressemble. Il ne reste plus que deux logements disponibles.  REF: 523 - 202
Voir plus

Honoraires à la charge du vendeur.

Prêt immobilier

Vous souhaitez connaître votre capacité d’emprunt et trouver le meilleur crédit immobilier ?
Réaliser une simulation gratuite

Appartement à VAUJANY
Appartement à VAUJANY
Appartement à VAUJANY
Appartement à VAUJANY
Appartement à VAUJANY
Ce site est protégé par reCAPTCHA la Politique de confidentialité et les Conditions d’utilisation de Google s’appliquent.
Obtenir un prêt immobilier au meilleur taux ?

En poursuivant votre navigation sans modifier vos paramètres, vous acceptez l'utilisation de cookies susceptibles de réaliser des statistiques de visite. Cliquez ici pour plus d'informations