Bénéficiez des services de nos partenaires locaux soigneusement sélectionnés
pour vous accompagner dans votre parcours d'achat immobilier

Appartement à vendre 2/3 pièces (75015)- métro vaugirard / convention - cave - parking

— Paris-15e 75015 —
480 000 €
56 m²
2 pièces
parkingbalcon/terrasseascenseurpiscine

Nos partenaires locaux
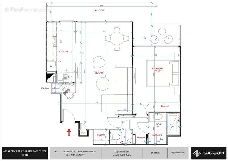
Idéalement situé dans une résidence recherchée du 15ᵉ arrondissement, à proximité des métros Vaugirard et Convention , cet appartement offre un cadre de vie pratique et agréable.

Situé au 2ème étage d'une surface totale de 51,55 M22 Loi Carrez, il se compose d'une belle pièce de vie lumineuse , d'une cuisine indépendante donnant sur une terrasse-balcon de plus de 13 m² , d'une grande chambre parentale , d'une salle de bain , de WC séparés et de nombreux rangements .

L'appartement nécessite un rafraîchissement personnalisé.
Pour vous aider à vous projeter :
Plans disponibles (plan initial + plan proposé)
Photos non contractuelles inspirantes
Possibilité de devis pour estimer vos travaux

Les atouts supplémentaires :

Cave incluse

Parking en sous-sol

Vue dégagée sur un parc public , parfait pour vos promenades et moments de détente

Les + de la résidence :
Salle de sport et piscine chauffée (Club 15, avec tarifs préférentiels pour les résidents).

Enfin, vous profitez de la proximité immédiate des commerces, restaurants et services, pour vivre pleinement la qualité de vie du 15ᵉ arrondissement de Paris.

Un bien avec emplacement, confort et potentiel, idéal pour un projet de vie ou un investissement !
Nombre de lots de la copropriété: 1200, Montant moyen de la quote-part annuelle de charges (budget prévisionnel) : 2640€ soit 220€ par mois. Les honoraires sont à la charge du vendeur.
Les informations sur les risques auxquels ce bien est exposé sont disponibles sur le site Géorisques : www. georisques. gouv. fr.

Contactez Zohour DEBBARH Entrepreneur Individuel, Agent commercial OptimHome (RSAC N°842 960 981 Greffe de NANTERRE) [Coordonnées masquées] (réf. 591987 )
Voir plus

Référence: 830030990847
Bien en copropriété. Nombre de lots : 1200. Charges de copropriété : 220 €.
Honoraires à la charge du vendeur.
DPE
A
B
C
D
E
F
G
GES
A
B
C
D
E
F
G

Prêt immobilier

Vous souhaitez connaître votre capacité d’emprunt et trouver le meilleur crédit immobilier ?
Réaliser une simulation gratuite

Appartement à PARIS-15E
Appartement à PARIS-15E
Appartement à PARIS-15E
Appartement à PARIS-15E
Appartement à PARIS-15E
Appartement à PARIS-15E
Appartement à PARIS-15E
Appartement à PARIS-15E
Appartement à PARIS-15E
Appartement à PARIS-15E
Appartement à PARIS-15E
Appartement à PARIS-15E
Appartement à PARIS-15E
Appartement à PARIS-15E
Appartement à PARIS-15E
Appartement à PARIS-15E
Appartement à PARIS-15E
Appartement à PARIS-15E
Ce site est protégé par reCAPTCHA la Politique de confidentialité et les Conditions d’utilisation de Google s’appliquent.
Obtenir un prêt immobilier au meilleur taux ?

En poursuivant votre navigation sans modifier vos paramètres, vous acceptez l'utilisation de cookies susceptibles de réaliser des statistiques de visite. Cliquez ici pour plus d'informations