Magnifique terrain constructible de 418 m² sur la commune de saint martin d'uriage

— Saint-Martin-D'uriage 38410 —
185 000 €
418 m²

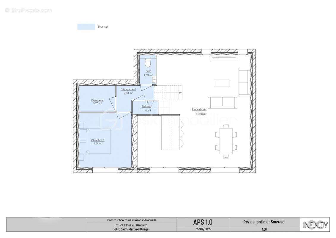
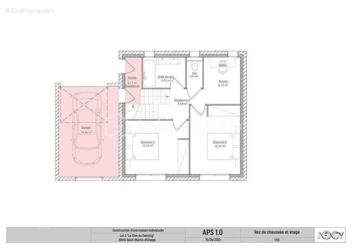
Situé au sein de la commune prisée de Saint-Martin-d'Uriage, ce terrain de 418 m² représente une opportunité rare dans un environnement privilégié. Bénéficiant d'une vue dégagée et d'un cadre naturel apaisant, il offre une emprise au sol de 80 m², permettant la réalisation d'une habitation spacieuse et harmonieusement intégrée à son environnement.

Un projet architectural, élaboré par un professionnel qualifié, accompagne ce terrain, avec des plans conçus pour optimiser l'implantation, l'exposition et la qualité de vie. Le coût total du projet, comprenant le terrain et la construction, est d'environ 450 000 euros. Ce projet demeure entièrement modulable afin de répondre aux besoins et préférences du futur acquéreur.

Ce terrain constitue une occasion exceptionnelle d'investir dans un secteur calme, verdoyant, et très recherché, tout en étant à proximité immédiate des commodités et de l'agglomération grenobloise.

Ce terrain représente une excellente opportunité pour ceux qui souhaitent concrétiser un projet de construction dans un secteur recherché, avec l'avantage d'un projet déjà préparé. N'hésitez pas à nous contacter pour plus d'informations ou pour organiser une visite.

Cette annonce référence 273031 vous est présentée par votre agent commercial BSK Immobilier PATRICIA ACQUAVIVA (EI) immatriculé au RSAC de GRENOBLE (38000) sous le numéro 79178938100039.

Prix du bien : 185 000,00 €
Les honoraires d'agence sont à la charge du vendeur.

Les informations sur les risques auxquels ce bien est exposé sont disponibles sur le site Géorisques : www.georisques.gouv.fr
Voir plus

Référence: 273031_1
Honoraires à la charge du vendeur.

Prêt immobilier

Vous souhaitez connaître votre capacité d’emprunt et trouver le meilleur crédit immobilier ?
Réaliser une simulation gratuite

Terrain à SAINT-MARTIN-D'URIAGE
Terrain à SAINT-MARTIN-D'URIAGE
Terrain à SAINT-MARTIN-D'URIAGE
Terrain à SAINT-MARTIN-D'URIAGE
Terrain à SAINT-MARTIN-D'URIAGE
Terrain à SAINT-MARTIN-D'URIAGE
Terrain à SAINT-MARTIN-D'URIAGE
Ce site est protégé par reCAPTCHA la Politique de confidentialité et les Conditions d’utilisation de Google s’appliquent.
Obtenir un prêt immobilier au meilleur taux ?

En poursuivant votre navigation sans modifier vos paramètres, vous acceptez l'utilisation de cookies susceptibles de réaliser des statistiques de visite. Cliquez ici pour plus d'informations