Appartement triplex en excellent état avec terrasse - 183 m² - suresnes (92150)

— Suresnes 92150 —
1 400 000 €
183 m²
5 pièces
parkingbalcon/terrasse

Partez à la découverte de ce bel appartement de type triplex, de 5 pièces, datant de 1930, d'une surface carrez de 183 m², situé à Suresnes.

Le bien de vos rêves se compose :

Au niveau inférieur :

- D'une chambre de 17 m² avec placard intégré
- D'une seconde chambre de 11 m²
- D'une salle d'eau avec WC

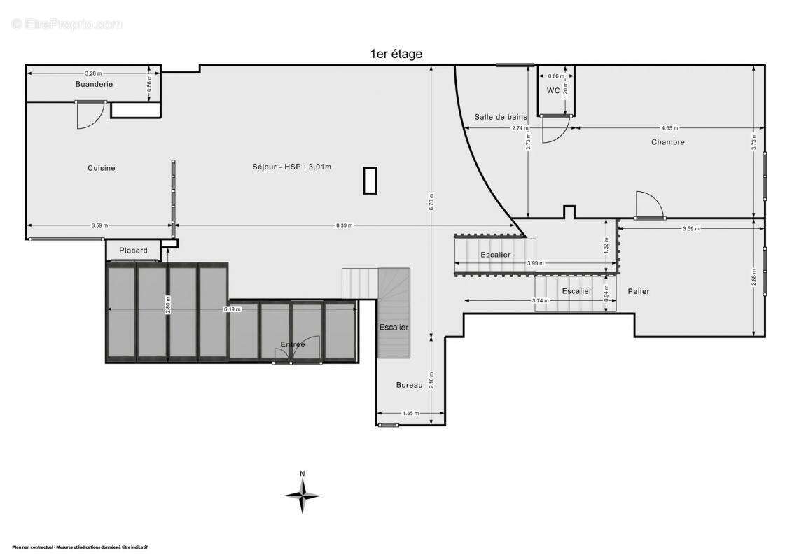
Au rez-de-chaussée :

- D'une entrée lumineuse avec une belle verrière (stores thermiques électriques)
- D'un séjour très spacieux de 53 m² donnant sur une cuisine neuve et équipée (2022)
- D'un espace bureau

Au rez-de-chaussée surélevé :

- D'une suite parentale avec un grand dressing refait à neuf en 2022, une salle de bain et d'un WC séparé

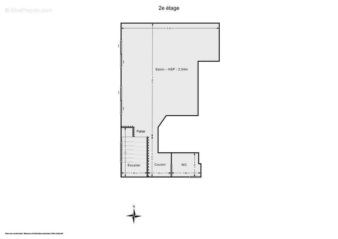
Au niveau supérieur :

- D'un espace salon de 31 m² donnant sur une terrasse privative de 26 m²
- De WC séparé

Une cave et un parking (dans une autre copropriété) viennent également compléter ce bien.

Parce-que la localisation, ça compte aussi !

Ce bien est idéalement situé à Suresnes (à la limite de Puteaux) à 10 minutes à pied de l'île de Puteaux et 10 minutes en voiture du Mont-Valérien.
Il est également très bien desservi avec le tramway T2 ainsi que les lignes L et U accessible en 10 minutes à pied depuis l'appartement.

Vous voulez en savoir plus ?

- Charges : 226€/mois
- Taxe foncière : 2 023 €
- Syndic de copropriété : Aucune procédure en cours
- Type de chauffage : Électrique, individuel (chauffage au sol - gaz uniquement dans la grande pièce)
- DPE : B

Intéressés ? Contactez Zefir pour visiter ce bien.
Si vous vendez votre bien immobilier, demandez une offre gratuite sur le site de Zefir. Nous nous portons acquéreurs de votre bien !
Voir plus

Référence: 8a158929-8936-40d1-b37d-175277
Bien en copropriété. Charges de copropriété : 226 €.
Honoraires à la charge du vendeur.
DPE
A
B
C
D
E
F
G
GES
A
B
C
D
E
F
G

Prêt immobilier

Vous souhaitez connaître votre capacité d’emprunt et trouver le meilleur crédit immobilier ?
Réaliser une simulation gratuite

Appartement à SURESNES
Appartement à SURESNES
Appartement à SURESNES
Appartement à SURESNES
Appartement à SURESNES
Appartement à SURESNES
Appartement à SURESNES
Appartement à SURESNES
Appartement à SURESNES
Appartement à SURESNES
Appartement à SURESNES
Appartement à SURESNES
Appartement à SURESNES
Appartement à SURESNES
Appartement à SURESNES
Appartement à SURESNES
Appartement à SURESNES
Appartement à SURESNES
Appartement à SURESNES
Appartement à SURESNES
Appartement à SURESNES
Appartement à SURESNES
Appartement à SURESNES
Appartement à SURESNES
Appartement à SURESNES
Appartement à SURESNES
Appartement à SURESNES
Ce site est protégé par reCAPTCHA la Politique de confidentialité et les Conditions d’utilisation de Google s’appliquent.
Obtenir un prêt immobilier au meilleur taux ?

En poursuivant votre navigation sans modifier vos paramètres, vous acceptez l'utilisation de cookies susceptibles de réaliser des statistiques de visite. Cliquez ici pour plus d'informations