Bénéficiez des services de nos partenaires locaux soigneusement sélectionnés
pour vous accompagner dans votre parcours d'achat immobilier

Voir tous les partenaires locaux

Duplex/triplex

— Lille 59000 —
286 000 €
87 m²
4 pièces
parkingbalcon/terrasse

Nos partenaires locaux
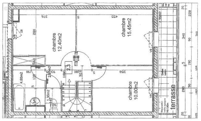
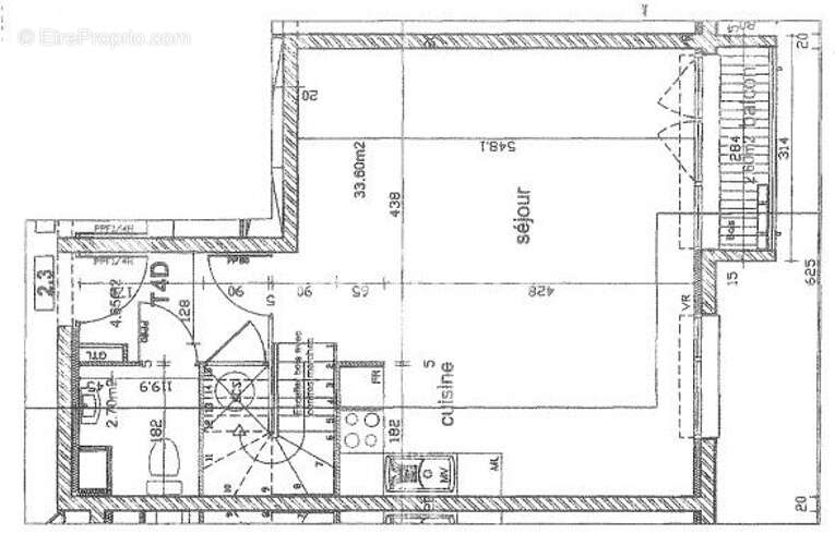
59000 – LILLE – 4 PIÈCES - 3 CHAMBRES - 89,0 m² - DUPLEX AMÉNAGÉ AVEC BALCONS ET PARKING COUVERT -

effiCity, l'agence qui estime votre bien en ligne et Patrick Vigneau, vous propose ce superbe duplex situé à Lille. Avec ses 89,0 m² répartis sur deux niveaux, cet appartement offre un agencement moderne et confortable, idéal pour une vie citadine agréable.

Bénéficiant d'une luminosité naturelle exceptionnelle, cet appartement lumineux et calme est parfait pour profiter d'un cadre de vie serein. Les deux balcons, de 5,0 m², et 12,0 m² vous offrent des espaces extérieurs pour profiter des beaux jours en toute tranquillité.

La cuisine entièrement équipée et le séjour de 24,0 m² offrent des espaces de vie conviviaux et fonctionnels. Les 3 chambres spacieuses sont idéales pour une famille ou pour accueillir des amis en toute intimité. De plus, un parking couvert est à disposition pour faciliter le stationnement.

Cet appartement bénéficie d'un environnement de qualité, proche des commerces, des écoles, du collège, et des axes routiers. Les transports en commun tels que bus et métro sont facilement accessibles, assurant une mobilité optimale.

Construit après 2011, cet appartement en brique présente un état général irréprochable. La toiture terrasse et la façade en crépi sont en excellent état, garantissant une bonne isolation et une esthétique moderne. Situé au 2ème et dernier étage d'un immeuble de 3 étages, l'appartement bénéficie d'un environnement calme et agréable.

Le secteur autour du 31 rue Abélard à Lille, ou se situe le duplex, bénéficie d'une attractivité particulière grâce à sa position en lisière du centre de Lille, tout en étant connecté à des communes dynamiques comme Ronchin et Faches-Thumesnil. C'est un quartier qui offre une ambiance résidentielle calme, de nombreux services et une accessibilité renforcée, ce qui convient parfaitement aux familles, étudiants et jeunes actifs.

Ne manquez pas cette opportunité d'acquérir un duplex moderne et confortable à Lille. Contactez-moi dès maintenant pour organiser une visite et laissez-vous séduire par le charme de ce bien d'exception. Je me ferai un plaisir de vous accompagner dans votre projet d'acquisition.
Les informations sur les risques auxquels ce bien est exposé sont disponibles sur le site Georisque : georisques. gouv. fr
Patrick Vigneau - EI - est Agent Commercial mandataire en immobilier, immatriculé au Registre Spécial des Agents Commerciaux du Tribunal de Commerce de Lille métropole sous le n°843665183.
Siège social du mandant : effiCity, 48 avenue de Villiers - 75017 PARIS - Société par Actions Simplifiée, société au capital de 132 373,05 euros, immatriculée au RCS Paris 497 617 746 et titulaire de la Carte professionnelle CPI 75[Coordonnées masquées]02 025 - CCI Paris IDF - Caisse de Garantie : GALIAN Assurances 89 rue de la Boétie 75008 Paris
Voir plus

Référence: 194719
Bien en copropriété. Nombre de lots : 16. Charges de copropriété : 161 €.
Honoraires à la charge du vendeur.
Barème des honoraires
DPE
A
B
C
D
E
F
G
GES
A
B
C
D
E
F
G

Prêt immobilier

Vous souhaitez connaître votre capacité d’emprunt et trouver le meilleur crédit immobilier ?
Réaliser une simulation gratuite

Appartement à LILLE
Appartement à LILLE
Appartement à LILLE
Appartement à LILLE
Appartement à LILLE
Appartement à LILLE
Appartement à LILLE
Appartement à LILLE
Appartement à LILLE
Appartement à LILLE
Appartement à LILLE
Appartement à LILLE
Appartement à LILLE
Appartement à LILLE
Appartement à LILLE
Appartement à LILLE
Appartement à LILLE
Appartement à LILLE
Appartement à LILLE
Appartement à LILLE
Appartement à LILLE
Appartement à LILLE
Ce site est protégé par reCAPTCHA la Politique de confidentialité et les Conditions d’utilisation de Google s’appliquent.
Obtenir un prêt immobilier au meilleur taux ?

En poursuivant votre navigation sans modifier vos paramètres, vous acceptez l'utilisation de cookies susceptibles de réaliser des statistiques de visite. Cliquez ici pour plus d'informations