Authentique et charmante, jolie ferme et dépendances sur un terrain de 1.16ha - petite vue pyrénées

— Monleon-Magnoac 65670 —
149 000 €
147 m² / 11 661 m²
5 pièces
parkingjardin

Contact : Kossel IMMO, Karl et Sabine, 32420 Simorre, au [Coordonnées masquées] - D-HABITAT (carte pro CPI 30[Coordonnées masquées]31 733)
En pleine campagne en situation tranquille, une Ferme Authentique avec ses dépendances, son terrain de 11661m2 avec son pré, son potager, sa petite mare (Petite Vue au Sud sur les Pyrénées depuis le terrain).
La Ferme au charme d'antan a la taille idéale pour une famille, elle a gardé de nombreux éléments anciens qui lui donnent beaucoup de charme : Planchers, escalier en bois, poutres apparentes, vieille cheminée. Longtemps Maison de Vacances, elle demande quelques rénovations pour qui veut y vivre toute l'année. Il est possible d'agrandir largement la surface habitable en demi palier ou sur les côtés.
Cette propriété est idéale pour une famille à la recherche d'un lieu de vie calme dans les collines buccoliques et vertes du Nord-est des Hautes Pyrénées.
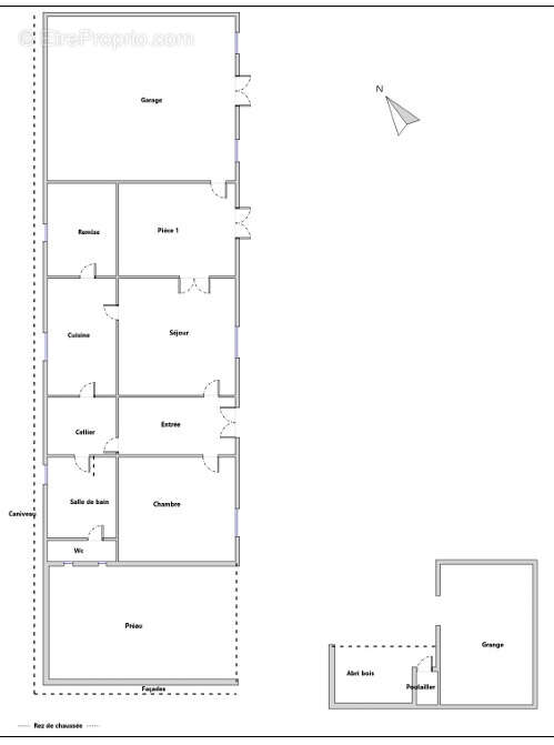
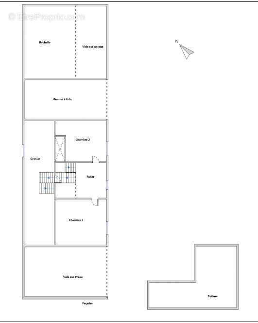
La Maison : La maison a une surface habitable de 147m2 et nous y trouvons, en rez de chaussée, une entrée (env.12m2) desservant une chambre (env.24m2), une grande pièce de vie avec cheminée et insert (env.24m2), une cuisine (env.18m2), une buanderie (6m2), une salle d'eau avec deux lavabos, douche et baignoire (env.9m2), des toilettes séparées, un cellier aménagé de 8m2. A l'étage où nous accédons par un palier (env.10m2), nous trouvons deux grandes chambres (env.19 et 25m2). A noter en 1/2 palier un espace grenier aménageable pour plus de surface habitable (env.35m2).
Les dépendances : Attenantes à la maison, sur un côté nous trouvons une grande grange fermée sur trois côtés (env.50m2 au sol), et sur l'autre côté un atelier + salon d'été (env.35m2) et son grenier et, en suivant, un grand garage d'env.77m2. A l'arrière, un grenier en demi étage (env.35m2) pour stockage ou agrandissement. Non attenante, une dépendance ancienne d'env.35m2 + abri voiture d'env.25m2.
Le terrain : D'une surface totale de 11661m2, le terrain est d'un seul tenant avec une partie en pré idéale pour quelques animaux, un potager, quelques arbres fruitiers. Une mare de récupération d'eau et un puits en fonction.
Technique : Chauffage au Bois (Insert salle de vie) + Chauffages électriques / Evacuations Fosse septique / pas d'amiante, pas de termites / DPE F (il faut isoler impérativement) / Fenêtres simple vitrage / Taxe foncière 617euros par an / Plus de photos et plans sur notre site.
Situation : Boulogne sur Gesse 15min / Castelnau Magnoac 10min / Lannemezan 20min.
https://www.facebook.com/Simorre.immo/ - Annonce rédigée et publiée par un Agent Mandataire -
Voir plus

Référence: 219501
Honoraires d'agence de 4.93% à la charge de l'acquéreur
Barème des honoraires
DPE
A
B
C
D
E
F
G
GES
A
B
C
D
E
F
G

Prêt immobilier

Vous souhaitez connaître votre capacité d’emprunt et trouver le meilleur crédit immobilier ?
Réaliser une simulation gratuite

Maison à MONLEON-MAGNOAC
Maison à MONLEON-MAGNOAC
Maison à MONLEON-MAGNOAC
Maison à MONLEON-MAGNOAC
Maison à MONLEON-MAGNOAC
Maison à MONLEON-MAGNOAC
Maison à MONLEON-MAGNOAC
Maison à MONLEON-MAGNOAC
Maison à MONLEON-MAGNOAC
Maison à MONLEON-MAGNOAC
Maison à MONLEON-MAGNOAC
Maison à MONLEON-MAGNOAC
Maison à MONLEON-MAGNOAC
Maison à MONLEON-MAGNOAC
Maison à MONLEON-MAGNOAC
Maison à MONLEON-MAGNOAC
Maison à MONLEON-MAGNOAC
Maison à MONLEON-MAGNOAC
Maison à MONLEON-MAGNOAC
Maison à MONLEON-MAGNOAC
Maison à MONLEON-MAGNOAC
Maison à MONLEON-MAGNOAC
Maison à MONLEON-MAGNOAC
Maison à MONLEON-MAGNOAC
Maison à MONLEON-MAGNOAC
Maison à MONLEON-MAGNOAC
Maison à MONLEON-MAGNOAC
Maison à MONLEON-MAGNOAC
Maison à MONLEON-MAGNOAC
Maison à MONLEON-MAGNOAC
Maison à MONLEON-MAGNOAC
Maison à MONLEON-MAGNOAC
Maison à MONLEON-MAGNOAC
Maison à MONLEON-MAGNOAC
Maison à MONLEON-MAGNOAC
Maison à MONLEON-MAGNOAC
Maison à MONLEON-MAGNOAC
Maison à MONLEON-MAGNOAC
Maison à MONLEON-MAGNOAC
Maison à MONLEON-MAGNOAC
Maison à MONLEON-MAGNOAC
Maison à MONLEON-MAGNOAC
Maison à MONLEON-MAGNOAC
Maison à MONLEON-MAGNOAC
Maison à MONLEON-MAGNOAC
Maison à MONLEON-MAGNOAC
Maison à MONLEON-MAGNOAC
Maison à MONLEON-MAGNOAC
Maison à MONLEON-MAGNOAC
Ce site est protégé par reCAPTCHA la Politique de confidentialité et les Conditions d’utilisation de Google s’appliquent.
Obtenir un prêt immobilier au meilleur taux ?

En poursuivant votre navigation sans modifier vos paramètres, vous acceptez l'utilisation de cookies susceptibles de réaliser des statistiques de visite. Cliquez ici pour plus d'informations