Appartement t4 (3chambres) entierement renove avec balcon, ascenseur, parking et cave

— Nimes 30900 —
168 500 €
63 m²
4 pièces
parkingbalcon/terrasse

*** EXCLUSIVITE COMPTOIR IMMOBILIER DE FRANCE ***

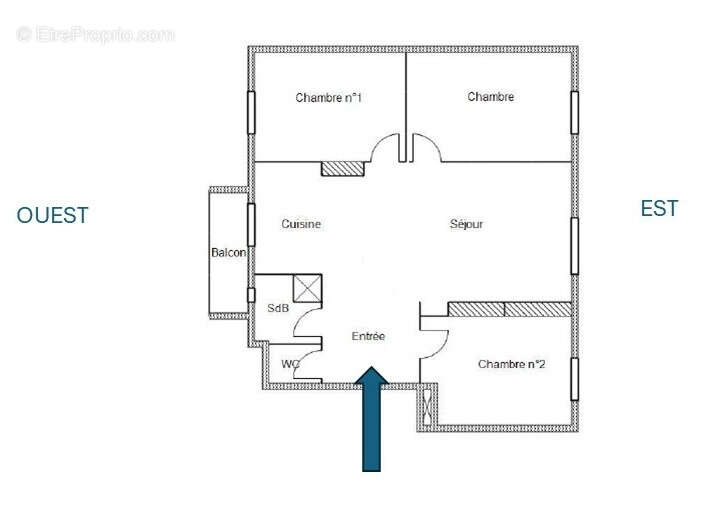
L'ESSENTIEL : Proche Jean Jaurès, Trambus et lycée, appartement T4 (3 chambres) entièrement rénové, en étage avec ascenseur, balcon, cave et parking sécurisé.

ON AIME : la rue calme, la belle luminosité (appartement traversant Est-Ouest), la vue dégagée, sans vis-à-vis, le grand séjour ouvrant sur la cuisine, la rénovation complète de qualité réalisée par un professionnel alliée à la décoration choisie avec beaucoup de goût.
LES PRESTATIONS : Résidence sécurisée, portail automatique, ascenseur, climatisation, double vitrage, volets roulants électriques, cuisine équipée*, balcon, cave.
Posez vos valises ! L'appartment est vendu meublé à neuf. Appréciez le calme et la belle lumière qui pénètre dans l'appartement toute le journée, profitez de sa situation très pratique (commerces, école, collège et lycée à 5 mn à pied, accès autoroute à 5 mn en voiture)



Copropriété : 38 lots principaux. Charges : 1 400 € / an Procédure : néant.

Pour plus d'informations : Philippe HALLES - Tél : 0 606 712 007 - Agent commercial (E.I.) - RSAC Montpellier no 503 691 263.
Cette annonce vous est proposée par Philippe HALLES - EI - NoRSAC: 503 691 263, Enregistré à Greffe du tribunal de commerce de AVIGNON COMPTOIR IMMOBILIER DE FRANCE - Plus d'informations sur cif-immo.com - « Les informations sur les risques auxquels ce bien est exposé sont disponibles sur le site Géorisques : www.georisques.gouv.fr » - Annonce rédigée et publiée par un Agent Mandataire -
Voir plus

Référence: 20630
Bien en copropriété. Nombre de lots : 38. Charges de copropriété : 1316 €.
Barème des honoraires
DPE
A
B
C
D
E
F
G
GES
A
B
C
D
E
F
G

Prêt immobilier

Vous souhaitez connaître votre capacité d’emprunt et trouver le meilleur crédit immobilier ?
Réaliser une simulation gratuite

Appartement à NIMES
Appartement à NIMES
Appartement à NIMES
Appartement à NIMES
Appartement à NIMES
Appartement à NIMES
Appartement à NIMES
Appartement à NIMES
Appartement à NIMES
Appartement à NIMES
Ce site est protégé par reCAPTCHA la Politique de confidentialité et les Conditions d’utilisation de Google s’appliquent.
Obtenir un prêt immobilier au meilleur taux ?

En poursuivant votre navigation sans modifier vos paramètres, vous acceptez l'utilisation de cookies susceptibles de réaliser des statistiques de visite. Cliquez ici pour plus d'informations