Olby (63210) terrain à bâtir.

— Olby 63210 —
83 000 €
1 010 m²
jardin

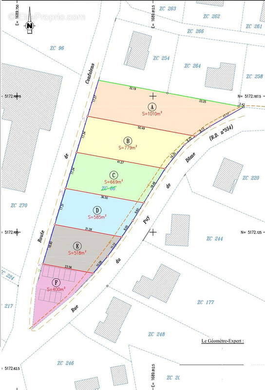
Olby (63210), à 20 minutes de Clermont-Ferrand et 10 minutes d'Orcines dans un endroit calme, terrain à bâtir de 1010 m2 à 83 000 € TTC. Lot A sur le plan. La quiétude de la campagne aux portes de la ville. Olby possède toutes les commodités (école, pharmacie, épicerie, boulangerie, café-restaurant etc...). Les autres lots sont également en vente (lot B : 779 m2 à 64 000 € TTC / lot C : 669 m2 à 55 000 € TTC / lot D : 585 m2 à 48 000 € TTC / lot E : 518 m2 à 43 000 € TTC). Me contacter pour plus d'informations à ce sujet. Viabilités en bordure. Tout-à-l'égoût. Etude de sol en cours. Je peux vous proposer le constructeur qui vous conviendra. Les informations sur les risques auxquels ce bien est exposé sont disponibles sur le site Géorisques : www.georisques.gouv.fr (décret no2022-1289 du 1er octobre 2022). Le prix de vente est de 83 000 Euros TTC (Honoraires d'Agence Inclus), charges acquéreurs. Pour tout renseignement et programmation de visite, contactez dès à présent Eric Chabrier (EI), consultant immobilier REGM, numéro RSAC 414615930.
Cette annonce vous est proposée par CHABRIER Eric - EI - NoRSAC: 416 615 930, Enregistré à Greffe du tribunal de commerce de Clermont-Ferrand - Annonce rédigée et publiée par un Agent Mandataire -
Voir plus

Référence: 6896
Honoraires d'agence de 5.06% à la charge de l'acquéreur
Barème des honoraires

Prêt immobilier

Vous souhaitez connaître votre capacité d’emprunt et trouver le meilleur crédit immobilier ?
Réaliser une simulation gratuite

Terrain à OLBY
Terrain à OLBY
Terrain à OLBY
Terrain à OLBY
Terrain à OLBY
Terrain à OLBY
Ce site est protégé par reCAPTCHA la Politique de confidentialité et les Conditions d’utilisation de Google s’appliquent.
Obtenir un prêt immobilier au meilleur taux ?

En poursuivant votre navigation sans modifier vos paramètres, vous acceptez l'utilisation de cookies susceptibles de réaliser des statistiques de visite. Cliquez ici pour plus d'informations