Bénéficiez des services de nos partenaires locaux soigneusement sélectionnés
pour vous accompagner dans votre parcours d'achat immobilier

Commerce 633m² à gondreville

— Gondreville 54840 —
1 030 000 €
633 m² / 4 500 m²

Nos partenaires locaux
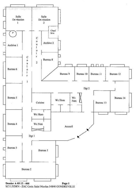
IMMEUBLE BUREAUX
REF DD 4081 À VENDRE – Immeuble tertiaire clé en main à Gondreville
Situé en ZAC dynamique, à proximité des axes stratégiques
Découvrez ce bâtiment professionnel de plain-pied, parfaitement aménagé, offrant 15 bureaux lumineux sur une surface totale d’environ 660 m²
Idéal pour une entreprise, un centre de formation ou une activité médicale/paramédicale.
Atouts majeurs :
Grande salle de réunion pour vos séminaires ou formations
Cuisine équipée sanitaires modernes
Terrain de 4 500 m² offrant une réserve foncière (rare pour extension ou aménagement paysager)
Climatisation intégrale pour un confort optimal
Site entièrement clos et sécurisé
25 places de parking privatives
Un bien fonctionnel, immédiatement opérationnel, dans un environnement professionnel en pleine croissance.
Opportunité à saisir : contactez-nous pour organiser une visite ou recevoir le dossier complet.
Honoraires d’agence : à la charge du vendeur
Appeler David DACHOWSKI au [Coordonnées masquées]
Les informations sur les risques auxquels ce bien est exposé sont disponibles sur le site Géorisques : www.georisques.gouv.fr.
Consultez nos Honoraires : http://www.olympe-immobilier.com/honoraires
Statut du professionnel : Agent commercial indépendant
Immatriculé au RSAC de Nancy sous le n° 422 916 387 000 59
Mandataire rattaché à l’agence : OLYMPE EST IMMOBILIER titulaire de la carte professionnelle
Adresse de l’agence : 42 RUE Antoine Becquerel 54230 Neuves -Maisons
Carte professionnelle n° 54[Coordonnées masquées]09 363 délivrée par la CCI de Meurthe et Moselle
Garantie financière : GALIAN 89 r La Boétie 75008 Paris
Prix : 1 030 000 *
*Dont Honoraires 5.1 % TTC à la charge de l'acquéreur calculés sur la base du prix net vendeur
Prix hors honoraires : 980 000

Montant estimé des dépenses annuelles d'énergie pour un usage standard : non communiqué.
Voir plus

Référence: 4081
Honoraires à la charge de l'acquéreur.

Prêt immobilier

Vous souhaitez connaître votre capacité d’emprunt et trouver le meilleur crédit immobilier ?
Réaliser une simulation gratuite

Commerce à GONDREVILLE
Commerce à GONDREVILLE
Commerce à GONDREVILLE
Commerce à GONDREVILLE
Commerce à GONDREVILLE
Commerce à GONDREVILLE
Commerce à GONDREVILLE
Commerce à GONDREVILLE
Ce site est protégé par reCAPTCHA la Politique de confidentialité et les Conditions d’utilisation de Google s’appliquent.
Obtenir un prêt immobilier au meilleur taux ?

En poursuivant votre navigation sans modifier vos paramètres, vous acceptez l'utilisation de cookies susceptibles de réaliser des statistiques de visite. Cliquez ici pour plus d'informations