Maison de village à chissey-en-morvan

— Chissey-En-Morvan 71540 —
85 000 €
124 m² / 1 480 m²
4 pièces
jardin

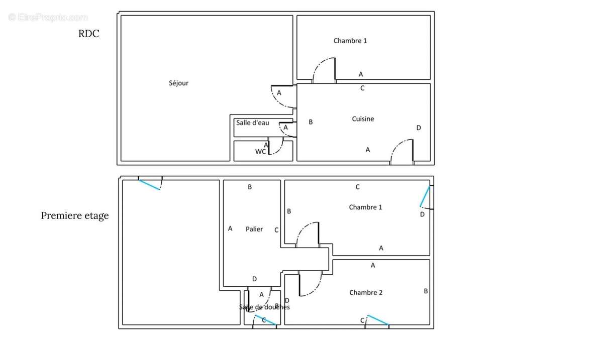
Découvrez cette charmante maison de village située dans la paisible commune de Chissey-en-Morvan. Avec une superficie de 124 m², cette propriété offre un espace de vie confortable et accueillant. Parfaitement conçue pour une famille, elle comprend trois chambres spacieuses qui bénéficient toutes d'une belle luminosité naturelle.

La maison se compose d'un salon convivial qui invite à la détente, une chambre en rez-de-chaussée, une cuisine spacieuse, coin WC, et au premier étage deux chambres et une salle d'eau/WC.

Devant la maison il y a une cour et le terrain (non attenant) est en face de la maison (séparé par un petit chemin qui dessert la maison du voisin.)
Sur le terrain des dépendances en ruines, à rénover (toiture)

Les points positif :
DPE D
Électricité sans anomalies

Travaux à envisager
Réparation de toiture dans l'immédiat
Assainissement individuel qui n'est pas dans les normes actuelles.

Visites et questions : Katy JONES [Coordonnées masquées]
Agent Commercial au RCS n° 808951214 de DIJON (21000)
Voir plus

Référence: 4742
Barème des honoraires
DPE
A
B
C
D
E
F
G
GES
A
B
C
D
E
F
G

Prêt immobilier

Vous souhaitez connaître votre capacité d’emprunt et trouver le meilleur crédit immobilier ?
Réaliser une simulation gratuite

Maison à CHISSEY-EN-MORVAN
Maison à CHISSEY-EN-MORVAN
Maison à CHISSEY-EN-MORVAN
Maison à CHISSEY-EN-MORVAN
Maison à CHISSEY-EN-MORVAN
Maison à CHISSEY-EN-MORVAN
Maison à CHISSEY-EN-MORVAN
Maison à CHISSEY-EN-MORVAN
Maison à CHISSEY-EN-MORVAN
Maison à CHISSEY-EN-MORVAN
Maison à CHISSEY-EN-MORVAN
Maison à CHISSEY-EN-MORVAN
Maison à CHISSEY-EN-MORVAN
Maison à CHISSEY-EN-MORVAN
Maison à CHISSEY-EN-MORVAN
Ce site est protégé par reCAPTCHA la Politique de confidentialité et les Conditions d’utilisation de Google s’appliquent.
Obtenir un prêt immobilier au meilleur taux ?

En poursuivant votre navigation sans modifier vos paramètres, vous acceptez l'utilisation de cookies susceptibles de réaliser des statistiques de visite. Cliquez ici pour plus d'informations