Bénéficiez des services de nos partenaires locaux soigneusement sélectionnés
pour vous accompagner dans votre parcours d'achat immobilier

Vente maison 7 pièces de 152m² - 38390 bouvesse-quirieu

— Bouvesse-Quirieu 38390 —
380 000 €
152 m² / 7 100 m²
7 pièces
parkingjardinpiscine

Nos partenaires locaux
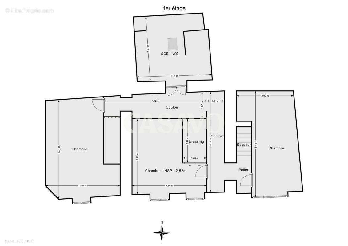
Casavo vous propose à la vente cette maison de 7 pièces de 152.0 m² sur un terrain de 7100 m² localisée Impasse de la Garinne, Bouvesse-Quirieu.

Ce bien se situe dans une maison de 1900.
Il se compose :
- d'un séjour avec cheminée et d'une salle à manger donnant sur cour,
- d'une cuisine indépendante équipée (électroménager récent dont 1 frigo américain ainsi qu'un magnifique piano de la marque "Godin"),
- 1 pièce supplémentaire à côté de la cuisine avec une mezzanine en bois. Pouvant servir de bureau avec accès à l'extérieur par une porte vitrée et fermée à clé.
- de 3 chambres
- de 2 salles d'eau (la plus récente avec un espace buanderie pouvant accueillir une belle baignoire).
- de 2 WC (dont 1 séparé).

Les murs ont été isolés par injection.

Orienté Sud est, il dispose d'un système de chauffage pompe à chaleur, 1 par étage, d'une cheminée bois dans le salon et de convecteurs électriques ainsi que des doubles vitrages sur l'ensemble des fenêtres, rideaux électriques. VMC en sous-pression.

Cette maison est chargée d'histoire, construite sous Napoléon 3 et ayant appartenu à un métayer, l'ancien puit communal, en pierres, est toujours présent sur le terrain et toujours en eau.

Vous bénéficerez d'une surface supplémentaire, sous comble d'environ 70m² environ, déjà isolée et parquet fait, avec des vélux. Le toit a été refait récement. Cette surface vous donnera libre court à vos envies : création de 2 ou 3 chambres supplémentaire, avec une sdb, ce qui permettrait de fermer le 1 er étage (et ainsi de créer une magnifique suite parentale de près de 40 m²), par exemple.

Vous serez séduit par la vue, dégagée sur les montagnes et la forêt, ainsi que du calme environnant.

La piscine d'une belle dimension 9,3m / 4,6m, possède un couloir de nage à contre-courant, toujours entretenue, le dôme rétractable permet d'avoir une eau à bonne température en toute saison.

3 parkings, 2 caves enterrées en pierre (1 avec accès par l'extérieur, la seconde par la cuisine), de 2 garages et d'un hangar servant d'atelier, ainsi qu'1 terrasse couverte devant la maison et d'une cuisine d'été (dim 9m / 3,3m) couverte et semie ouverte, avec un four à pain, côté piscine complètent ce bien.

Une visite provoquera certainement un coup de coeur pour les personnes aimant les vieilles pierres. Gros potentiel.

Les points positifs :
- le calme et la vue dégagée.
- énorme potentiel.
- 7100 m² de terrain dont environ 3000 m² constructible (PLU en cours de révision pour 2026), idéal pour chevaux.
- piscine
- espace sous-comble de 70 m² environ.
- possibilité de faire un logement séparé et indépendant.
- à moins de 45 minutes de l'aéroport Lyon ST Exupéry.
- à moins de 10 minutes du centre de Montalieu des écoles, collège et de toutes commodités.

Charges de copropriété : NC.
Taxe foncière : 1210€ par an

Survol en drone disponible sur simple demande.

Ce bien est commercialisé par Casavo.

Intéressé par ce bien ? Plus d'informations sur le site de Casavo.
Voir plus

Référence: 47067
Honoraires à la charge du vendeur.
DPE
A
B
C
D
E
F
G
GES
A
B
C
D
E
F
G

Prêt immobilier

Vous souhaitez connaître votre capacité d’emprunt et trouver le meilleur crédit immobilier ?
Réaliser une simulation gratuite

Maison à BOUVESSE-QUIRIEU
Maison à BOUVESSE-QUIRIEU
Maison à BOUVESSE-QUIRIEU
Maison à BOUVESSE-QUIRIEU
Maison à BOUVESSE-QUIRIEU
Maison à BOUVESSE-QUIRIEU
Maison à BOUVESSE-QUIRIEU
Maison à BOUVESSE-QUIRIEU
Maison à BOUVESSE-QUIRIEU
Maison à BOUVESSE-QUIRIEU
Maison à BOUVESSE-QUIRIEU
Maison à BOUVESSE-QUIRIEU
Maison à BOUVESSE-QUIRIEU
Maison à BOUVESSE-QUIRIEU
Maison à BOUVESSE-QUIRIEU
Maison à BOUVESSE-QUIRIEU
Maison à BOUVESSE-QUIRIEU
Maison à BOUVESSE-QUIRIEU
Ce site est protégé par reCAPTCHA la Politique de confidentialité et les Conditions d’utilisation de Google s’appliquent.
Obtenir un prêt immobilier au meilleur taux ?

En poursuivant votre navigation sans modifier vos paramètres, vous acceptez l'utilisation de cookies susceptibles de réaliser des statistiques de visite. Cliquez ici pour plus d'informations