Bénéficiez des services de nos partenaires locaux soigneusement sélectionnés
pour vous accompagner dans votre parcours d'achat immobilier

Au calme – plain-pied neuf 2025 – dpe a/a – re 2020 – 130 m² au sol - garage pmr attenant sur 1 020 m² clos

— Le Fleix 24130 —
211 500 €
115 m² / 1 020 m²
4 pièces

Nos partenaires locaux
Vous cherchez un plain-pied récent, économe et sans travaux, au calme mais proche de tout, prévu pour l'avenir et aux normes PMR (personne à mobilité réduite)

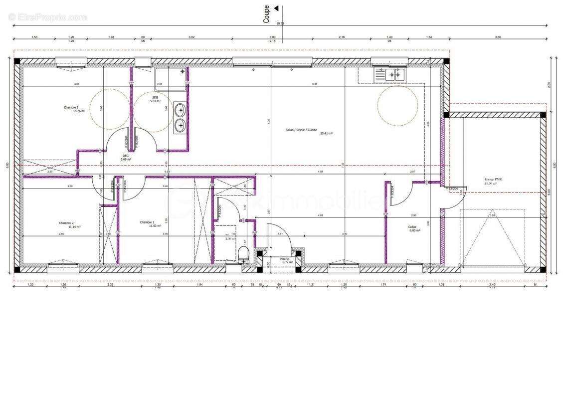
Cette maison 2025, 130 m² au sol, classe énergétique A / A, est idéalement située en impasse, au cœur du Fleix, sur un terrain entièrement clôturé de 1 020 m².

Les atouts qu'on ne trouve pas partout
• Vraie pièce de vie très lumineuse 60 m² : salon/séjour traversant ouvert sur cuisine, baies vitrées et lumière toute la journée.
• 3 chambres confortables.
• Salle d'eau moderne avec douche à l'italienne.
• WC suspendu séparé.
• Buanderie 7 m² pratique (rangements/électroménager).
• Garage PMR attenant 20 m².
• Plain-pied accessible PMR : circulation facilitée au quotidien.

Confort & économies (RE 2020)
• Clim réversible gainable bi-zone avec thermostats pièce par pièce : température idéale été/hiver.
• Ballon thermodynamique pour l'eau chaude, volets électriques, VMC.
• Isolation thermique & phonique dernière génération.
• DPE A / A = factures maîtrisées.

Cadre & localisation
• Zone NON inondable pour la tranquillité.
• À pied : écoles, commerces, médecins, pharmacie.
• Gare de Ste-Foy-la-Grande à 8 min, A89 à 15 min, Bordeaux 1 h.

À savoir
• Construction 2025 — garantie décennale jusqu'en 2035.
• Terrain entièrement clôturé . TOUT à l'égout.

Prête à vivre : posez vos valises et profitez du calme, du confort et des faibles consommations.
Visites sur RDV. Dossier complet à disposition (plans, DPE, diagnostics).

Cette annonce référence 305369 vous est présentée par votre agent commercial BSK Immobilier ARNOLD LIEVAL (EI) immatriculé au RSAC de NEVERS (58000) sous le numéro 33986885300054.

Prix du bien : 211 500,00 €
Les honoraires d'agence sont à la charge du vendeur.

A propos des performances énergétiques :
Date de réalisation du diagnostic énergétique : 20/09/2024
Score DPE : 49 kWhEP/m²/an
Score GES : 1 kgepCO2/m²/an
Montant estimé des dépenses annuelles d'énergie pour un usage standard : entre 500.00 € et 710.00 € par an. Prix moyens des énergies indexés sur l'année 2023 (abonnements compris).

Les informations sur les risques auxquels ce bien est exposé sont disponibles sur le site Géorisques : www.georisques.gouv.fr
Voir plus

Référence: 305369
Honoraires à la charge du vendeur.
DPE
A
B
C
D
E
F
G
GES
A
B
C
D
E
F
G

Prêt immobilier

Vous souhaitez connaître votre capacité d’emprunt et trouver le meilleur crédit immobilier ?
Réaliser une simulation gratuite

Maison à LE FLEIX
Maison à LE FLEIX
Maison à LE FLEIX
Maison à LE FLEIX
Maison à LE FLEIX
Maison à LE FLEIX
Maison à LE FLEIX
Maison à LE FLEIX
Maison à LE FLEIX
Maison à LE FLEIX
Maison à LE FLEIX
Maison à LE FLEIX
Maison à LE FLEIX
Maison à LE FLEIX
Maison à LE FLEIX
Maison à LE FLEIX
Ce site est protégé par reCAPTCHA la Politique de confidentialité et les Conditions d’utilisation de Google s’appliquent.
Obtenir un prêt immobilier au meilleur taux ?

En poursuivant votre navigation sans modifier vos paramètres, vous acceptez l'utilisation de cookies susceptibles de réaliser des statistiques de visite. Cliquez ici pour plus d'informations