Bénéficiez des services de nos partenaires locaux soigneusement sélectionnés
pour vous accompagner dans votre parcours d'achat immobilier

Maison 15m² à belfort

— Belfort 90000 —
32 559 €
15 m²
1 pièce

Nos partenaires locaux
LE LODGE LIBERTÉ 15 M² – LE COMPACT QUI CHANGE TOUT !
(Produit neuf vendu sans terrain – non soumis au DPE ni au GES – sans frais de notaire)

Christelle, mandataire immobilier C2i by Efficity, vous propose FAI un Lodge Liberté 15 m², clé en main, idéal pour : bureau, atelier, studio d'appoint ou location courte durée. Chaque mètre carré est pensé pour un confort maximal et une utilisation polyvalente.

CARACTÉRISTIQUES
Modèle Liberté 15 m² – 3 x 5 m – à partir de 32 559 € TTC
Livraison partout en France, installation rapide et clé en main
Structure mobile installable sur votre parcelle (selon réglementation locale)

POINTS FORTS
Optimisation parfaite de l'espace
Grandes ouvertures et luminosité naturelle
Design moderne et finitions soignées
Polyvalent : bureau, studio, chambre d'amis ou location

AUTRES MODÈLES
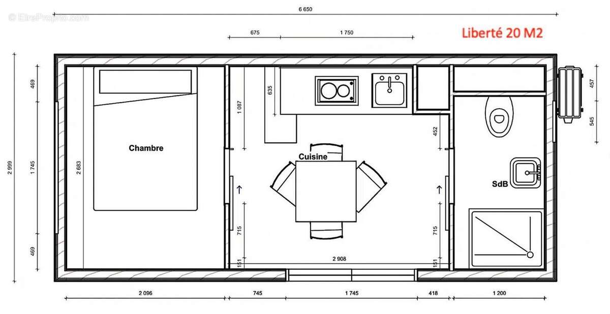
Liberté 20 m² – 3 x 6,7 m – dès 40 849 € (cuisine et salle d'eau optionnelles)
Liberté 30 m² – 3 x 10 m – dès 53 599 €
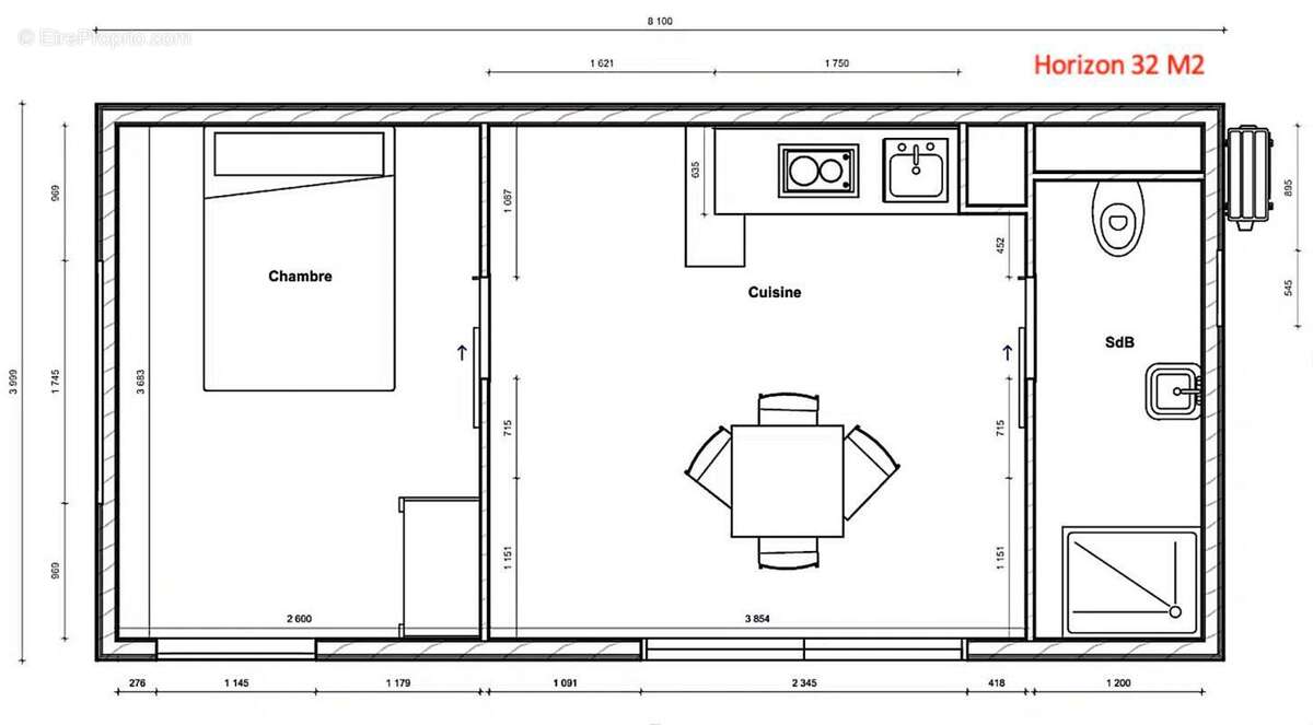
Horizon 32 m² – 4 x 8 m – dès 55 229 €
Horizon 40 m² – 4 x 10 m – dès 73 630 €
Horizon 50 m² – 4 x 12,5 m – dès 100 000 €

POURQUOI CHOISIR UN LODGE LIBERTÉ OU HORIZON ?
Mini-maison clé en main, valorisable sur le foncier et non un mobil-home
Installation rapide en 1 journée, sans gros travaux
Structure acier garantie 10 ans, longue durée de vie
Isolation et confort thermique RE2020, équipements inclus : climatisation réversible, moderne et économe
100 % personnalisable : bureau, chambre, atelier, salle de sport ou location
Solution évolutive et écologique

INFORMATIONS RÉGLEMENTAIRES
Vendu sans terrain, module habitable mobile. Non soumis au DPE ni au GES, sauf si installation fixe et raccordement permanent aux réseaux.

CONTACT Christelle au [Coordonnées masquées] pour définir votre projet d'installation d'un Lodge Studio Liberté ou Horizon, de 15 à 100 m², livré et posé partout en France.
Les informations sur les risques auxquels ce bien est exposé sont disponibles sur le site Georisque : georisques. gouv. fr
Christelle Cesca - EI - est Agent Commercial mandataire en immobilier, immatriculé au Registre Spécial des Agents Commerciaux du Tribunal de Commerce de Belfort sous le n°791551690.
Siège social du mandant : effiCity, 48 avenue de Villiers - 75017 PARIS - Société par Actions Simplifiée, société au capital de 132 373,05 euros, immatriculée au RCS Paris 497 617 746 et titulaire de la Carte professionnelle CPI 75[Coordonnées masquées]02 025 - CCI Paris IDF - Caisse de Garantie : GALIAN Assurances 89 rue de la Boétie 75008 Paris
Voir plus

Référence: 195575
Honoraires à la charge du vendeur.
Barème des honoraires

Prêt immobilier

Vous souhaitez connaître votre capacité d’emprunt et trouver le meilleur crédit immobilier ?
Réaliser une simulation gratuite

Maison à BELFORT
Maison à BELFORT
Maison à BELFORT
Maison à BELFORT
Maison à BELFORT
Maison à BELFORT
Maison à BELFORT
Maison à BELFORT
Maison à BELFORT
Maison à BELFORT
Maison à BELFORT
Maison à BELFORT
Maison à BELFORT
Maison à BELFORT
Maison à BELFORT
Maison à BELFORT
Maison à BELFORT
Maison à BELFORT
Maison à BELFORT
Ce site est protégé par reCAPTCHA la Politique de confidentialité et les Conditions d’utilisation de Google s’appliquent.
Obtenir un prêt immobilier au meilleur taux ?

En poursuivant votre navigation sans modifier vos paramètres, vous acceptez l'utilisation de cookies susceptibles de réaliser des statistiques de visite. Cliquez ici pour plus d'informations