Bénéficiez des services de nos partenaires locaux soigneusement sélectionnés
pour vous accompagner dans votre parcours d'achat immobilier

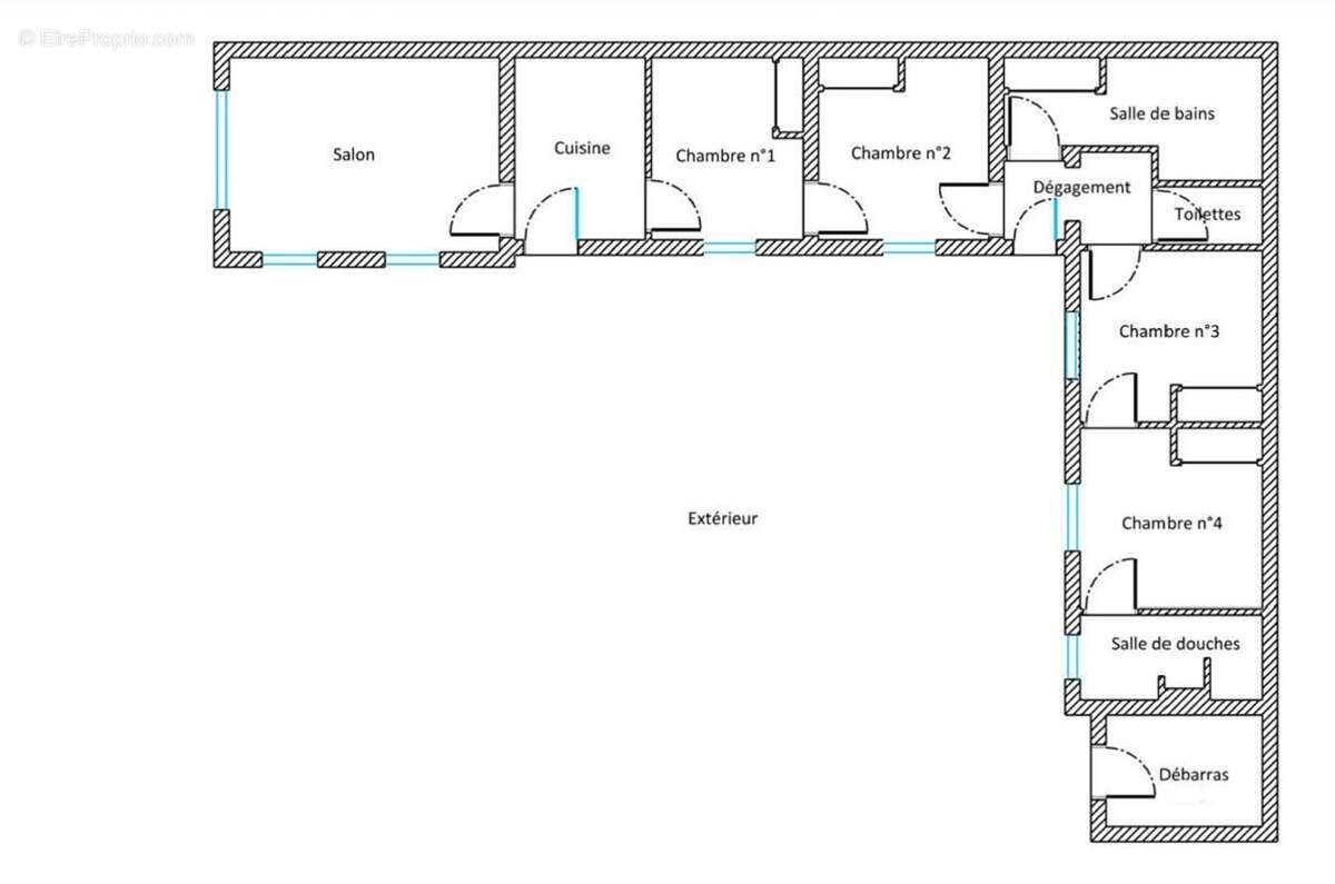
Maison - la baule - maison à rénover quartier benoit 4 chambres

— La Baule-Escoublac 44500 —
549 000 €
104 m² / 380 m²
5 pièces
parkingbalcon/terrassejardin

Nos partenaires locaux
LA BAULE - QUARTIER BENOIT - PROXIMITÉ PLAGE ET COMMERCES - MAISON DE 104 M2 DE PLAIN PIED A RÉNOVER - 4 CHAMBRES - JARDIN CLOS -

Propriétés-Privées et Arnault de Kerangal vous présentent cette maison dans un style traditionnel de plain-pied . Son emplacement privilégié, quartier Benoit, vous permet d'être à proximité de la plage et des commerces du Pouliguen. La pièce de vie profite d'un plafond cathédrale et de deux grandes ouvertures. Ce bien vous séduira par ses nombreuses ouvertures qui donnent toutes sur le jardin exposé Sud permettant de profiter d'une belle luminosité tout au long de l'année. L'environnement est protégé avec peu de passage devant la maison. Ce bien bénéficie de 4 chambres en enfilades. Greniers à l'étage. Possibilité de garer plusieurs voitures sur le terrain.

Des travaux sont à prévoir : isolation thermique, redistribution des pièces, aménagement de la cuisine, sanitaires à refaire ... Audit énergétique pour passer d'un DPE G à B comptez 142 000 euros environ.

DPE: G GES : G, Montant estimé des dépenses annuelles d'énergie entre 4 850 euros et 6610 euros par an.

Prix 549 000 euros HAI dont 3,78 % d'honoraires charge acquéreur, soit 529 000 euros net vendeur

Pour visiter et vous accompagner dans votre projet, contactez Arnault de KERANGAL, au [Coordonnées masquées] ou par courriel à [Coordonnées masquées]
Selon l'article L.561.5 du Code Monétaire et Financier, pour l'organisation de la visite, la présentation d'une pièce d'identité vous sera demandée.

Cette présente annonce a été rédigée sous la responsabilité éditoriale de Arnault de KERANGAL agissant en qualité de conseiller immobilier indépendant sous portage salarial auprès de la SAS PROPRIETES PRIVEES, au capital de 40 000 euros, ZAC LE CHÊNE FERRÉ - 44 ALLÉE DES CINQ CONTINENTS 44120 VERTOU; SIRET 487 624 777 00040, RCS Nantes. Carte professionnelle Transactions sur immeubles et fonds de commerce (T) et Gestion immobilière (G) n° CPI 44[Coordonnées masquées]10 388 délivrée par la CCI Nantes - Saint Nazaire. Compte séquestre n°3[Coordonnées masquées] BPA SAINT-SEBASTIEN-SUR-LOIRE (44230) ; Garantie GALIAN - 89 rue de la Boétie, 75008 Paris - n°28137 J pour 2 000 000 euros pour T et 120 000 euros pour G. Assurance responsabilité civile professionnelle par MMA Entreprise n° de police 120.137.405

Mandat réf : 423145- Le professionnel garantit et sécurise votre projet immobilier. (3.78 % honoraires TTC à la charge de l'acquéreur.)
Les informations sur les risques auxquels ce bien est exposé sont disponibles sur le site Géorisques : www. georisques. gouv. fr
Voir plus

Référence: 423145DEKE
Honoraires d'agence de 3.78% à la charge de l'acquéreur
DPE
A
B
C
D
E
F
G
GES
A
B
C
D
E
F
G

Prêt immobilier

Vous souhaitez connaître votre capacité d’emprunt et trouver le meilleur crédit immobilier ?
Réaliser une simulation gratuite

Maison à LA BAULE-ESCOUBLAC
Maison à LA BAULE-ESCOUBLAC
Maison à LA BAULE-ESCOUBLAC
Maison à LA BAULE-ESCOUBLAC
Maison à LA BAULE-ESCOUBLAC
Maison à LA BAULE-ESCOUBLAC
Maison à LA BAULE-ESCOUBLAC
Maison à LA BAULE-ESCOUBLAC
Maison à LA BAULE-ESCOUBLAC
Maison à LA BAULE-ESCOUBLAC
Maison à LA BAULE-ESCOUBLAC
Maison à LA BAULE-ESCOUBLAC
Maison à LA BAULE-ESCOUBLAC
Ce site est protégé par reCAPTCHA la Politique de confidentialité et les Conditions d’utilisation de Google s’appliquent.
Obtenir un prêt immobilier au meilleur taux ?

En poursuivant votre navigation sans modifier vos paramètres, vous acceptez l'utilisation de cookies susceptibles de réaliser des statistiques de visite. Cliquez ici pour plus d'informations