Village médiéval de la vallée de la cèze : jolie maison de village avec 2 terrasses ayant vue dominante

— La Roque-Sur-Ceze 30200 —
195 000 €
57 m² / 66 m²
3 pièces
balcon/terrassejardin

Au cœur d’un village médiéval perché de la Vallée de la Cèze, maison de charme avec magnifique vue
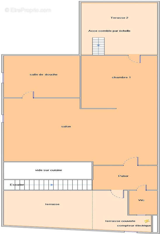
Nichée sur les hauteurs d’un superbe village médiéval dominant la Cèze, cette jolie maison de village P3 séduit par son authenticité et son cachet. Répartie sur deux niveaux, elle offre un cadre de vie unique, idéal pour les amoureux de la pierre et des panoramas.
Au rez-de-chaussée, vous découvrirez un salon chaleureux agrémenté d’une cheminée, parfait pour vos soirées cocooning, ainsi qu’un petit coin cuisine. À l’étage, une pièce lumineuse s’ouvre sur un espace nuit modulable, permettant d’aménager deux chambres selon vos besoins. Une salle d’eau et des toilettes indépendantes complètent ce niveau.
À l’extérieur, deux terrasses dont une vous invite à profiter d’une vue imprenable sur le village et la vallée, pour des moments de détente en toute quiétude. Cette maison est une véritable invitation à savourer la douceur de vivre dans une région prisée pour sa richesse touristique, son patrimoine et ses formidables paysages.
Un bien rare, idéal en résidence principale ou secondaire, pour vivre au rythme de la Provence et de ses trésors (baignades aux pieds du village, canöe, ballades en forêt...etc).
Cette annonce vous est proposée par Bruno CAMPOREALE - EI - NoRSAC: 879820249, Enregistré à Greffe du tribunal de commerce de NIMES COMPTOIR IMMOBILIER DE FRANCE - Plus d'informations sur cif-immo.com - « Les informations sur les risques auxquels ce bien est exposé sont disponibles sur le site Géorisques : www.georisques.gouv.fr » - Annonce rédigée et publiée par un Agent Mandataire -
Voir plus

Référence: 20638
Honoraires à la charge du vendeur.
Barème des honoraires

Prêt immobilier

Vous souhaitez connaître votre capacité d’emprunt et trouver le meilleur crédit immobilier ?
Réaliser une simulation gratuite

Maison à LA ROQUE-SUR-CEZE
Maison à LA ROQUE-SUR-CEZE
Maison à LA ROQUE-SUR-CEZE
Maison à LA ROQUE-SUR-CEZE
Maison à LA ROQUE-SUR-CEZE
Maison à LA ROQUE-SUR-CEZE
Maison à LA ROQUE-SUR-CEZE
Maison à LA ROQUE-SUR-CEZE
Maison à LA ROQUE-SUR-CEZE
Maison à LA ROQUE-SUR-CEZE
Maison à LA ROQUE-SUR-CEZE
Maison à LA ROQUE-SUR-CEZE
Maison à LA ROQUE-SUR-CEZE
Maison à LA ROQUE-SUR-CEZE
Maison à LA ROQUE-SUR-CEZE
Maison à LA ROQUE-SUR-CEZE
Maison à LA ROQUE-SUR-CEZE
Maison à LA ROQUE-SUR-CEZE
Ce site est protégé par reCAPTCHA la Politique de confidentialité et les Conditions d’utilisation de Google s’appliquent.
Obtenir un prêt immobilier au meilleur taux ?

En poursuivant votre navigation sans modifier vos paramètres, vous acceptez l'utilisation de cookies susceptibles de réaliser des statistiques de visite. Cliquez ici pour plus d'informations