Bénéficiez des services de nos partenaires locaux soigneusement sélectionnés
pour vous accompagner dans votre parcours d'achat immobilier

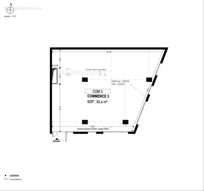
Vente local commercial de 92m2 à chambéry

— Chambery 73000 —
230 454 €
92 m²

Nos partenaires locaux
CHAMBÉRY (73) - Nous vous proposons un local commercial de 92,4 m2 en RDC, toutes destinations (y compris petite restauration), dans une résidence neuve. Idéalement placé en plein coeur de l’éco-quartier Vetrotrex, à moins de 2km du centre-ville. Situé à 1km de la Gare de Chambéry, à moins de 15min en voiture de l’Aéroport Chambéry Savoie Mont Blanc. Lignes de bus à proximité immédiate. À moins de 10min en voiture de l’accès à l’A41 (reliant Annecy en 30min et Grenoble en moins d’1h) et de l’A43 (reliant Lyon). Les vitrines des commerces en acier ou alu à charge de l’acquéreur. Ce local, livré en coque brute, dispose également d'un accès à l'extérieur. Fluide et réseaux (eaux, assainissement, ventilation et chauffage) en attente, fourreaux en attente pour téléphonie et électricité. Vendu avec 2 garages (box fermé). Frais de notaire réduits. TVA récupérable si assujetti. Pour plus d'information nous contacter.
Voir plus

Référence: 1563-COM3-CHAMBERY-R
Honoraires à la charge du vendeur.
Barème des honoraires

Prêt immobilier

Vous souhaitez connaître votre capacité d’emprunt et trouver le meilleur crédit immobilier ?
Réaliser une simulation gratuite

Commerce à CHAMBERY
Commerce à CHAMBERY
Commerce à CHAMBERY
Commerce à CHAMBERY
Ce site est protégé par reCAPTCHA la Politique de confidentialité et les Conditions d’utilisation de Google s’appliquent.
Obtenir un prêt immobilier au meilleur taux ?

En poursuivant votre navigation sans modifier vos paramètres, vous acceptez l'utilisation de cookies susceptibles de réaliser des statistiques de visite. Cliquez ici pour plus d'informations