Bénéficiez des services de nos partenaires locaux soigneusement sélectionnés
pour vous accompagner dans votre parcours d'achat immobilier

Voir tous les partenaires locaux

Poincaré / victor hugo

— Paris-16e 75016 —
6 500 000 €
401 m²
10 pièces
ascenseur

Nos partenaires locaux
* Exclusivité *

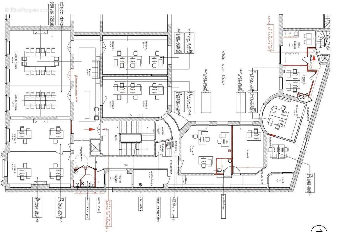
Bureaux avec commercialité

Seul à l’étage d’un immeuble de très grand standing,ce bien unique se situe entre la place Victor Hugo et le Trocadéro, appartement traversant rare, entièrement refait à neuf et aménagé en bureaux modulables. D’une superficie de plus de 400 m² de plain-pied.
Actuellement configuré en espaces de travail modulables, il comprend une douzaine de bureaux, deux salles de réunion, une cuisine, et offre une grande flexibilité d’aménagement.

Ce bien unique se distingue par sa très grande hauteur sous plafond, sa luminosité et ses volumes impressionnants.

Il dispose également de trois balcons, offrant une vue dégagée.

Possibilité de reconversion en appartement de prestige.
Une cave complète ce bien.
Climatisation.

Surface Carrez : 400,68m2
Surface Totale : 410,35m2

Les informations sur les risques auxquels ce bien est exposé sont disponibles sur le site Géorisques : www.georisques.gouv.fr
Voir plus

Référence: 86339618
Barème des honoraires
DPE
A
B
C
D
E
F
G
GES
A
B
C
D
E
F
G

Prêt immobilier

Vous souhaitez connaître votre capacité d’emprunt et trouver le meilleur crédit immobilier ?
Réaliser une simulation gratuite

Commerce à PARIS-16E
Commerce à PARIS-16E
Commerce à PARIS-16E
Commerce à PARIS-16E
Commerce à PARIS-16E
Commerce à PARIS-16E
Commerce à PARIS-16E
Commerce à PARIS-16E
Commerce à PARIS-16E
Commerce à PARIS-16E
Commerce à PARIS-16E
Commerce à PARIS-16E
Commerce à PARIS-16E
Commerce à PARIS-16E
Commerce à PARIS-16E
Commerce à PARIS-16E
Commerce à PARIS-16E
Commerce à PARIS-16E
Commerce à PARIS-16E
Commerce à PARIS-16E
Commerce à PARIS-16E
Commerce à PARIS-16E
Ce site est protégé par reCAPTCHA la Politique de confidentialité et les Conditions d’utilisation de Google s’appliquent.
Obtenir un prêt immobilier au meilleur taux ?

En poursuivant votre navigation sans modifier vos paramètres, vous acceptez l'utilisation de cookies susceptibles de réaliser des statistiques de visite. Cliquez ici pour plus d'informations