Commerce 1200m² à viry-chatillon

— Viry-Chatillon 91170 —
440 000 €
1 200 m²

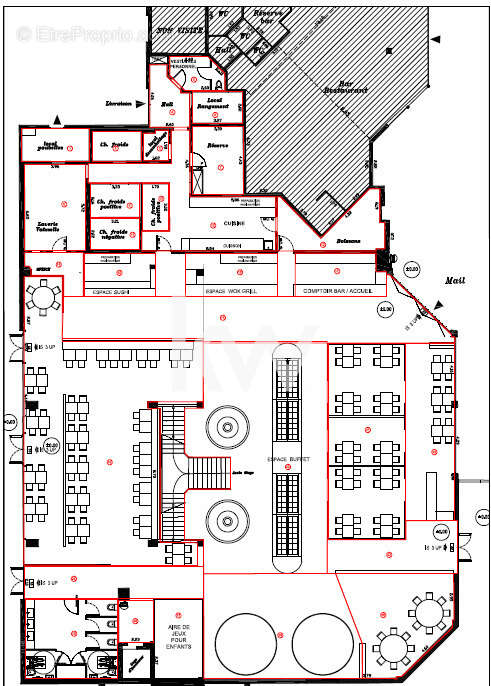
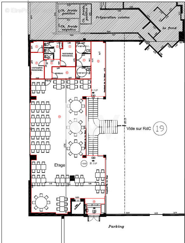
Opportunité exceptionnelle pour investisseurs et restaurateurs ! Nous mettons en vente un fonds de commerce de restaurant idéalement situé à Viry-Châtillon. Ce restaurant, entièrement rénové en 2018, bénéficie d'une surface de 1200 m² et d'un parking spacieux pour accueillir une clientèle nombreuse.

Le chiffre d’affaires s’est maintenu de façon stable ces dernières années, oscillant entre 1 300 000 € et 1 400 000 €, témoignant de la solidité et du potentiel de l’établissement.

Caractéristiques :

Emplacement de choix : Situé dans une zone à forte chalandise, ce restaurant attire un flux constant de clients.

Surface : 1200 m², offrant un espace vaste et modulable pour divers concepts de restauration.

Parking : Inclus, facilitant l'accès et augmentant le potentiel d'affluence.

Rénové à neuf : Modernisé en 2018, répondant aux dernières normes en vigueur, tant sur le plan sanitaire que sécuritaire.

Normes et conformité : Entièrement aux normes, aucun travaux de mise en conformité à prévoir.

Loyer + Charges et Taxe Foncière : 22 000 €/mois.

Avantages :

Emplacement stratégique : Forte visibilité et accessibilité, garantissant une clientèle variée et régulière.

Chiffre d’affaires solide : Stabilité entre 1,3 M€ et 1,4 M€ sur les dernières années.

Potentiel de développement : Idéal pour divers types de cuisines ou concepts gastronomiques.

Prêt à l'emploi : Aucun travaux nécessaires, démarrage d'activité immédiat possible.

Pour toutes demandes de renseignements et de visites, veuillez contacter Nicolas Guilloteau (rsac 529 273 724), votre agent spécialisé en immobilier commercial et d'entreprise, au [Coordonnées masquées].

Dossier soumis à engagement de confidentialité préalable.
Honoraires charge acquéreur déjà compris dans le prix.
Annonce non soumise à DPE.

Les informations sur les risques auxquels ce bien est exposé sont disponibles sur le site Géorisques du gouvernement.
Voir plus

Référence: 8219kw
Honoraires d'agence de 10% à la charge de l'acquéreur
Barème des honoraires

Prêt immobilier

Vous souhaitez connaître votre capacité d’emprunt et trouver le meilleur crédit immobilier ?
Réaliser une simulation gratuite

Commerce à VIRY-CHATILLON
Commerce à VIRY-CHATILLON
Commerce à VIRY-CHATILLON
Commerce à VIRY-CHATILLON
Commerce à VIRY-CHATILLON
Commerce à VIRY-CHATILLON
Commerce à VIRY-CHATILLON
Commerce à VIRY-CHATILLON
Ce site est protégé par reCAPTCHA la Politique de confidentialité et les Conditions d’utilisation de Google s’appliquent.
Obtenir un prêt immobilier au meilleur taux ?

En poursuivant votre navigation sans modifier vos paramètres, vous acceptez l'utilisation de cookies susceptibles de réaliser des statistiques de visite. Cliquez ici pour plus d'informations