Maison 76m² à cazaubon

— Cazaubon 32150 —
53 000 €
76 m² / 54 m²
2 pièces
jardin

Maison de ville type T2 de 76 m² habitables, l'ensemble implanté dans le centre historique du village de Cazaubon.

Idéal pour un pied à terre ou un investissement locatif.

Rendement Brut : 9.2% avec un loyer de 450E.

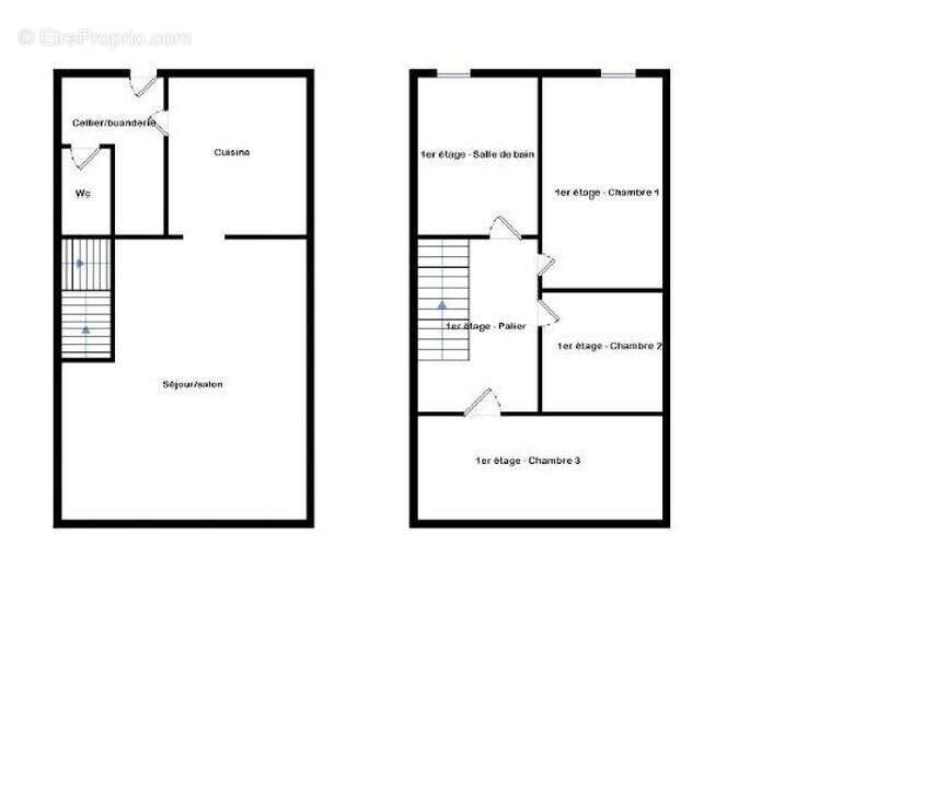
L'habitation se compose de la façon suivante :

Au rez-de-chaussée, un salon séjour de 23.24 m² doté d'une cheminée, une cuisine séparée de 7.98 m² à rénover, un cellier de 5.74 m², un WC séparé de 0.73 m².

L'étage abrite : deux coins nuit de 7.89 et 8.32 m², une chambre de 11.37 m² avec placard mural, un dégagement de 4.80 m².

TAXE FONCIERE: 810E

INFORMATIONS DIVERSES : Double vitrage, radiateurs électriques, tout-à-l'égout, cumulus électrique.

Les informations sur les risques auxquels ce bien est exposé sont disponibles sur le site Géorisques : www. georisques. gouv. fr.Pour plus d'informations et pour une visite, contactez Hervé DESPLAT : CLAIRIMMO Barbotan - 3 avenue des Thermes 32150 CAZAUBON - Service Transaction : [Coordonnées masquées] Service Location : [Coordonnées masquées] email : [Coordonnées masquées] RCS 851 986 620 Agent commercial indépendant du réseau national Clairimmo N° RSAC : 495 108 755
Voir plus

Référence: 11809DQ612
Honoraires à la charge du vendeur.
DPE
A
B
C
D
E
F
G
GES
A
B
C
D
E
F
G

Prêt immobilier

Vous souhaitez connaître votre capacité d’emprunt et trouver le meilleur crédit immobilier ?
Réaliser une simulation gratuite

#maison #gers #cazaubon #pascher #location - Maison à CAZAUBON
#maison #gers #cazaubon #pascher #location
#maison #gers #cazaubon #pascher #location - Maison à CAZAUBON
#maison #gers #cazaubon #pascher #location
#maison #gers #cazaubon #pascher #location - Maison à CAZAUBON
#maison #gers #cazaubon #pascher #location
#maison #gers #cazaubon #pascher #location - Maison à CAZAUBON
#maison #gers #cazaubon #pascher #location
#maison #gers #cazaubon #pascher #location - Maison à CAZAUBON
#maison #gers #cazaubon #pascher #location
#maison #gers #cazaubon #pascher #location - Maison à CAZAUBON
#maison #gers #cazaubon #pascher #location
#maison #gers #cazaubon #pascher #location - Maison à CAZAUBON
#maison #gers #cazaubon #pascher #location
#maison #gers #cazaubon #pascher #location - Maison à CAZAUBON
#maison #gers #cazaubon #pascher #location
#maison #gers #cazaubon #pascher #location - Maison à CAZAUBON
#maison #gers #cazaubon #pascher #location
#maison #gers #cazaubon #pascher #location - Maison à CAZAUBON
#maison #gers #cazaubon #pascher #location
#maison #gers #cazaubon #pascher #location - Maison à CAZAUBON
#maison #gers #cazaubon #pascher #location
#maison #gers #cazaubon #pascher #location - Maison à CAZAUBON
#maison #gers #cazaubon #pascher #location
#maison #gers #cazaubon #pascher #location - Maison à CAZAUBON
#maison #gers #cazaubon #pascher #location
#maison #gers #cazaubon #pascher #location - Maison à CAZAUBON
#maison #gers #cazaubon #pascher #location
#maison #gers #cazaubon #pascher #location - Maison à CAZAUBON
#maison #gers #cazaubon #pascher #location
#maison #gers #cazaubon #pascher #location - Maison à CAZAUBON
#maison #gers #cazaubon #pascher #location
#maison #gers #cazaubon #pascher #location - Maison à CAZAUBON
#maison #gers #cazaubon #pascher #location
#maison #gers #cazaubon #pascher #location - Maison à CAZAUBON
#maison #gers #cazaubon #pascher #location
Ce site est protégé par reCAPTCHA la Politique de confidentialité et les Conditions d’utilisation de Google s’appliquent.
Obtenir un prêt immobilier au meilleur taux ?

En poursuivant votre navigation sans modifier vos paramètres, vous acceptez l'utilisation de cookies susceptibles de réaliser des statistiques de visite. Cliquez ici pour plus d'informations